查看完整案例

收藏

下载
"
任何一件事,
都要经过两次创造,
一次是脑子里构思,
一次是真实做出来。
——史蒂芬·柯维
项目类型 | 平层空间
项目设计 | 方聪
"
•
01
PROJECT OVERVIEW
项目概述
-
构建一所好的家宅,一半以上取决于设计师是否设计了一个好“模型”:结构简单、功能齐全、与业主个性化的生活方式相匹配。作为一名80后,本案业主在生活场景的营建上有着更多自己的看法和要求。业主喜欢暖色调,因此设计师在做设计时着重选用这种风格的调子,在简约与潮流的平衡之间,寻找一种更为高级的生活方式。
-
客厅整体布局遵循简洁自然的设计风格,电视背景采用大理石与黑色不锈钢展示柜相结合,沙发背景则使用大面积暖色硬包与墙板相结合,纯白的梦幻帘,若隐若现。清爽匀净与温暖和煦融合得恰到好处,构筑让人舒缓放松且有温度的居家空间。
过道区采用与墙板同元素的装饰画作为缓冲,空间的一致性得到了完美的体现。踢脚线内嵌灯带,使整个过道更具科技感。开放式厨房在暖色的背景之上引入自然光源,利落的线条与柔和的光线搭配,烘托出家具的轻奢调性。日常生活的合理需求与艺术氛围的典雅高级,在环境中得到极致的表达。
橱柜延伸衔接餐桌,更好的利用空间的同时增加了家人之间的互动性。无论是下厨时的交流互动,还是一起喝茶、看书、聊天...厨房的功能已经不再是单独的烹饪。边上搭配一整面酒柜和内嵌式冰箱、直饮机、蒸烤箱,增加烹饪空间的同时也增加了收纳空间。
•
02
MINIMALIST TREND
简约潮流
主卧整体采用白、灰、木色调,调和出一幅慵懒惬意的文艺生活画卷,回归安静又充满质感的睡眠空间。整面衣柜满足了业主的收纳需求。
都市的喧嚣中,有一盏灯为你而亮;外界的干扰里,一隅天地为你而在。让感性和理性共存,并与极致的美学积淀逐一贴合,生活里的至情至味,悠长而辽远。
为了保留小孩的学习空间,整个儿童房没有过多的装饰,而是定制了大面积书桌。书房在现代家居生活中担任着越来越重要的角色,它不仅是休闲、读书的场所,也是工作的空间。
卫生间以灰系色彩赋予空间高级质感,硬朗简洁的线条搭配简约的陈设,石材与镜面的对撞,在明暗中形成有效律动,满足“功能”与“审美”的平衡。
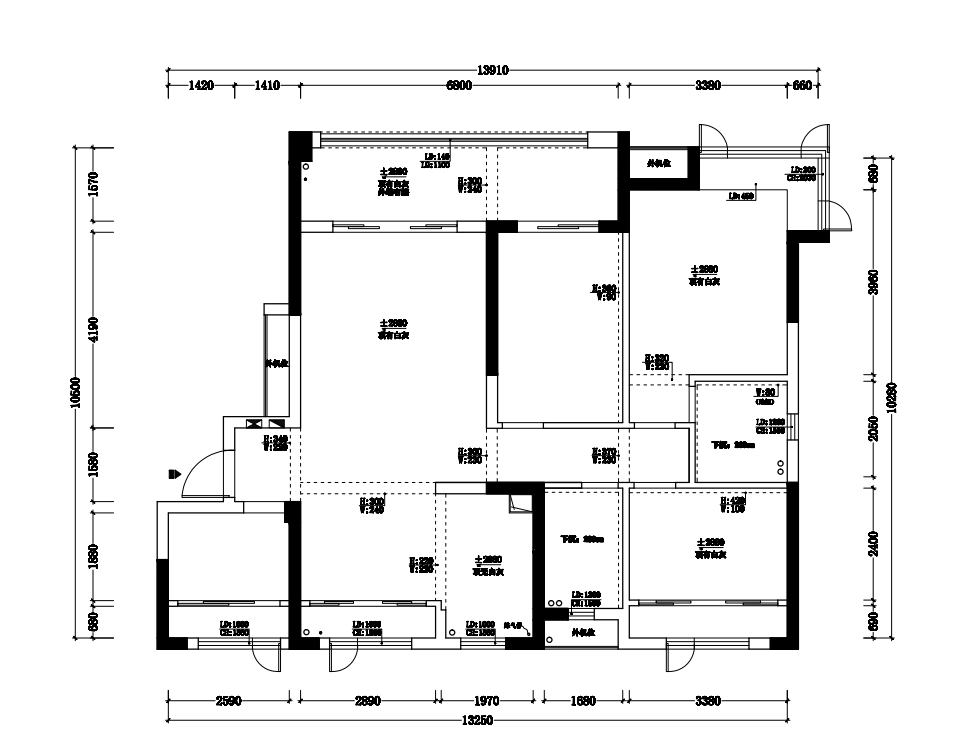
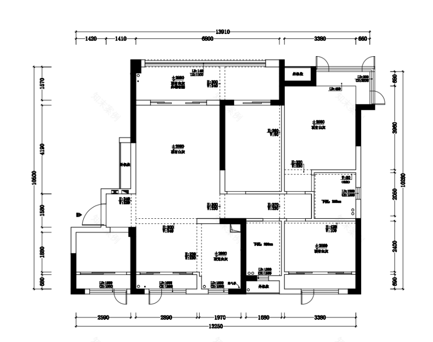
▼平面布置图 / PLAN
项目简介/ Brief Introduction
Location / 项目地点:长安府
Type / 项目类型:平层空间
Area / 项目面积:135㎡
Design / 设计出品:华浔品味装饰
Project / 设计主案:方聪
Time / 完工时间: 2023年7月
Photo / 摄影:欧阳陈倞
落地出品人 / Designer
设计师 | 方聪
华浔品味装饰
E N D
《上
饶
匯設計》——是设计类专业媒体,报道上饶地区原创设计师作品、策划设计交流性活动及家居行业类访谈。
客服
消息
收藏
下载
最近



























