查看完整案例


收藏

下载

翻译
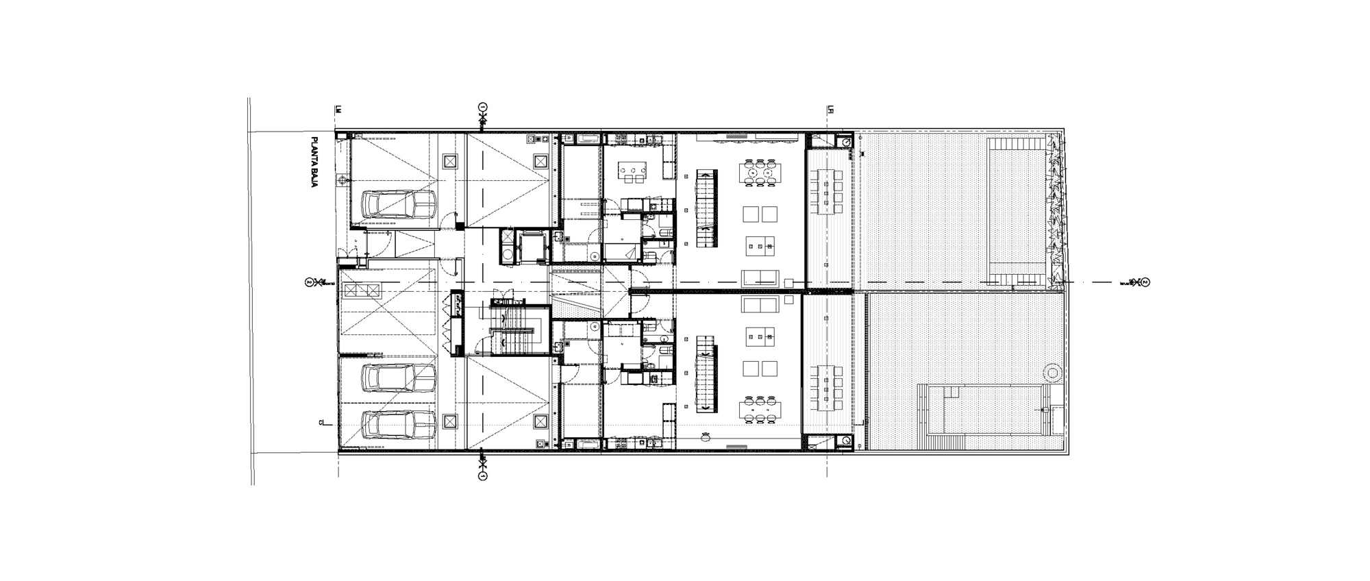
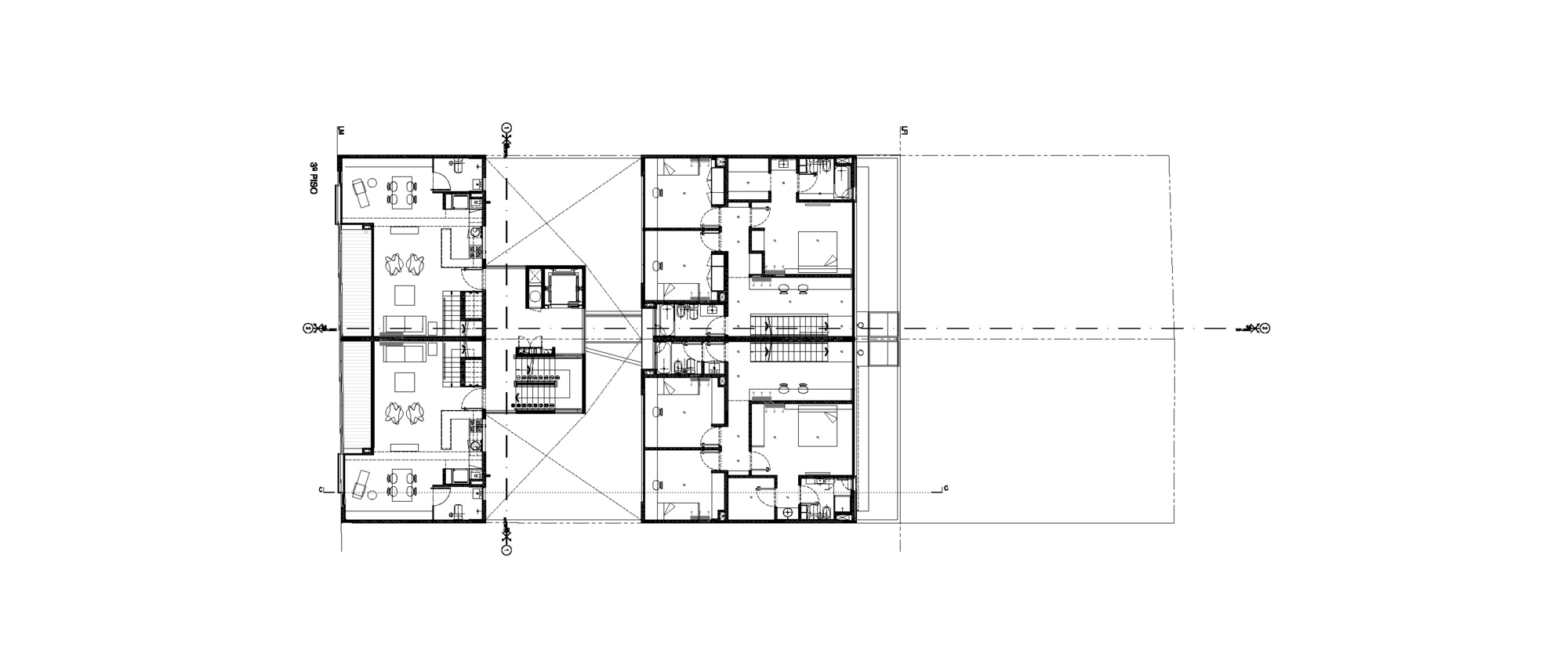
It is a building is located in a double urban lot limited by side party walls, in a low density neighborhood in Buenos Aires, Argentina.
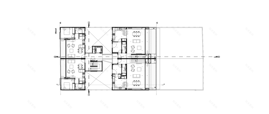
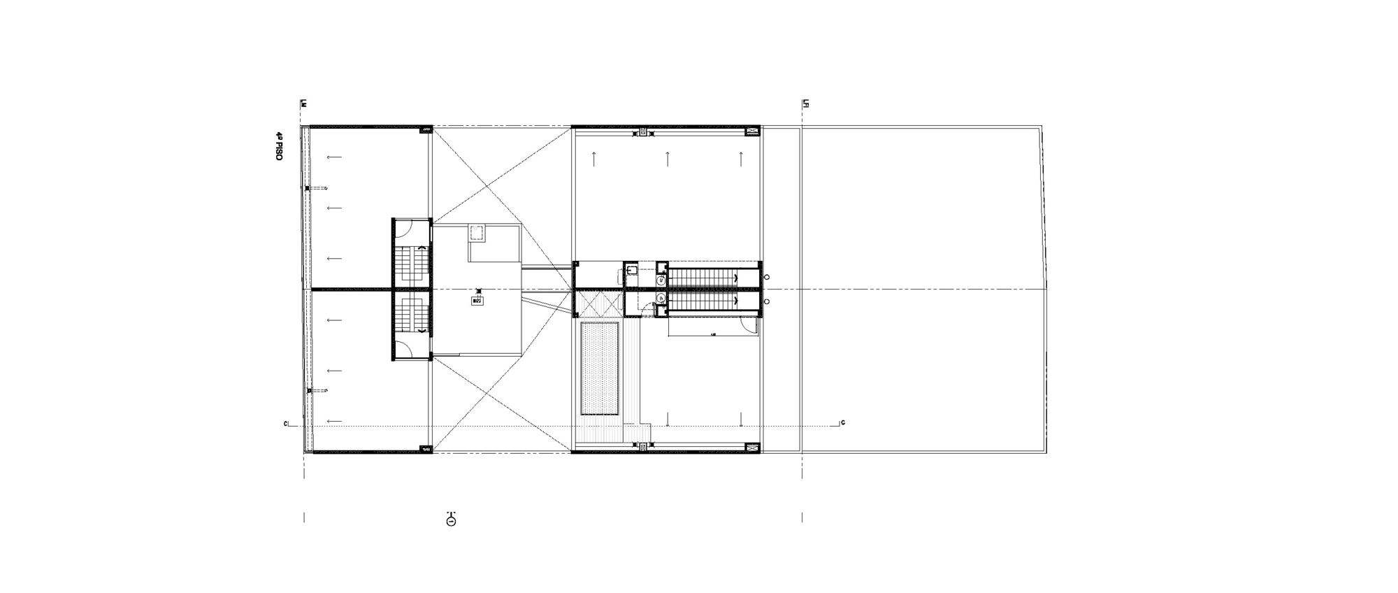
It is composed of two volumes separated by a yard. The volumen in the front containing one bedroom units, and the other , in the back and quieter, with four houses, two of them on the ground and first floor with private gardens, and the others on the second, and third floor with their own terraces.
The volumes are articulated and connected through an open circulatory sistem located in the yard, and a small bridge connecting with the back volumen.
The concrete structure is shown in the facades and also in this circulatory sistem , entirely made of exposed concrete.
客服
消息
收藏
下载
最近























