查看完整案例

收藏

下载

翻译
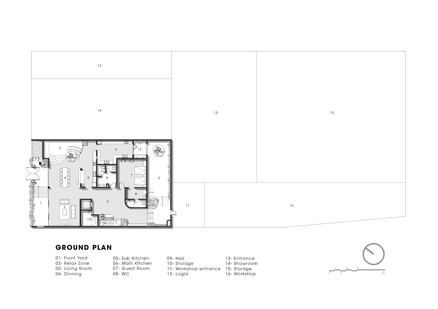
Nine Villa is a project located in Bao Loc City _ Vietnam. The house serves a family of three generations living together and is next to the family business. The house is four floors high and has a basement, five bedrooms, and many different function rooms. Family members include grandparents, younger siblings, a sister's family, a husband and two children. With a multi-story house with a large area, moving the house from one floor to another or moving through spatial areas on the same floor will become longer, more difficult, and easily boring. That will gradually lose the bond between family members.
To overcome this, we created many skylights of different sizes in different positions to bring light into the house and create air convection. Combined with potted green plants. Especially to eliminate the feeling of distance between floors, we designed the landing of the stairs into an entertainment area with light and greenery to create fun and excitement when moving up the stairs. Through which people take the stairs more often,
The basement is also the first place you enter the house, so you don't get bored and must leave immediately. We created a more enjoyable experience by decorating the floors with curved patterns and green skylights, bringing natural light into the basement, and turning the stair landing into a play area. Activities of family members. What a beautiful sight to welcome you home. We took advantage of the roof of our family's factory warehouse to create a spa area and garden, creating many relaxing spaces with views of the hills. Differently arranged relaxation spaces relieve stress for everyone when returning home. And everyone feels like this is a home just for them.
Each stop of the stairs is a resting point when we move from one floor to another, and the middle point connects the floors. Now, it is designed as a place for entertainment and relaxation, connecting everyone in the family. The skylight and the curves created from the stairs, balcony, walls, and ceiling create great attraction and interest for the house. It helps everyone in the house to look up from one floor to another, creating an invisible connection between family members.
客服
消息
收藏
下载
最近












































