查看完整案例

收藏

下载
本案为现代简约风,没有过多复杂的空间布局,通过材质、工艺与细节,打造质感空间,满足了业主实用主义需求。—精工艺匠装饰
Meet a new home
>项目简介<
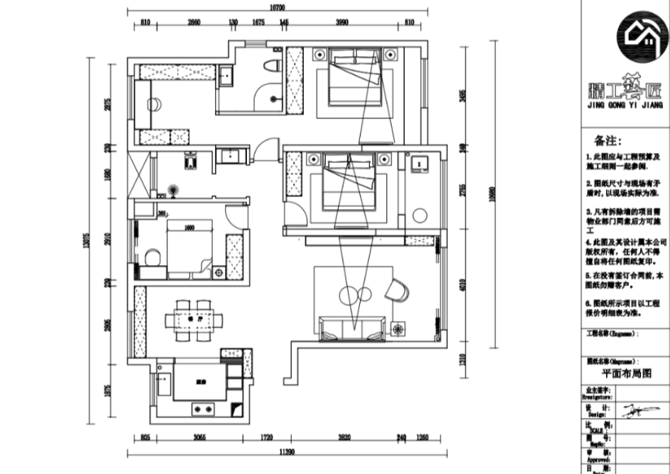
项目地址:星悦里
项目面积:136㎡
项目户型:三室两厅
设计风格:现代简约风
全案设计:张奎
▲平面布置图
【设计亮点】
①全房一体化开放式格局,动线利落贯通,视线一览无余。
②设计注重整体实用性与质感,统一的材质贯通空间,整体性极强。
③主卧打通次卧作为衣帽间,集多种功能于一体,私密性极强。
实景欣赏
1.客厅
客厅以柔和的奶咖色调作为背景,奠定了一种舒适的氛围。精致的硬装无不体现着优雅与高级,整体空间通透明亮又清爽。
▲米色地毯搭配灰色组合沙发,质感满满,格栅板与护墙板穿插造型,融入艺术气息与现代感,把精致氛围感拿捏得刚刚好。
▲采用悬浮式电视背景墙,四周暗藏式灯与射灯搭配使用,空间简净雅致,氤氲灯光中发散着纯净韵味。
▲定制
黑白拼色储物柜,层叠不断的颜色低低叙述着自己的表达,和谐的在纬度中散发开来。
2
餐厅
▲客餐厅开放式设计,打破公共区域在视觉上的封闭。让空间更显开阔,流畅的动线延伸了整体的视觉相通感。
▲挑选素色岩板餐桌,清透的材质简约高级,方正布局能够容纳多人就餐,聚会待客毫无压力。
▲一侧酒柜+窗边餐边柜同时兼具收纳、储物、展示等功能,为厨房适当减压,实用与颜值结合,凸显品质。3 厨房
▲厨房采用玻璃推拉门,隔绝油烟的同时也保持了整体的联通性。
▲台面
通过精准的设计比例,达到整体视觉的平衡,遵循“拿、洗、切、炒、递”动作布局,动线合理,为冰箱预留足够位置,备餐更便捷。
4 主卧
▲主卧
空间沉稳高级,集多重功能于一体,打造高质感的私密空间,品质感拉满。
▲拼色护墙板+纯色软包床头,搭配干练的空间没有任何多余的装饰,更显空间的开阔和利落。羽毛灯的点缀如梦似幻,轻奢中又透露着些许温柔与灵动。
▲步入式衣帽间两侧靠墙设计,一门到顶的衣柜,发挥空间储物的纯粹本质,靠门位置设计设可置物的矮柜,贴心至极。
6 卫生间
▲浅灰色系卫生间时尚有质感,长虹玻璃门保证空间通透明亮,墙地一体砖铺贴,视觉上也更加简洁。
视频呈现
预约设计/参观工地
公司地址:樊魏路与邓城大道交汇处(欧亚达家居对面)
戳这里,阅读原文,算算你家装修要花多少钱
客服
消息
收藏
下载
最近





















