查看完整案例

收藏

下载
项目地址 | 建发电建·江山悦
Project Address :Power construction · Jiangshan Yue
项目名称 丨《Cookies》
Project Name : "Cookies"
项目面积 丨 143㎡
Project Area
项目概况 | 精装改造
Project Overview : Hardcover modifications
与你相遇的时光
是心跳不止,是无所替代
像巧克力遇上曲奇
俏皮、浪漫又温情
总有新的故事值得期待
The time I met you
Is the heartbeat, is nothing to replace
Like chocolate meets cookie
Playful, romantic and tender
There’s always a new story to look forward to
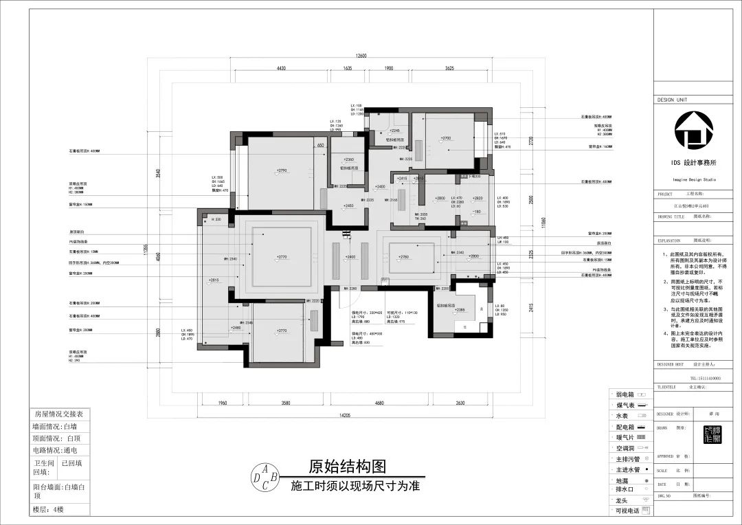
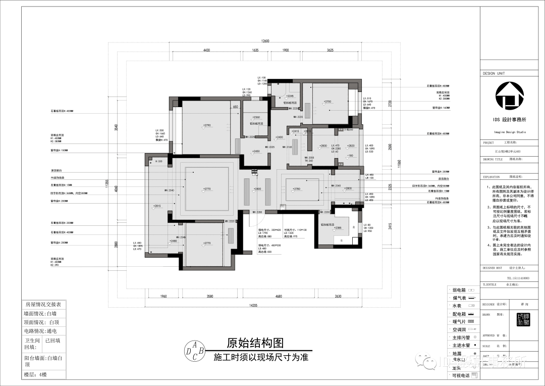
▼原始框架图 - Original Frame Diagram
▼五套改造方案 - Five Sets of Design Plan
左右滑动查看更多方案
▼最终改造方案 - Ultimate Design Plan
▽
空间示意
艺术的目的不是要去表现生活的外貌,而是要去表现生活的内在意义。---亚里士多德"The purpose of art is not to express the appearance of life but to express the inner meaning of life"
设计强调清晰的几何图案和线条,避免了传统的浮华和过分的装饰元素,以简洁的线条表达轻盈优雅的空间。
Irregular space extends spatial imagination.
Life doesn’t need any frills.
Light and pure, warm and natural home.
There is a years of quiet good warmth.
◇
开放式客餐厅,动线流畅。与法式拱门相融构成一景,相互存托,巧妙的融进整体氛围。
Open guest restaurant, smooth moving line. Integrated with the French arch to form a view of each other, cleverly integrated into the overall atmosphere. ◇
将轻法风、中古风、奶油风巧妙的融合在一起,给人以独特的视觉冲击,创造出独特而又舒适的空间氛围。
The light French style, the ancient style and the cream style are cleverly integrated together. Give people a unique visual impact to create a unique and comfortable space atmosphere.
▼实地勘探 - Field Exploration
◇
在所有艺术中,建筑对灵魂的作用是最缓慢的,但却是最坚定的。
"Of all the arts, architecture acts on the soul most slowly, but most firmly."
▼概念方案分析 - Conceptual Plan Analysis
▽
位置分析
▽
流线分析
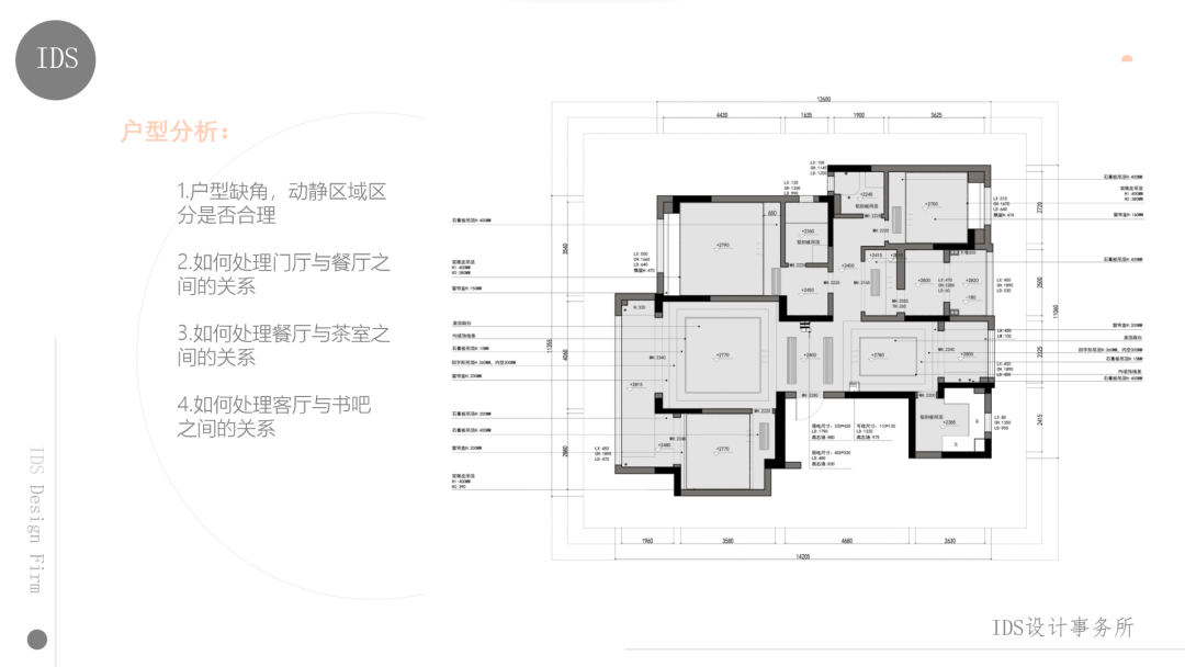
▽户型改造
▼软装方案 - Soft Decoration Schem
迷失在莎士比亚的花园,那里盛放着浪漫主义者的玫瑰
IDS 设计事务所 IMAGINE DESIGN STUDIO
设计师简介
谭闯
IDS 设计事务所 创始人兼设计总监
国家注册高级室内设计师
新加坡理工大学 环保室内设计师
CIID 中国建筑学会室内设计分会会员
HIID 湖南建筑与室内设计学会会员
长沙市室内装饰设计师协会会员
2012“新人杯”全国青年室内设计大赛 二等奖
2013 第六届“美涂士杯”家居装饰设计大赛 最佳创意奖
2016 第十六届 湖南省室内设计大赛 铜奖
2017 第五届 HI-Design 室内设计大赛 优秀奖
2019 亚太设计师大赛 实景类别墅空间 金奖
2019 亚太设计师大赛 十大新锐人物奖
2019 品质荟学院 “品质健康家”设计大赛 金课题奖
2019 中国建筑装饰金鹰设计大赛 银奖
2020 第六届中国设计年度人物 年度精英设计师
2021 年度国际环艺创新设计作品大奖华鼎奖 金奖
2021 年度设计中国全国作品成果邀请展特邀设计师
2021 第八届法国 GDPD AWARD 年度 TOP100 最具国际影响力创新设计师
吕蓓蓓
IDS 设计事务所 联合创始人兼首席设计师
90 后新锐软装陈设师
国家注册高级住宅室内设计师
HIID 湖南建筑与室内设计学会会员
长沙市室内装饰设计师协会会员
长沙市室内设计师协会木兰会会员
中国建筑与室内设计师网【推荐设计师】
2017 居然设计家杯家居设计大奖赛铜奖
2018 金纺锤奖中国软装美学空间设计大赛方案类银奖
2019 品质荟学院“品质健康家”设计大赛优秀奖
▼往期精彩-Previous highlights
IDS DESIGN 新案 | 《步步生花》
IDS DESIGN 新案 | 《浮闲》
IDS DESIGN 新案 | 《Black》
客服
消息
收藏
下载
最近









































