查看完整案例


收藏

下载
Restaurantes E Bares, Cafeterias, Galeria, Karaj, Irã
设计师:OJAN Design Studio
面积:530 m²
年份:2019
建造商:Brutal Beton, Nooraneh Lighting Industry, Pico Color, Rak ceramics
Arquitetos Responsáveis :Ojan Salimi
设计团队:Ali Merati, Saber Tajik
客户:Eghbal Amin Khaki, Mohammad Shojaie Bakhsh, Hossein Shojaie Bakhsh
Engenharia Mecânica:Keivan Tavakoli
景观设计:Ojan Salimi
Colaboradores :Eghbal Amin Khaki, Hamed Jamshidi
Engenharia Civil:Alireza Safavieh
Executivo:Majid Reza Salimi, Alireza Safavieh
设计师描述 | Designer description:
A galeria e café Character está localizada próximo a uma das principais ruas de Mehrshahr na província de Alborz, com a área de 530 metros quadrados. Este antigo edifício era uma construção de dois pavimentos com infraestrutura precária, uma planta complexa e numerosas aberturas em arco. Devido à falta de orçamento e tempo de execução acelerado, tentou-se criar o mínimo possível de alterações no antigo edifício aplicando uma ideia flexível e criando uma nova definição para as aberturas em forma de arco. Assim, o Sabat, que é um elemento das travessias históricas da cidade de Yazd, foi reinventado a fim de alterar a profundidade de abertura e criar alongamentos em forma de arcos.
Ao fazer essas mudanças, esses arcos foram transformados em corredores para criar circulação e enfatizar a importância de cruzar os espaços para dar ao público um senso de curiosidade e deixá-los experimentar a presença das cidades históricas iranianas. Esta ideia tornou-se conceito no desenho de identidade corporativa, validando móveis e acessórios como balcão de bar, caixa e biblioteca e escritório administrativo. A entrada principal do projeto é formada ao longo das paredes do pátio que é feito de placas de concreto e trabalhadas com algumas ranhuras para criar uma conexão visual com os interiores do pátio do projeto. Essas placas permitem que a vegetação esteja presente no projeto.
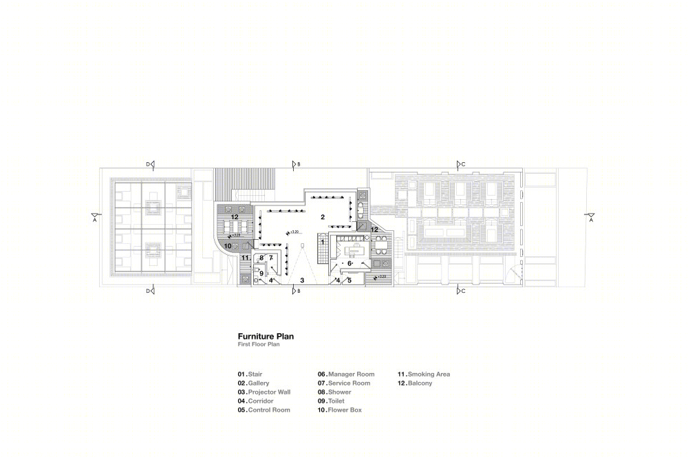
O Café e a Galeria Character tem dois pátios, um na frente e outro nos fundos do prédio. O pátio da trás tem sua própria área de estar próxima a pinheiros e uma densa vegetação, de forma que os assentos da parte da frente são cercados por vegetação e contam com o som relaxante da água. O térreo é destinado ao lounge principal, bar e área de manutenção, e tem acesso à sala da administração, sala de controle e terraços a partir de uma escada dobrável. Considerando que a preservação desta planta foi um dos pressupostos mais importantes na conexão deste projeto, decidiu-se por aplicar cores diferentes em corredores e outros espaços de forma a dar ao público uma melhor compreensão dos espaços.
项目完工照片 | Finished Photos
设计师:OJAN Design Studio
分类:Cafeterias
语言:葡萄牙语
阅读原文
客服
消息
收藏
下载
最近



























