查看完整案例


收藏

下载
独立住宅, Capelle aan den IJssel, 尼德兰
建筑师:derksen | windt architecten
面积:213 m²
项目年份:2019
摄影师: René de Wit
主创建筑师:Jeroen Derksen, David Windt
City:Capelle aan den IJssel
Country:尼德兰
在荷兰艾瑟尔河畔卡佩勒(Capelle aan den IJssel)的一个住宅区坐落着Derksen|Windt Architecten 设计的新作混凝土错层住宅。这个位于转角处的联排别墅通过巧妙的空间变化以及坚固耐用和轻巧材料的完美结合,印证了一座典型的荷兰联排别墅也可以被赋予如同豪华别墅或博物馆中才可见到的空间品质。
这片区域周围的住宅都是典型的上世纪下半叶建造,且风格一直沿用至今的联排别墅 — 一墙之隔的双层别墅,倾斜瓦屋顶架出的阁楼和砖砌外墙。
而 Derksen|Windt Architecten 的目标是让这个项目成为荷兰最美丽的联排别墅,并且拥有该住宅类型通常无法达到的高品质生活空间。
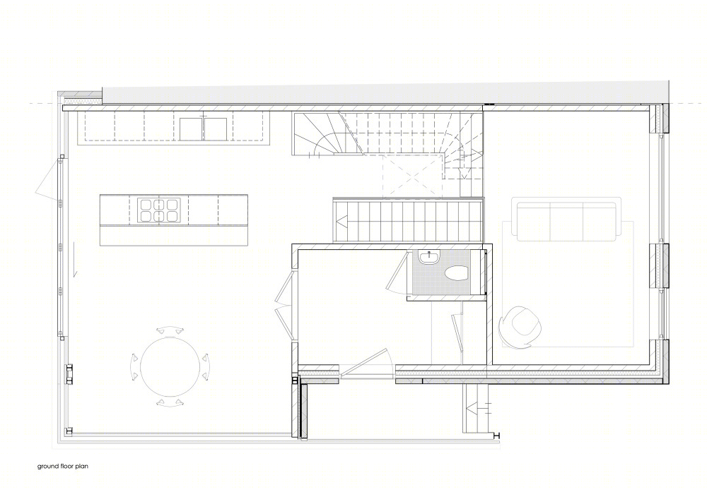
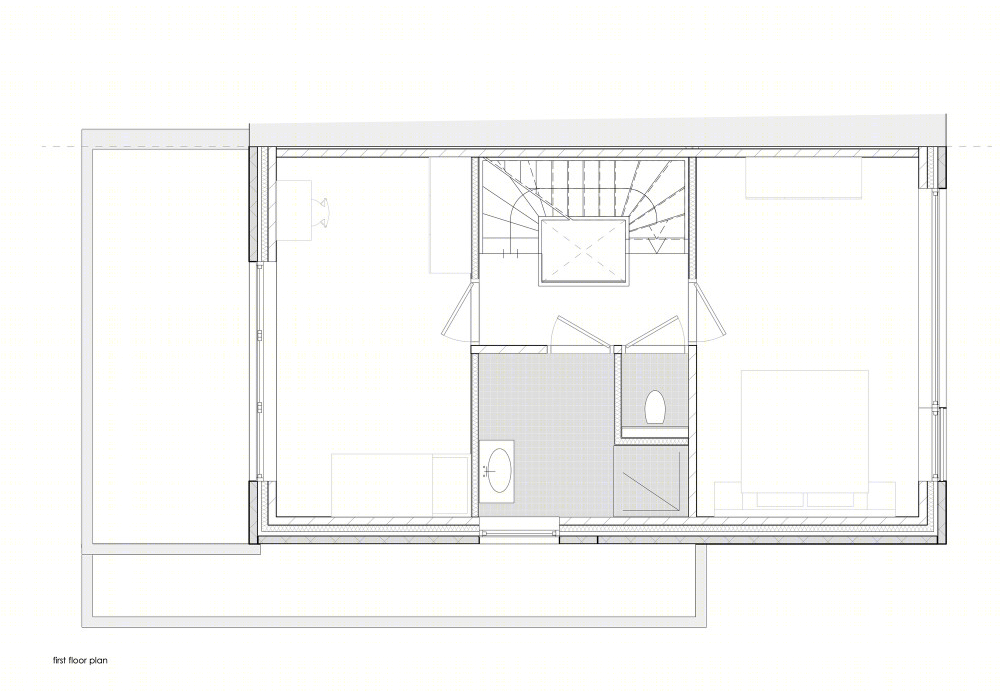
整个房子的布局围绕空间体验进行设计,将有高差的空间尽可能开放地连接起来。从厨房到地下室和起居室,从入口到阁楼,于高度的变化,窗户的位置,窗外的景色和材质的变化之间体会不同区域间的过渡。交错的地板包裹在坚固的外墙材料之间,整个房子的外墙、楼层和楼盖与周围环境完美契合。
尽管市政要求同种住宅设计使用类似石材的建筑材料而导致大部分的房屋都是砖砌立面,这个房屋的立面却以清水混凝土墙面出色的美学表现证明了设计的可能性不止于此。这种清水混凝土墙面长久以来受到建筑师们的喜爱且广泛应用于日本和瑞士建筑中,有着卓越的质感和精致感,使人身处其中会产生想要触摸它的欲望。
屋下的保温层里铺埋了地面换热器,屋顶是集成太阳能板。使用混凝土立面所增加的重量通过使用新型木地板材料加以抵消。整体设计因此达到坚固耐用,无需维护,可持续的目标。
项目完工照片 | Finished Photos
设计师:derksen | windt architecten
分类:独立住宅
语言:简体中文
阅读原文
客服
消息
收藏
下载
最近
























