查看完整案例

收藏

下载
设计理念:空间需要一种美感和情境,提供生活美学和生活艺术是设计师更应负的一种责任。
项目地址/金科-九曲河
Location /JinKe-Jiu Qu He
设计风格 / 现代简约风
Design style / Modern Style
项目面积/ 600㎡
Project Area / 600㎡
设计 / 彭华设计团队
Design / PH Design Taem
本案设计师:彭华
设计施工单位:重庆市.天古装饰(TG 码.壹中心)
项目介绍:
此案是位于重庆九曲河片区的别墅,两代居住,四口之家,女业主是一位非常有品位的知识青年,她希望带给家人一个自然放松,随意发挥的居家氛围空间,审美趋向现代简约。在这个项目中,设计师想以围合院落,以小见大的形式,让居住者进入心怀自然,松弛自由的生活状态。“庭院”的概念是整个项目中最重要的贯穿。
original structure[原始结构]
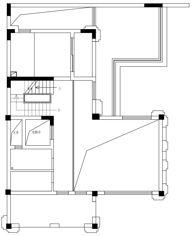
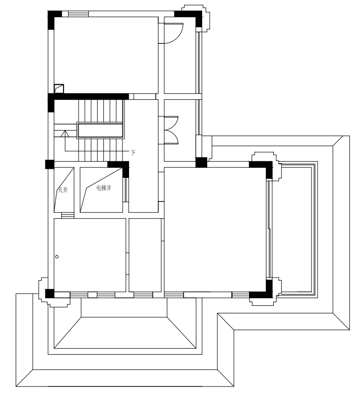
负二楼
一楼
二楼
三楼 Layout plan [ 平面布置图 ]
负二楼
负一楼
一楼
二楼
三楼 sunken garden [ 下沉花园 ] 下沉中庭打造了一个回归自然的杂木丛林空间,自然的石板与苔藓蕨类重现自然生机。常绿的阔叶伴着密布的绿藓,编织成静谧的外衣,裹挟着丛林湿润的土壤,这一刻,感受丛林的萌动生机,万物生长。
2nd basement floor [ 负二楼 ] 车库入口处,玄关设计兼顾实用性与美观性,绿植点缀,给家居增加一份活力和自然感。让归家第一眼变得恬静。
入户往里,是茶空间,茶空间与杂木中庭相连,墙面采用天然毛石上墙与木材质相撞,使空间多了一种软硬虚实之间的姹寂美感。有一种“门前小院,清风赏茶”的惬意氛围。
这样一个开放区域,成了一家人的休憩地,大家围坐一起,即便在家,也能轻松实现观影自由。
staircase [ 楼梯间] 本案楼梯间围绕中庭,自然采光。当光照射进来的瞬间,光与影,建筑与自然产生微妙的互动,给整个室内空间添加了无限活力。
basement-1 [ 负一楼 ] 负一楼主要以男女主人书房和儿童活动区为主。整层楼融合了亲子互动、手工绘画创作和居家办公的功能。围绕中庭大面积落地窗,巧妙地将负二楼与负一楼联系在一起。
儿童活动区大量开放书柜,营造学习氛围感,轻松大胆的软装色彩搭配让更显生动。
主人书房以简约高级的色调,和轻松的软装家具搭配,加上窗外庭院带来的一抹清新绿,创造出一个舒适宜人的工作环境。
the first floor [ 一楼 ] 空间中选用经典不失创意的家具陈设,使空间更具趣味性,且富有视觉焦点。
▲电视背景墙以大理石为主元素,黑白搭配看起来轻奢雅致。取消传统客厅中的大桌子,增大空间使用范围;木饰背景墙令空间渐生雅趣,熠熠生辉。
restaurant
[ 餐厅]
餐厅厨房与客厅和花园呈开放式环形连接,空间更显开阔。
餐厅采用了大理石圆形餐桌搭配皮质餐椅,艺术吊灯增添时尚气息,展现现代简约风格的魅力。
Second floor bathroom [ 卫生间] 星空顶以及全景玻璃窗使整个卫生间视野开阔,极简的设计,搭配大理石的澄澈高级,在动与静之间寻找平衡。没有过多装饰的通透,打造了浴室的清冷感。当洗净铅华洗掉万般色彩,宁静、平和、轻松的都市栖息港湾,才不负尘世披荆斩棘的每时每刻。
Third floor [ 三楼 ] 主卧没有强烈的色彩与繁杂的装饰,以舒适休憩为主。设计师在这里主要营造温馨氛围,低饱和度的色调打造出宁静的睡眠环境。主卧带有一个宽敞的阳台,设计师将其打造成一个小型花园,主人可以在这里阅读、休憩或者欣赏花园的风景。
Toilet [ 卫 生 间 ]主卫采用石材通铺,考量采光条件,以对称开窗的形式迎接自然的绿意,强化室外景观对室内氛围的影响,树影斑驳,日光摇曳传递出自洽怡然和松弛惬意的度假氛围。
设计源于生活
让灵感自由释放
客服
消息
收藏
下载
最近




























































