查看完整案例

收藏

下载
项目信息 / 招商央玺
建筑类型 / 下叠
设计面积 / 500 平米
设计团队 / 周昆设计团队
设计风格 / 现代轻奢
▶设计师周昆:在现代轻奢装修风格的房屋设计中,注重每一个细节,致力于为您打造一个舒适、奢华而具有现代感的居住空间。优质的材料、精致的家具和装饰品,以及合理的布局与灯光设计,都能够为您创造出一个令人心动的居住环境。在这个现代轻奢风格的房屋能够成为您追求品质生活、放松身心的港湾。尽情享受现代轻奢带来的舒适与奢华,创造出属于您的完美生活。
客餐厅空间
LIVING ROOM DINING ROOM SPACE
QINGMA ACHIEVES VILLA LIFE
◥奢享品质生活,尽在设计之间。以现代轻奢为主题,打造了一个充满品味和舒适的居住空间。采用高质量的家具和装饰品,从色彩和材质上呈现出奢华和现代感。宽敞明亮的布局和精心挑选的灯光设计,为居住者带来绝佳的舒适度和照明效果。配合精美实用的储物空间和装饰品,为居住者提供了一个宜人的休息空间。光线与绿植的巧妙搭配,营造出一个自然而宜人的氛围。餐厅以简约而精致的桌椅和餐具为亮点,为用餐体验增添了一份格调和优雅。整体风格兼具现代简约和奢华细腻之美。让居住者能够在这个现代轻奢风格的客厅和餐厅中尽情享受高品质的生活。◢卧室空间 BEDROOM SPACE QINGMA ACHIEVES VILLA LIFE
◥
尊贵与舒适并存,唯美细腻。
步入这个设计精致的卧室,您会被其独特的魅力所吸引。
考究的展现出奢华和舒适的完美结合。
灯光设计巧妙,为卧室增添了恬静的氛围。
高质量的家具和精致的软装饰,凸显出现代轻奢风格的精髓。
舒适的大床、柔软的床品和高品质的床垫,让您在每晚的休息中感受到无与伦比的舒适享受。
布置简洁而优雅,每一个细节都经过精心雕琢。
沉浸在尊贵与美感之中,享受着宜人而舒适的居住体验。
◢
其他空间
OTHER SPACES
QINGMA ACHIEVES VILLA LIFE
◥
沉浸于视听盛宴,尽享现代轻奢
让您在这里享受到最高品质的观影体验
无论是独自欣赏电影、享受音乐,还是和家人朋友一同畅玩游戏
这个影音室都将成为您放松心灵、享受娱乐的理想之地
品味艺术与品茗文化的完美结合
品茗区的设计以简约为主,把重点放在质感和细节上
自然光线和柔和的灯光相结合,营造出宁静而舒适的氛围
畅游电子竞技的殿堂,感受现代轻奢的电竞潮流
与好友一同创造游戏的欢乐,电竞室将为您提供一个完美的游戏空间
◢
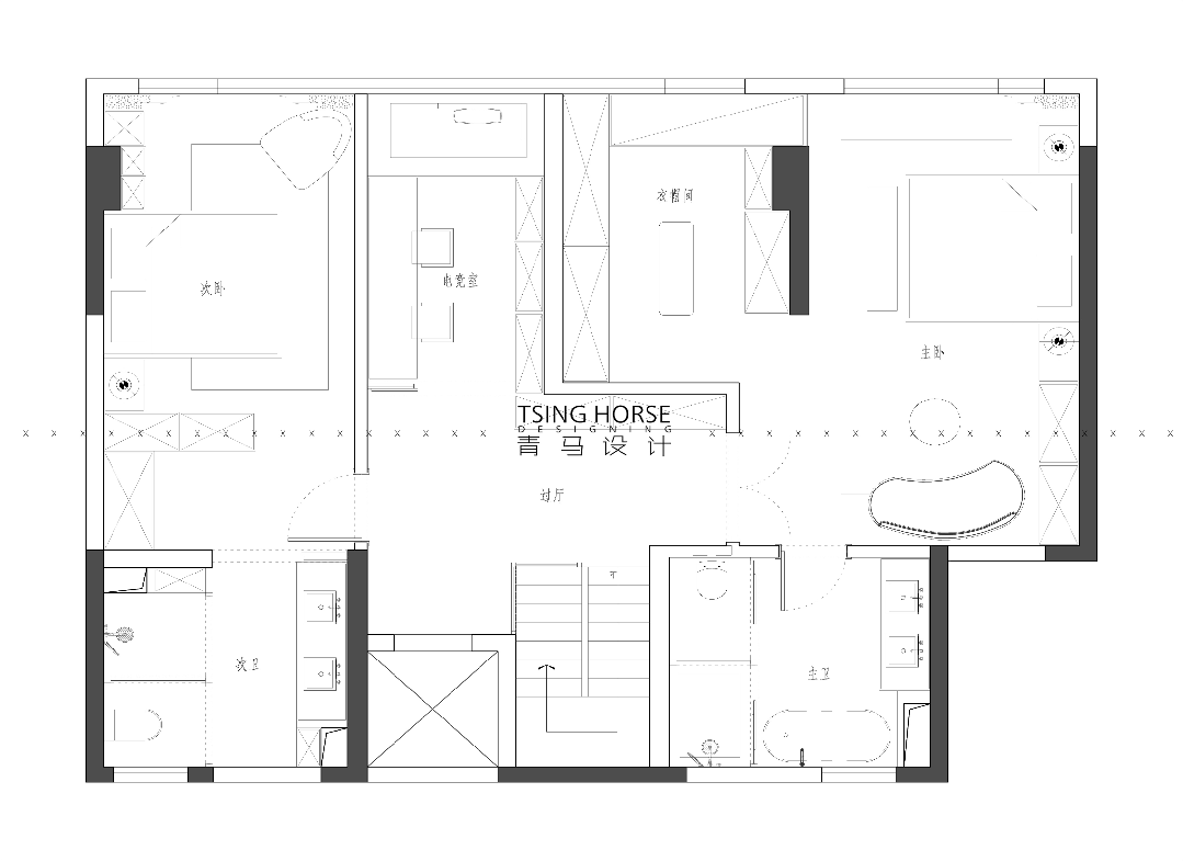
设计图纸
DESIGN DRAWINGS
QINGMA ACHIEVES VILLA LIFE
▶在这个现代轻奢装修风格的房屋中,简约与奢华、舒适与品味完美融合。高品质的材料、精心选配的家具和装饰品,以及考究的细节处理,都彰显了对生活品质的追求。充满现代感的设计搭配、恰到好处的灯光布置,营造出一个温馨而富有个性的居住空间。无论是在客厅休憩、餐厅用餐、卧室休息,还是在影音室、品茗区、电竞房等特色空间中,您都能够尽情享受到现代轻奢风格所带来的舒适与奢华。这个房屋将成为您品味生活、尽情享受的理想之地。
主创设计师
CHIEF DESIGNER
QINGMA ACHIEVES VILLA LIFE
◤
周昆
青马设计主创设计师
毕业于西安美术学院环境艺术专业
室内装饰行业从业 16 年以上,专属大宅全案设计
资质
中国软装协会会员
西安建筑装饰室内设计协会会员
中国室内建筑设计师协会注册设计师
设计理念
设计源于灵感,灵感源自生活,用思想去创造设计用心去体验生活
殊荣
2011 年“家春秋”室内设计大赛“银奖”
2012 年“筑巢奖”空间设计类“优秀奖”
2013 年“京瓷杯”新中式设计大赛“优秀奖”
2015 年“金外滩”室内设计大赛“入围奖”
2019 年“红创奖”室内设计大赛“优秀奖”
2022 年“华鼎奖”室内设计大赛“优秀奖”
案例
中海铂宫,鸿基紫韵,湖城大境
南湖·九号院,凤凰池,曲江大城
曲江公馆,兰乔圣菲,未央金茂府
龙湖景粼天序
等
.....
◢
往期回顾
PREVIOUS REVIEW
QINGMA ACHIEVES VILLA LIFE
青马实景落地丨东原印未央·200㎡现代轻奢·情韵之家,品味与品质共存/吕韶华
青马实景落地丨龙湖景粼天序·215㎡现代简约·高级生活的象征,现代之境 / 胡旻娜
青马作品 | 绿地城·360㎡下叠简约轻奢·理想居所,尽享至臻奢华 / 李峻
青马实景落地丨鼎鑫万和·260㎡法式·维纳斯的华彩,奢华与品味的交织/苏怡人王清玉
青马实景落地丨曲江名城·440㎡去风格化·典雅之道,艺境翩然/陈哲梧
青马实景落地丨荣德荣泽公馆·220㎡现代·细腻之美,用艺术元素点亮高级生活/冯杰设计公司
DESIGN COMPANY
QINGMA ACHIEVES VILLA LIFE
青马设计
隶属于北京尚美饰家装饰集团旗下,专注于高端别墅大宅的装饰品牌;由集团精心重资打造,经过多年不断的淬炼升级与创新融合,打破以往客户服务的常规局限,构建全新的大宅别墅全案设计和整装服务平台,专注服务对象涵盖企事业精英人士和高端客户群体,提供大宅别墅装饰的整体规划设计与施工产品整体交付私属定制服务。
青马设计
集结行业内经验丰富的设计大咖、大客户经理、工程大管家、优秀的工程项目经理打造的“大宅别墅工程”管理体系,“多对一”式的整装服务系统,在行业里形成独特 TSING HORSE 系风格的青马设计范式。青马设计不仅是装修服务的提供商,更是大宅别墅生活方式的服务商。青马-成就别墅生活。
生活的格调
就是一个人对自我独特的定义
是生活,是艺术
而家
就是格调的终极表现
青马,只想给你一个格调家
客服
消息
收藏
下载
最近





































