查看完整案例

收藏

下载

翻译
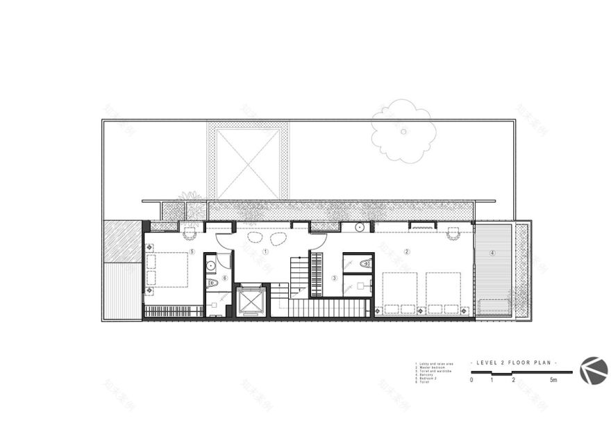
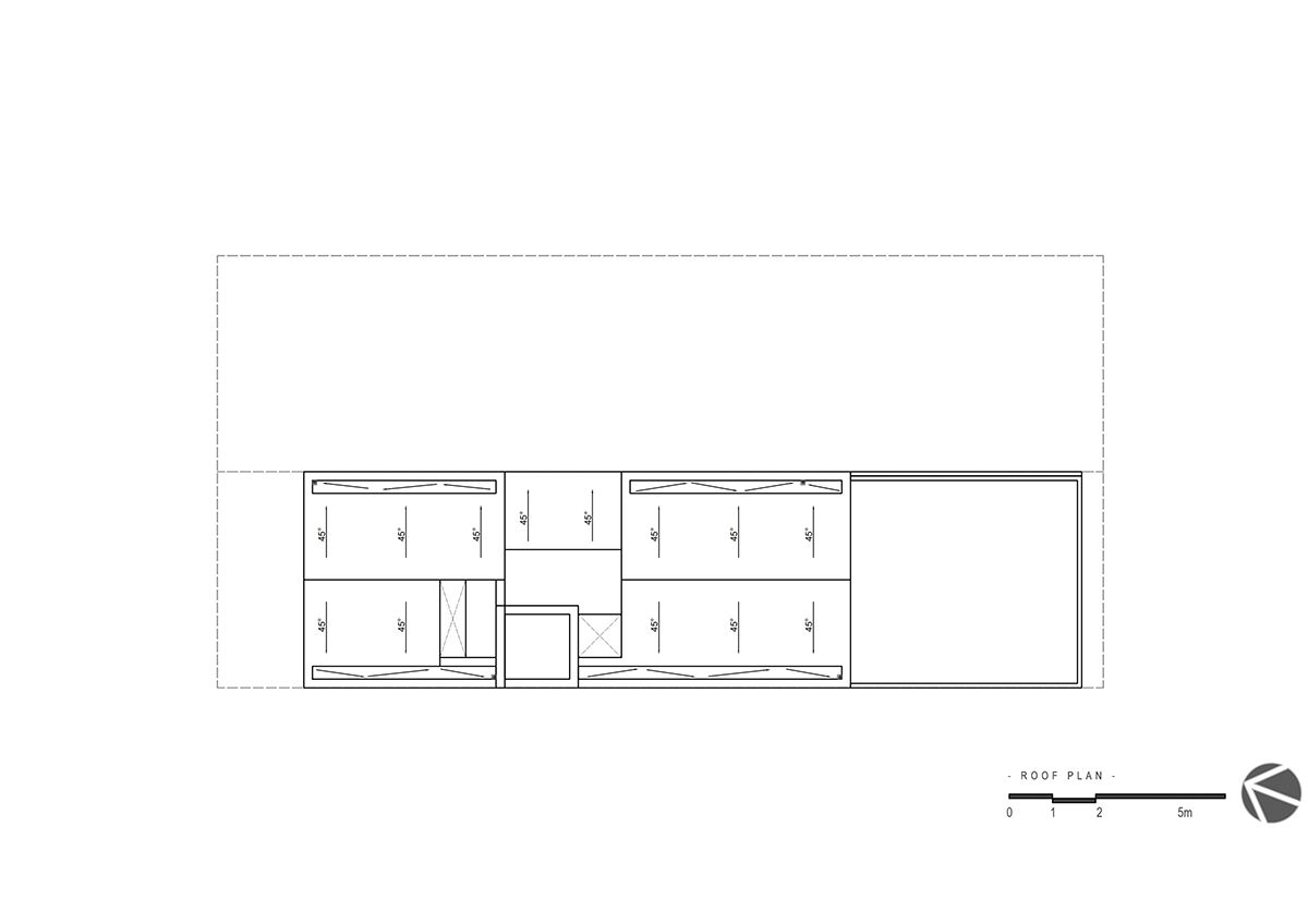
Công trình 250m2 tọa lạc tại Quy Nhơn, Bình Định này được thiết kế nhằm đón trọn ánh sáng mặt trời từ hướng Đông, tạo ra không gian sống thông thoáng, khác xa sự ngột ngạt đô thị.Hnam House nằm trên 2 lô đất trong khu quy hoạch đô thị mới An Phú Thịnh, Quy Nhơn, Bình Định. Gia chủ là hai vợ chồng đã lớn tuổi và hai con gái, với thói quen sống ưa chuộng cây xanh, mong muốn ngôi nhà mới là nơi giữ gìn và phát triển thói quen đó, tạo nên một không gian sống thông thoáng, sáng mát, khác xa sự ngột ngạt thường thấy ở nơi nhà phố đô thị.Đây là khu vực quy hoạch đô thị mới, phát triển vùng ven của thành phố Quy Nhơn, mật độ quy hoạch khá cao. Nhóm KTS quyết định xây dựng trên một lô đất, và giữ lô còn lại không xây dựng, để giải phóng không gian tốt nhất cho ngôi nhà. Từ đó, ngôi nhà được đón trọn ánh sáng buổi sáng, cây xanh gần gũi với các không gian sinh hoạt, thông thoáng tự nhiên, và hạn chế nắng buổi chiều từ hướng ngược lại.Tầng trệt là không gian sinh hoạt chính, với bếp – bar – phòng khách hòa thành một, kết nối trực tiếp với sân vườn bên cạnh.Tầng hai là phòng master tối đa diện tích cũng nhìn ra hướng sân vườn nhờ cách đặt cầu thang dọc nhà tầng trệt và chuyển vế thang các tầng trên.Tầng ba là gian thờ ấm cúng, không gian cao thoáng được tạo bởi mái dốc, cùng với ánh sáng dịu từ mảng gạch kính lớn.Các gian phòng đều có cây xanh tự nhiên, bàn làm việc hướng ra bên ngoài, tạo sự hứng thú khi làm việc tại nhà. Vườn rau sân thượng là nơi lưu giữ thói quen trồng rau cho chủ nhà. Bồn cây lớn dọc tầng hai hướng Đông, vừa tạo điều kiện thuận lợi cho việc trồng cây, vừa tạo khoảng đệm giảm nắng cho tầng bên dưới.Nhóm KTS mong muốn ngôi nhà trở thành nơi tạo cảm hứng cho cuộc sống. Từ những đổi mới trong không gian ở, gia chủ có những trải nghiệm tốt trong cuộc sống và làm việc tại nhà.Xem đầy đủ hình ảnh trong bài tại đây:Biên tập: Quỳnh AnhXEM THÊM:
客服
消息
收藏
下载
最近





















































