查看完整案例

收藏

下载

翻译
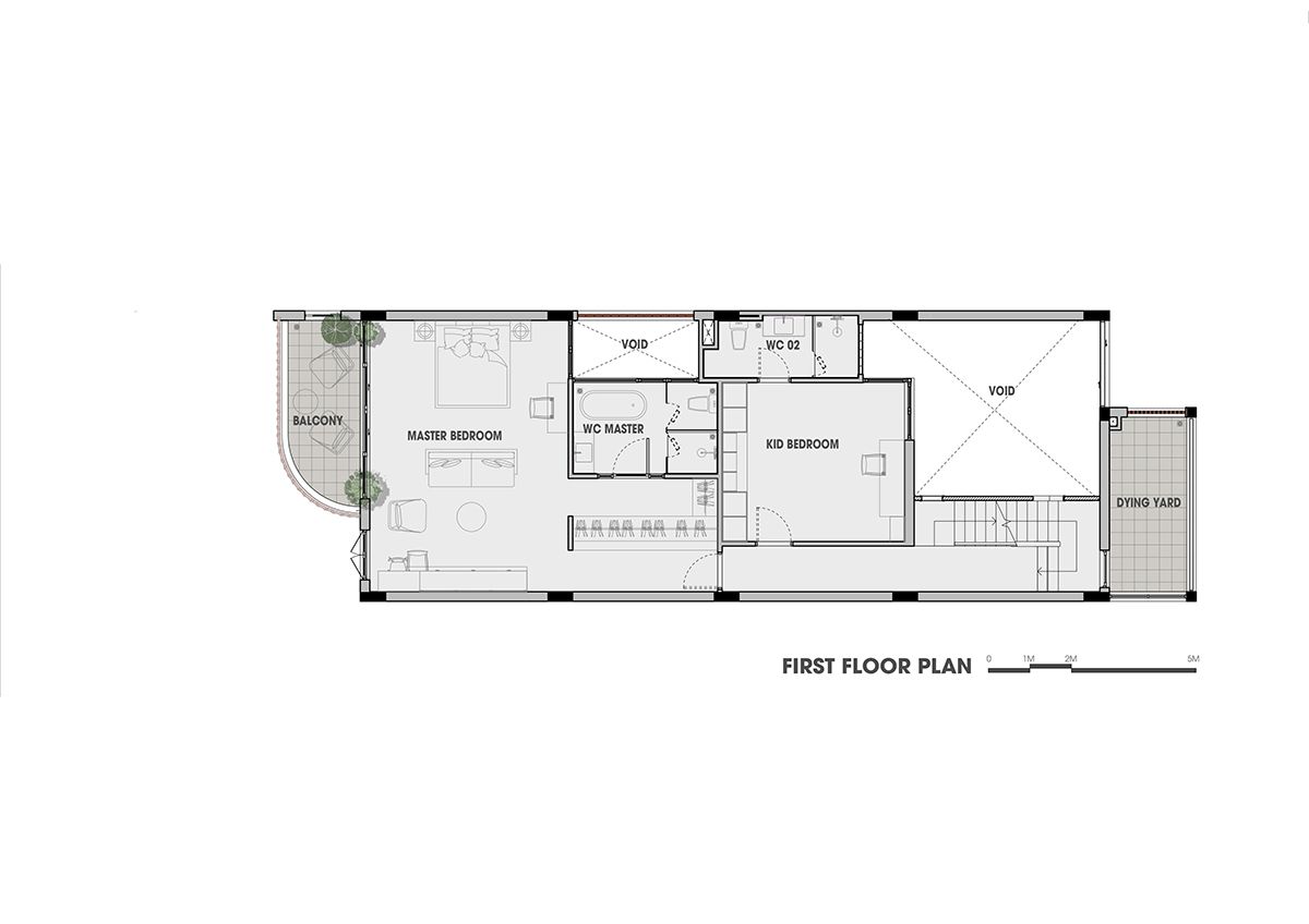
Khi màn đêm buông xuống, Lantern house “lên đèn” đẹp lung linh, tỏa sáng tựa như một chiếc đèn lồng giữa thành phố Quảng Trị.“Ngôi nhà lồng đèn” lung linh một góc phốLantern house có diện tích 182m2, tọa lạc tại Đông Hà, Quảng Trị. Gia chủ ngôi nhà này đã yêu cầu thiết kế một ngôi nhà hết sức trẻ trung, phóng khoáng dùng để ở.Đồng thời, chủ nhà còn trưng bày một shop thời trang đặc biệt, chỉ dành cho những khách hàng thân thiết đến giao lưu, tâm tình và chọn lựa. Do đó, họ cần có một ngôi nhà hình thức ấn tượng, hấp dẫn cả ban ngày lẫn buổi tối.Với yêu cầu này, nhóm kiến trúc sư đã kết hợp các đường cong mềm mại, đồng điệu với những món đồ trưng bày trong shop, đồng thời bố trí cây xanh ở phía trên mái để tạo nên một mặt tiền hài hòa, ấn tượng và có chiều sâu. Bức tường gạch như một lớp áo bao bọc lấy mặt tiền, có tác dụng giảm bức xạ ánh sáng, tạo không gian riêng tư cho ban công phòng ngủ.Đặc biệt, khi đêm xuống, hiệu ứng ánh sáng này đã khiến cho ngôi nhà như một chiếc lồng đèn chiếu sáng lung linh một góc phố, hào hứng chào đón những người bạn thân thiết đến chơi.Giải quyết gọn ghẽ vấn đề thời tiết, khí hậuCông trình nằm ở miền Trung Việt Nam, nơi có các mùa nhiệt độ thay đổi hết sức rõ rệt: mùa đông lạnh, mưa và mùa nóng, khô kéo dài hàng tháng. Để giải quyết vấn đề khí hậu, kiến trúc sư đã thiết kế làm sao cho tất cả các phòng trong nhà đều hạn chế tiếp xúc trực tiếp với bên ngoài, luôn qua một môi trường không gian đệm.Phòng khách, phòng ăn và bếp được thiết kế với không gian cao rộng thoáng. Ánh sáng được lấy từ giếng trời và cửa sổ trên cao. Nguồn ánh sáng dịu nhẹ, có nhiều cây cối xanh tươi sẽ làm cho tầng trệt của ngôi nhà luôn mát mẻ vào mùa hè và ấm cúng vào mùa đông.Phòng đọc sách ở tầng lửng là khoảng thông tầng rộng lớn. Kiến trúc sư bố trí cửa mở trực tiếp ra sân vườn phía sau. Ánh sáng khu vực này vừa đủ do các nhà xung quanh đã che khuất phần nào.Phòng chơi của con ở lầu 1, ánh sáng được lấy từ ánh sáng tán xạ ở khoảng thông tầng lửng. Đối với phòng ngủ chính, kiến trúc sư thiết kế cửa sổ nhỏ nhìn ra ngoài sân vườn phía trước và khoảng thông tầng phía sau.Ban công được “khoác” một lớp áo bằng gạch nhằm giảm bức xạ nhiệt đồng thời tạo nên khoảng không gian riêng tư để gia chủ ngồi thư giãn, trò chuyện.Để giảm bức xạ nhiệt từ trên mái xuống, cũng như hạn chế việc thấm nước trong mùa mưa, kiến trúc sư đã thiết kế 1 hệ khung sắt, lợp tấm poly lấy sáng. Cấu tạo này không chỉ bảo vệ vườn cây trên mái, giúp chúng vẫn lấy được ánh sáng để sinh trưởng, mà còn sẽ hạn chế mưa làm hư hại rau màu và đồng thời giảm bức xạ nhiệt cho các phòng ở bên dưới lầu 1.Về nội thất, không gian và màu sắc nội thất thay đổi linh hoạt tạo ra những cung bậc cảm xúc khác nhau trong ngôi nhàỞ phòng khách, phòng ăn, bếp, trần được nâng cao, uốn cong. Ngoài ra, màu sắc của trần được phối như màu của bầu trời bình minh, khiến gia chủ và khách tới chơi luôn cảm nhận được nguồn năng lượng tích cực.Phòng đọc sách, sinh hoạt chung là không gian đệm của ngôi nhà, với trần cao, các hướng nhìn rộng về phòng khách hay sân vườn và tạo hình ở cầu thang đã làm cho khu vực trở thành một không gian năng động, sáng tạo.Các phòng ngủ trong nhà, phòng thay đồ và nhà vệ sinh luôn được lấy ánh sáng tự nhiên và thông thoáng, mát mẻ.Xem đầy đủ hình ảnh công trình tại đây:Biên tập: Phương AnhXEM THÊM:
客服
消息
收藏
下载
最近


























































