查看完整案例

收藏

下载

翻译
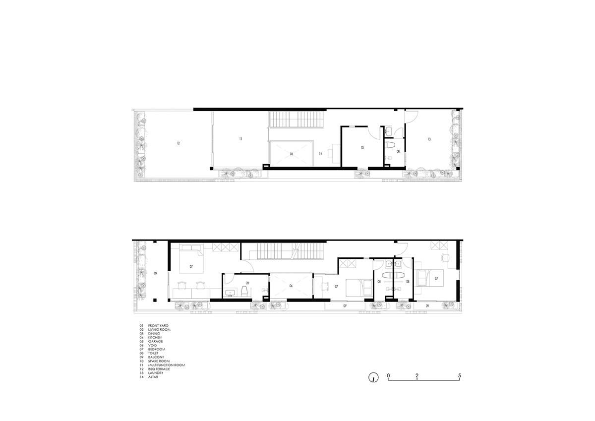
Vy House là món quà mà cô con gái muốn dành tặng gia đình của mình, với mong muốn tạo ra không gian gần gũi cho các thành viên, đồng thời gần gũi hơn với thiên nhiên. Sử dụng các thanh lam dọc đan xen với những mảng xanh, nhóm KTS không chỉ làm cho căn nhà giảm bớt tác động của ánh sáng mặt trời, khói bụi mà mỗi gian phòng đều cảm nhận được sự khác nhau khi nhìn ra ngoài.Vy House, với diện tích sàn khoảng 324m2, nơi mà tất cả các thế hệ của gia đình sẽ cùng sống và sinh hoạt với nhau. Đây là món quà mà cô con gái muốn dành tặng cho gia đình của mình. Ngôi nhà trước đây đã 20 năm tuổi, kiến trúc bị đóng kín bằng những bức tường và cửa sổ nhỏ, không có cây xanh, ánh sáng mặt trời, không gian thông tầng không được sử dụng đúng mục đích của mình, các khoảng không gian ban công dài gây lãng phí. Mặt bằng cũ khiến ngôi nhà có cảm giác tối tăm bên trong dù có hai mặt tiền và một mặt giáp hẻm.Ý tưởng chính của thiết kế là sự đơn giản, không gian xanh, đồng thời tạo sự kết nối các thành viên trong gia đình thông qua khu vực nơi giếng trời, giúp gần gũi hơn với không gian thiên nhiên và tận hưởng cuộc sống tốt nhất bằng việc áp dụng các giải pháp thích hợp.Nhóm KTS đã cải thiện các vấn đề này dựa trên những ưu điểm của vị trí căn nhà, chẳng hạn như các khoảng nhìn đẹp và thoáng thông qua các ô cửa kính lớn. Nhờ vậy, toàn bộ phòng ngủ trong ngôi nhà có tầm nhìn ra được khung cảnh đẹp. Sử dụng lớp bao che dạng lam đứng bằng nhôm mặt tiền, nhóm KTS muốn hướng tới một vật liệu vừa chịu được tác động thời tiết, vừa được trang trí bằng lớp dán giả gỗ xóa tan sự thô cứng của kim loại. Việc sắp xếp ngẫu nhiên các thanh lam kết hợp với mảng xanh trồng cây không chỉ giảm thiểu được các tác động của ánh sáng mặt trời, khói bụi mà còn giúp cho mỗi gian phòng đều cảm nhận được sự khác nhau khi nhìn ra ngoài, không gây buồn chán như những thiết kế ban công cũ xưa.Từ mỗi không gian nội thất, mọi người đều cảm nhận được mảng xanh và sự khác nhau trong thiết kế mặt tiền.Các thanh lam đan xen với mảng xanh tạo sự hấp dẫn, hiện đại cho mặt tiền và thu hút ánh nhìn của mọi người khi đi ngang qua đây.Các thanh lam dọc được sử dụng ngẫu nhiên cả trong và ngoài của căn nhà, từ các thanh lan can, khu vực giếng trời, trở thành ngôn ngữ thiết kế duy nhất của toàn bộ công trình, nhằm tạo sự liên kết cả từ kiến trúc đến không gian nội thất. Để biến những ý tưởng này thành hiện thực, đội ngũ thiết kế và đội thi công phải hợp tác nhằm triển khai từng kích thước, chi tiết, màu sắc cũng như lựa chọn các mô hình thử một cách cẩn thận và kĩ càng. Đó còn là nỗ lực và trách nhiệm mang đến cho gia chủ một không gian chất lượng và đáng sống nhất.Xem đầy đủ hình ảnh trong bài tại đây:Biên tập: Quỳnh AnhXEM THÊM:
客服
消息
收藏
下载
最近


































































