查看完整案例

收藏

下载
"
"
黑白灰三室一厅 | IRA LYSIUK
_________________________________________
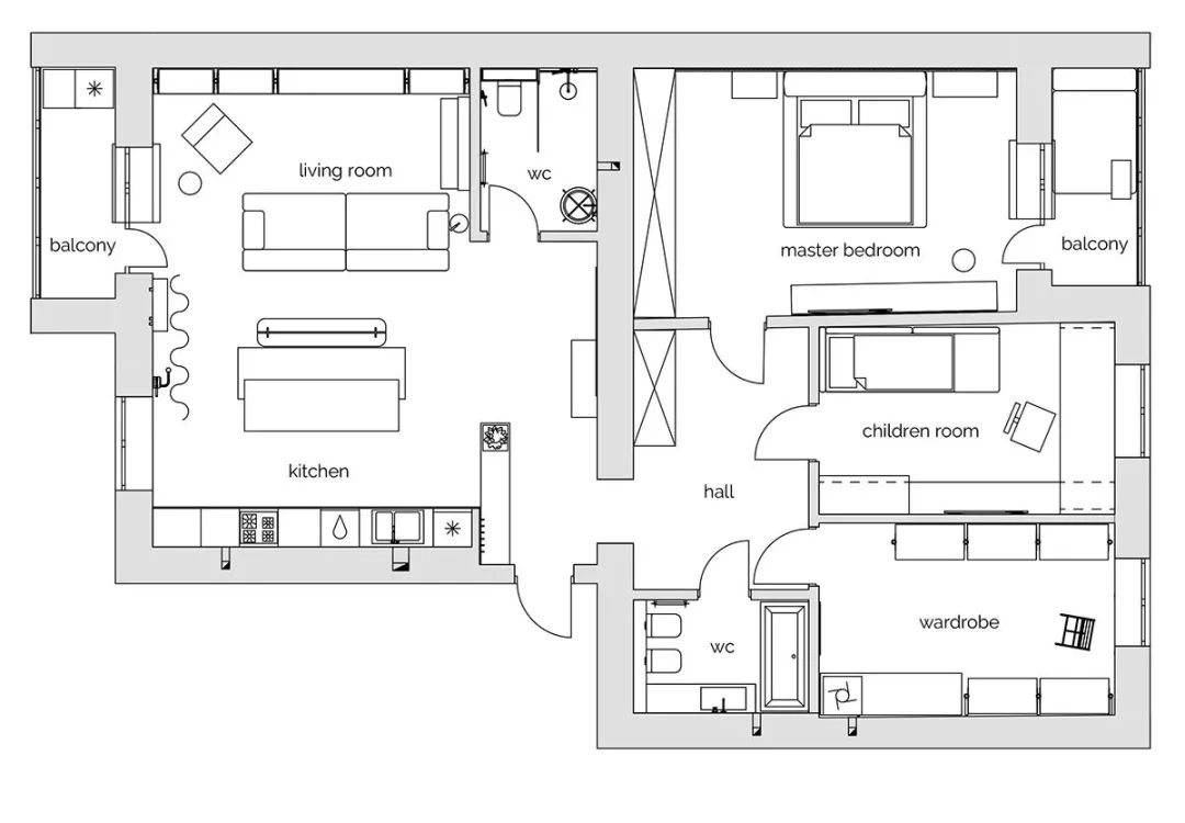
这间公寓位于乌克兰卢茨克,由IRA LYSIUK操刀设计,设计师利用高级灰的配色,在简约现代的空间中打造出高级质感。再加上原木材质与绿色植物的点缀,打造出了现代都市生活下简练与优雅的生活氛围。
客厅处,设计师使用了开放式设计,营造出宽敞开阔的视觉感受。利用灰色的布艺沙发搭配格纹毛绒地毯,奠定空间整体的沉稳高级基调。黑白灰的合理运用让空间的色调和谐统一。阅览区处的原木材质,点缀了整体黑白灰的空间,让空间更加通透。
餐厅与厨房位于同一空间,设计别出心裁。不同高度的双台面中岛台,让其拥有用餐与操作的双重功能,既美观又实用。白色中岛台与后方的深灰色橱柜,形成了颜色上的对比,打造出了空间的深邃感与高级感,丰富了空间的层次。
主卧依旧是延续黑白灰的高级配色,将简约的手法与高级的色调融合。空间中利落的线条,展现出现代极简主义下的几何美感。灰色系的床品搭配上一抹两眼的橙色,为空间带来活力,打造出了一个温馨舒适的休憩空间。
儿童房的设计中,除了使用了高级耐看的黑白灰配色,还加大了橙色的面积,为空间带来了活力感。
卫生间的设计时尚而高级,空间中的简约线条,现代而高级。深灰色台盆与木色柜体相互融合,形成了色彩上的对比。圆形的梳妆镜,造型简洁而不失美感。
About.
IRA LYSIUK
IRA LYSIUK是一家来自乌克兰的设计工作室。他们的项目就像是一张画布,美丽的照片隐藏着艰苦的工作。13年来,他们一直在努力提高自己的技能,以使每个项目都独一无二。他们认为简单是最难设计的,复杂是最简单的。
其他佳作
STONEGREY
LIGHT IVORY
E.N.D
推荐
原创
客服
消息
收藏
下载
最近






































