查看完整案例

收藏

下载

翻译
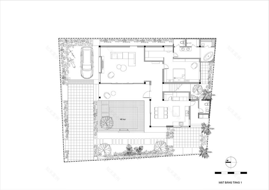
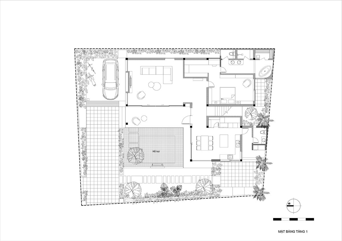
Nhà truyền thống Việt Nam rất đẹp và mang nhiều ý nghĩa, nhưng hình thức và công năng của nó đã nhiều phần không còn phù hợp với bối cảnh xã hội ngày nay. Vậy phải làm sao để không gian sống hiện đại vẫn giữ được những nét đẹp truyền thống trong sinh hoạt của gia đình nhiều thế hệ? Nhà Hướng Tâm chính là một đáp án cho câu hỏi đó.Nhà Hướng Tâm được xây dựng trên nền đất vườn bên cạnh ngôi nhà mà cả gia đình đã sinh sống từ lâu. Ngôi nhà mới được thiết kế cho 3 thế hệ cùng sinh sống với những yêu cầu đặt ra: Thiết kế phải làm tăng sự liên kết giữa các thế hệ, nhưng vẫn đảm bảo không gian riêng tư của từng thành viên gia đình. Bên cạnh đó, các không gian chung liên kết chặt chẽ với nhau và có thể tiếp cận từ nhiều hướng. Cuối cùng là ưu tiên thông gió, chiếu sáng và cách nhiệt tự nhiên.Ý tưởng thiết kế của ngôi nhà được truyền cảm hứng bởi gia chủ rất nhiều. Từng thành viên trong gia đình đều yêu thương nhau hết mực, luôn muốn nhìn thấy nhau mọi lúc nên tất cả các không gian chung đều hướng về một phía – trung tâm của khu đất. Song song với đó, các không gian riêng tư được bố trí biệt lập nhưng vẫn có thể tiếp xúc tối đa với thiên nhiên.Với một công trình nhà ở dành cho nhiều thế hệ, các không gian sinh hoạt chung rất quan trọng trong việc kết nối các thành viên với nhau. Cũng vì lẽ trên, không gian phải được sử dụng cho nhiều mục đích cùng nhiều luồng giao thông chồng chéo. Để cân bằng lại sự phức tạp của công năng và giao thông, các không gian chung của ngôi nhà đều được thiết kế tinh giản, nhiều khoảng trống và có thể tiếp cận từ nhiều hướng. Hình thức “nhà chữ L” với hình khối nhẹ nhàng, đơn giản nhưng đáp ứng hiệu quả nhu cầu sinh hoạt với luồng giao thông tương đối phức tạp.Tầng 2 chủ yếu bố trí các không gian riêng tư. Mỗi phòng đều có ban công lớn giúp tối ưu tầm nhìn, thông gió và chiếu sáng tự nhiên.Xem đầy đủ hình ảnh công trình:Biên tập: Thanh TúXEM THÊM:
客服
消息
收藏
下载
最近



























































