查看完整案例

收藏

下载

翻译
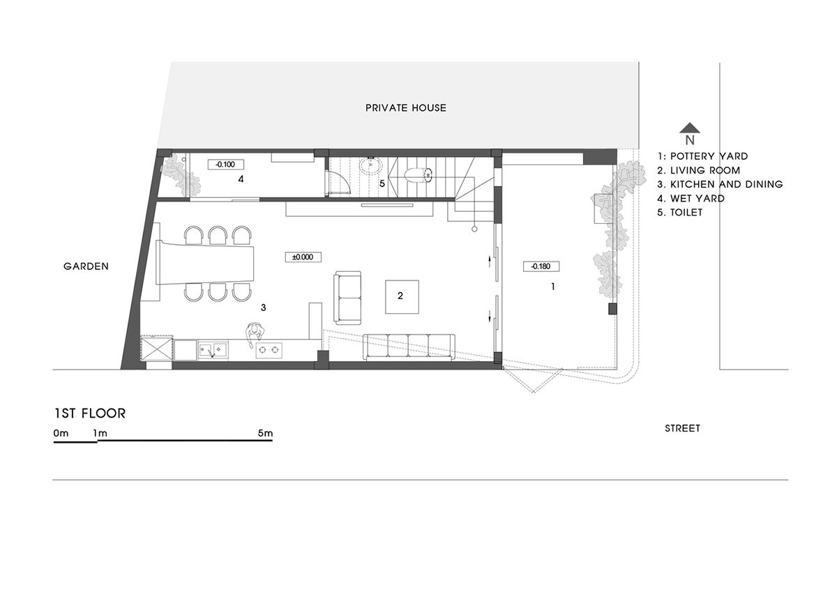
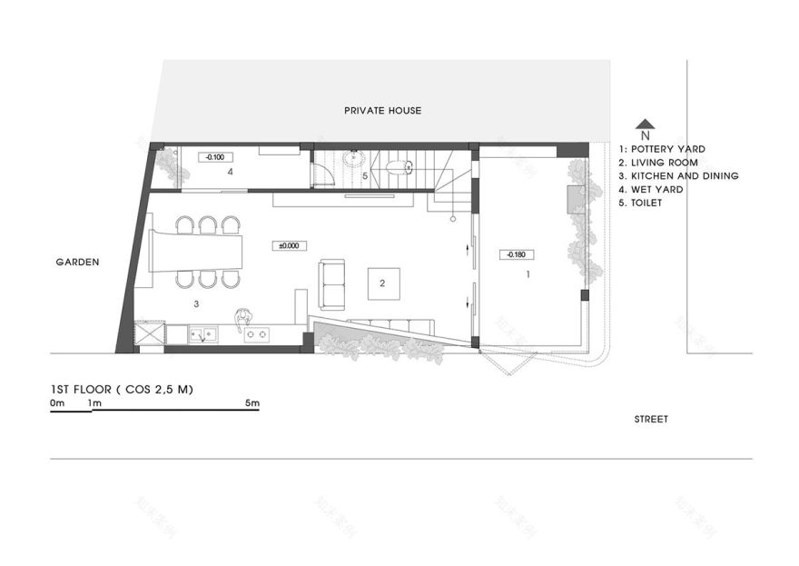
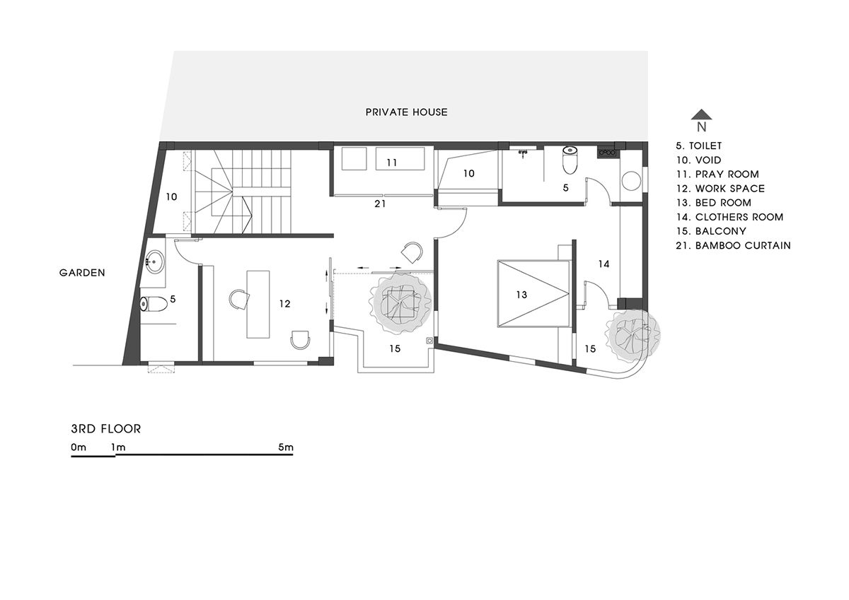
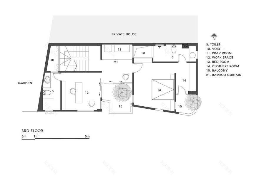
KTS đồng thời cũng là chủ nhân của ngôi nhà rất yêu thích bản sắc văn hóa và truyền thống của làng quê vùng cao, cùng với gốm Bát Tràng nơi anh sinh ra. Chính vì vậy, khi xây dựng ngôi nhà của mình anh muốn đưa những nét đẹp đó vào trong công trình. Đó cũng là cơ hội để các bạn nhỏ được học tập và khám phá.Ngôi nhà đá cuội nằm ở làng Bát Tràng bên sông Hồng, một làng gốm truyền thống ở miền Bắc Việt Nam. Kiến trúc sư cũng là chủ nhân của ngôi nhà. Anh đã tích lũy văn hóa thông qua làm việc với các dân tộc thiểu số trong nhiều năm. Anh yêu bản sắc văn hóa và màu sắc truyền thống của làng quê vùng cao, cùng với gốm của làng Bát Tràng – nơi anh sinh ra để tạo nên không gian sống độc đáo của mình.Ngoài yêu cầu về kiến trúc tiết kiệm năng lượng, còn tạo không gian cho trẻ em sinh hoạt, học tập và trải nghiệm đa dạng, gần gũi với thiên nhiên. Nhà Sỏi Cuội được làm bằng các vật liệu: trần tre, mành tre, vải thổ cẩm của người Thái và người Mường, cửa trong của người Dao đen (ô cửa sổ của người Dao Đen), bê tông nền, gạch men và gạch thông gió truyền thống của làng gốm.Tầng 1 gồm khoảng sân thoáng phía trước, khoảng đệm tránh bụi và tiếng ồn, sau đó là phòng khách liên thông với bếp ăn và kết thúc là giếng trời thông thoáng, lấy sáng tự nhiên. Các cửa sổ ngang cao hơn 2m ở tầng một cung cấp ánh sáng và thông gió đồng thời giảm thiểu bụi và tiếng ồn đồng thời bảo tồn những nét độc đáo của tòa nhà. Toàn bộ khu vực sinh sống được bao phủ bởi trần tre. Phòng ngủ chính và phòng trẻ em nằm trên tầng hai. Phòng ngủ trẻ em được thiết kế đa chức năng, vừa có thể là không gian sinh hoạt chung của gia đình, vừa là nơi học tập của các bé.Mọi khu vực đều mang tính chiêm nghiệm (nhất quán): Cây xanh, ánh sáng mặt trời và hương thơm của cây cối chào đón bạn khi bạn mở lối vào. (Mở cửa ra là “chạm” vào cây xanh, bóng nắng, hương thơm cỏ cây.). Trên tầng 3, trung tâm của không gian là phòng thờ nhìn ra ban công rộng, 2 bên là phòng ngủ và phòng làm việc. Phòng thờ có hệ thống mành tre kéo xuống đơn giản tạo sự riêng tư và giải pháp mở cửa để thông gió tự nhiên. Sân thượng, tầng tum – mong muốn lưu giữ kỉ niệm cho trẻ nhỏ với khoảng sân trải sỏi tự nhiênHàng ngày, các bé sẽ được tham gia các hoạt động tương tác trên sân thượng như: trồng, chăm sóc cây xanh, sáng tạo trò chơi với những ngôi nhà đá cuội, ngăn cách với smartphone, TV, iPad… Không gian studio trưng bày gần đó được dùng để trưng bày gốm sứ , không gian cafe, và phòng tập gym có mái che. Đi chân trần trên sỏi có tác dụng xoa bóp bàn chân, tăng khả năng tương tác của trẻ với thiên nhiên, phần nào kéo trẻ rời xa các thiết bị công nghệ, điều mà xã hội cấp bách hiện nay thường lãng quên.Bên cạnh đó, KTS đã áp dụng giải pháp thông gió tự nhiên đảm bảo gió mát Đông Nam, ưu tiên 2 giếng trời, chênh áp, thông gió tự nhiên. 2 giếng trời kết hợp với cửa sổ tinh tế giúp tất cả các phòng đều có ánh sáng tự nhiên, mỗi toilet đều có 2 cửa sổ.Sử dụng mái bằng và lớp đá cuội tự nhiên dày 20cm tạo lớp cách nhiệt hiệu quả cho kết cấu bên dưới, kết hợp tưới nước tự động. Hệ thống làm mát tầng thượng làm mát nhanh chóng trong suốt cái nóng. Hơn nữa, Cobblestone cũng là một cách thiết thực để liên kết các hàng rào bê tông.Gạch bê tông nhẹ được sử dụng trong xây tường để cách nhiệt tối đa. Việc trồng cây xanh theo mảng lớn, tán rộng trên mái cũng góp phần giảm lượng nhiệt truyền vào không gian sử dụng.Xem đầy đủ hình ảnh công trình tại đây:Biên tập: KAXEM THÊM:
客服
消息
收藏
下载
最近










































