查看完整案例

收藏

下载

翻译
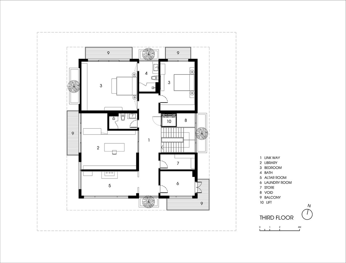
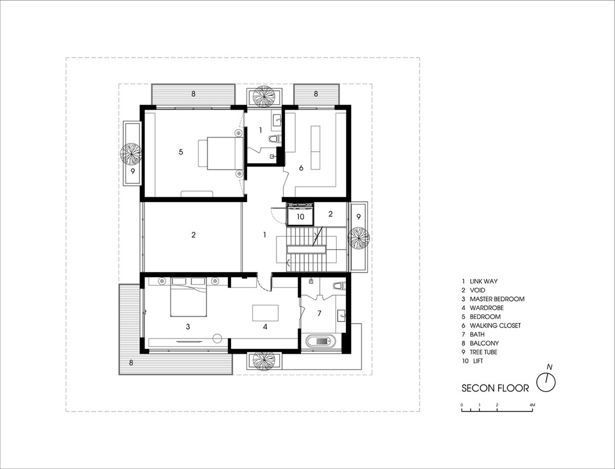
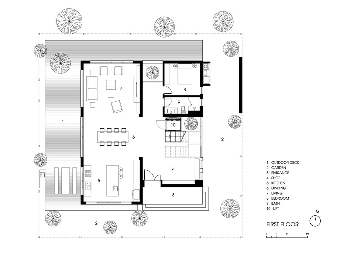
Là một căn biệt thự nằm trong khu đô thị Ecopark, MMs002 Villa được lấy cảm hứng từ “bụi tre” – một hình ảnh vô cùng quen thuộc trong văn hóa Việt. Căn Villa mang dáng vẻ bình dị, nhẹ nhàng và duyên dáng.Đối với NTK, mỗi công trình là một quá trình sáng tạo về ý tưởng, giải pháp kỹ thuật và hài hòa với nhu cầu của gia chủ. Trong đó, tìm ý tưởng thiết kế là bước đầu tiên và luôn được khơi dậy từ những nét đặc trưng của văn hóa địa phương, những điểm độc đáo của môi trường tự nhiên. Cảm hứng cho ngôi biệt thự này cũng đến từ sự bình dị, nhẹ nhàng và duyên dáng nhưng cũng rất đặc biệt của bụi tre bên cạnh. Trong văn hóa Việt Nam, cây tre rất gần gũi, chúng mọc thành bụi với nhiều thân mọc thẳng đứng, đều đặn, đây chính là ý tưởng chủ đạo để i.House Architecture thiết kế ngôi biệt thự đơn lập này.Hình thức thanh lam trong kiến trúc hiện đại đã rất phổ biến, nhưng thanh lam trong công trình này mang hình tượng cây trúc và được văn phòng thiết kế thể hiện qua các chất liệu khác nhau như lam bê tông ở bồn cây, lam sắt tràn viền ở bồn cây, ban công, lam nhựa lõi thép trên mái hiên hay lam tre che nắng ngoài trời.Không chỉ dừng lại ở ngoại thất, hình ảnh những thanh tre còn được đưa vào nội thất thông qua cửa chính liền kề tủ giày, đến những mảng tường dọc 2 bên giếng trời và phòng ngủ. Những ô trần tạo không gian hay những mảng vật liệu lớn như gạch men ở tầng trệt, gỗ tự nhiên ở tầng trên, tất cả đều được sử dụng theo những cách khác nhau. Tất cả tạo nên một ngôn ngữ kiến trúc đồng nhất và độc đáo thông qua những vật liệu tưởng chừng như bình thường nhưng lại rất gần gũi, thân thuộc.Những ý tưởng thiết kế gần gũi với thiên nhiên, hài hòa với môi trường xung quanh là điều vô cùng quý giá. Cùng với sự hài hòa và thống nhất trong ngôn ngữ thiết kế cũng là quan điểm mà NTK theo đuổi khi thiết kế cho mỗi công trình.Xem đầy đủ hình ảnh công trình tại đây:Biên tập: KAXEM THÊM:
客服
消息
收藏
下载
最近

































