查看完整案例

收藏

下载

翻译
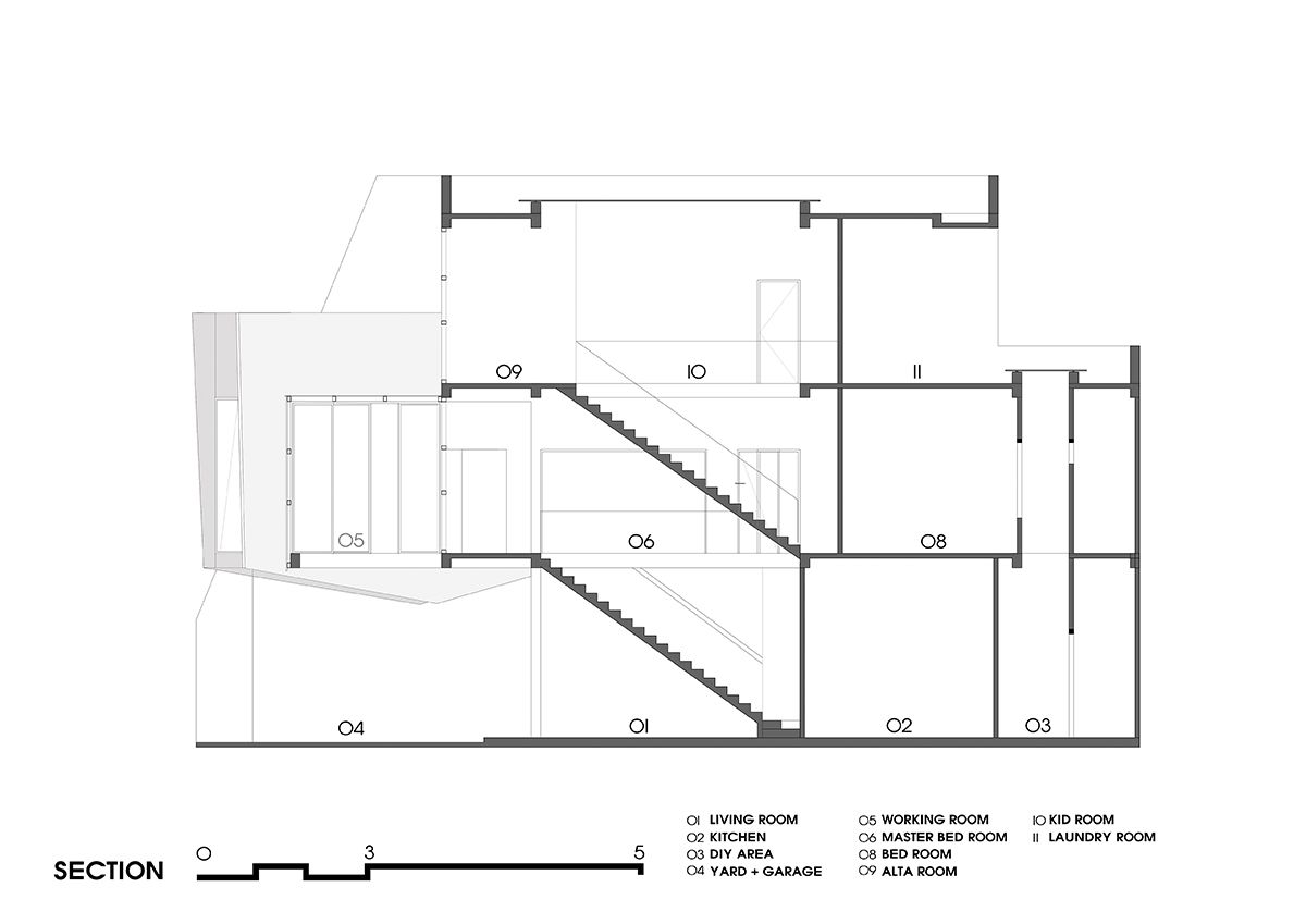
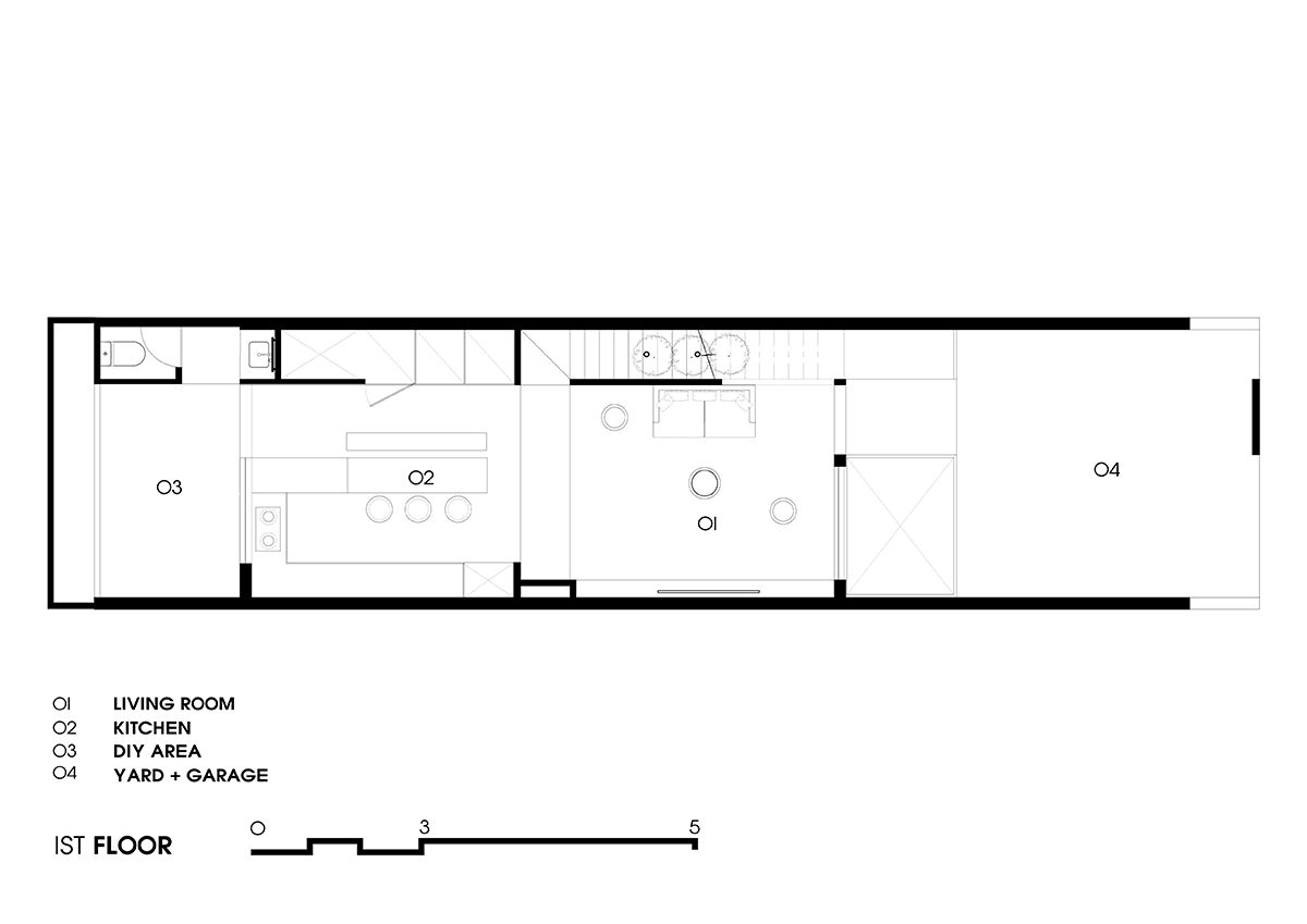
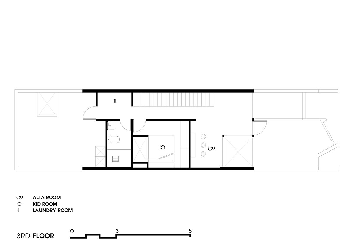
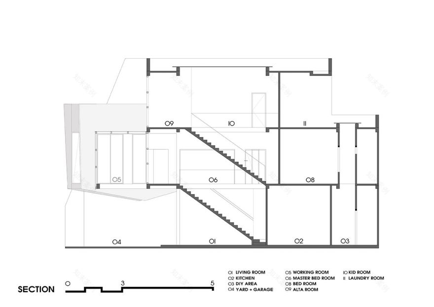
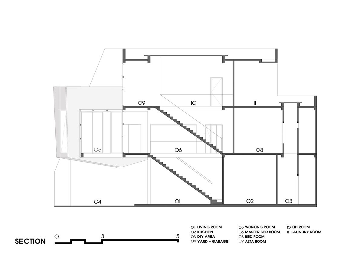
VJ House là câu chuyện về 1 anh chàng trẻ tuổi, hiện đại với lối sống trải nghiệm tích cực, không gian sống sẽ là nơi phản ánh con người, công việc và từng hobby anh ấy theo đuổi – mọi thứ sẽ được sắp đặt trong những nơi chốn vừa vặn nhưng vẫn lột tả được hết tinh thần mà chủ nhà muốn mang lại.Là căn nhà nằm trên con đường Trần Đăng, Đà Nẵng, VJ house được xây trên diện tích đất 100m2 – với 3 tầng lầu phục vụ cho một gia đình 3 thế hệ sinh sống tại đây. Ấn tượng ban đầu về VJ chắc chắn sẽ là những đường nét vát xéo mạnh mẽ thể hiện rõ cá tính của chủ nhà. Ý tưởng là 1 khối công năng cắt xiên được “treo lơ lửng” giữa mặt đứng căn nhà, nhấn mạnh hiệu ứng thị giác bằng vật liệu bê tông toàn khối tạo chất cảm khác biệt. Đây cũng là một điểm nhấn mạnh mẽ cho ngôi nhà và cũng là điểm dừng không thể rời mắt cho bất cứ vị khách nào ghé ngang qua đây.Bước vào căn nhà chúng ta có thể hoàn toàn cảm nhận được không gian đậm chất hiện đại, với độ hoàn thiện thi công nội thất cực cao. Xuyên suốt tầng 1 là khối khách bếp liên hoàn là trọng tâm của không gian. Trước khi bước vào nhà, sẽ có một hồ nước nhỏ tại lối vào, thứ nhất để giải quyết vấn đề đối lưu không khí, mang sự tươi mát vào nhà, thứ hai thì việc nuôi cá Koi cũng chính là một trong những hobby hàng đầu của anh chủ nhà. Hệ khách – bếp của căn nhà được sử dụng tông xám đen mang lại cảm giác hiện đại, các trang thiết bị nghe nhìn, thiết bị bếp đều được lựa chọn kỹ lưỡng với sự đầu tư rất cao để thỏa mãn niềm đam mê tiếp theo của chủ nhà đó là sự đam mê về đồ công nghệ hitech. Sự kết thúc không gian tầng 1 có lẽ sẽ là điểm nhấn nhỏ của căn nhà cũng là 1 studio nhỏ tràn ngập ánh sáng, nơi mà chủ nhà có thể tự tay thực hiện những công việc ưa thích hay trưng bày những món đồ sưu tầm của mình.Cầu thang được thiết kế kín đáo, tạo sự thông suốt trong không gian khách bếp, và chuyển 1 cách nhẹ nhàng lên tầng 2 – các không gian cá nhân của cả nhà. Một lần nữa, phong cách nội thất được thay đổi nhằm nhấn mạnh công năng cũng như tính cách của người sử dụng nhưng vẫn giữ được tổng thể hài hòa cho toàn bộ căn nhà. Ở đây, như đã nói từ phần trước là điểm nhấn của căn nhà với 1 khối bê tông mang chức năng của 1 studio làm việc, nơi mà chủ nhà sẽ dành phần lớn thời gian trong ngày ở đây cho công việc IT đặc thù của mình. Yêu cầu đặt ra là phải hiện đại, thông thoáng đầy đủ ánh sáng và tạo cảm hứng làm việc. Để giải quyết vấn đề này, KTS đã sử dụng những đường nét cắt chéo sáng tạo cùng vật liệu bê tông trần thô mộc để tạo điểm nhấn cho căn phòng, bên cạnh đó là sự liên kết mật thiết với giếng trời, hoàn toàn 1 bước có thể đi thẳng từ phòng làm việc ra hệ lưới mắt cáo tại đây để thư giãn cũng như tái tạo năng lượng làm việc.Các công năng khác của ngôi nhà cũng vừa vặn để 1 gia đình trẻ 4 người có thể tận hưởng 1 cuộc sống tiện nghi nhất, cùng với nhiều mặt được được tiếp xúc với ánh sáng và gió tự nhiên, căn nhà còn mang đến 1 môi trường sống lành mạnh và thân thiện.Mọi vấn đề của căn nhà với cốt lõi là tâm huyết mong muốn mang cá tính của gia chủ vào từng thiết kế đã được giải quyết như vậy tại VJ house.Xem đầy đủ hình ảnh công trình tại đây:Biên tập: KAXEM THÊM:
客服
消息
收藏
下载
最近









































































