查看完整案例

收藏

下载

翻译
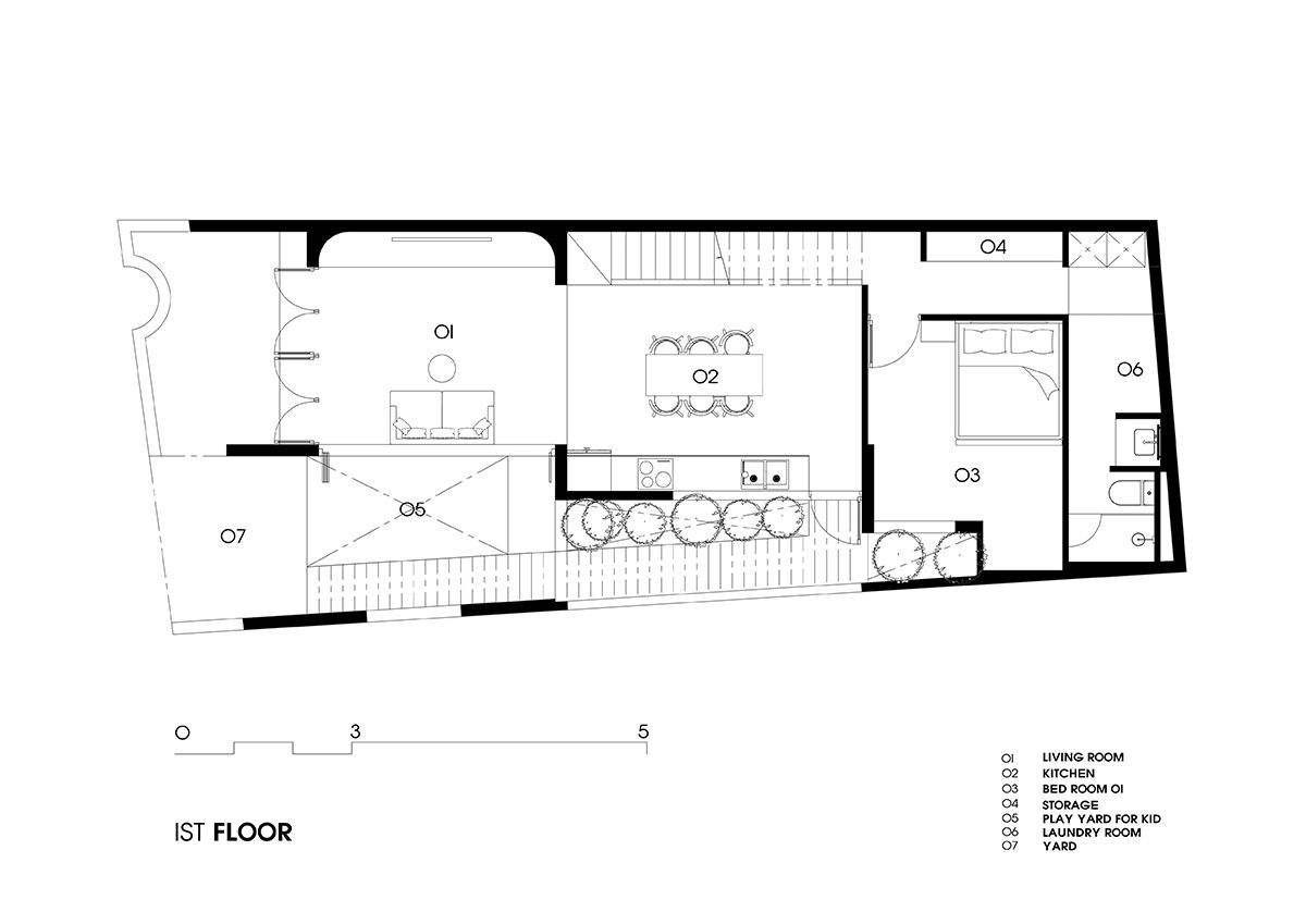
Phong House là ngôi nhà được xây dựng trên thửa đất đặc biệt, những tưởng nó sẽ là căn nhà phố căn bản chia lô đặc trưng của đô thị Việt Nam nhưng không phải vậy.Ngôi nhà là giải pháp cho 1 mảnh đất với mặt tiền khá lớn nhưng hẹp dần lại phía sau mà dân gian hay gọi rằng “đầu voi đuôi chuột”. Hơn 113m2 đất, KTS quyết định tận dụng hầu hết không gian để xây dựng 1 chuỗi công năng sống tiêu chuẩn cho 1 gia đình 3 thế hệ.Căn nhà 3 tầng được hình thành với 3 phòng ngủ, khách bếp, 1 phòng thờ, 1 phòng làm việc lớn cùng các công năng phụ trợ hoàn chỉnh một dây chuyền tối ưu hóa sự giao tiếp giữa các thế hệ trong gia đình. Ba mặt tiếp giáp nhà lân cận và mặt tiền sát đường, tất cả những gì KTS cần phải làm là tạo ra sự tươi sáng, thông thoáng, tận dụng ánh sáng thiên nhiên tối đa nhất có thể từ trước ra sau.Khi nhìn vào những hình ảnh bên dưới, chắc chắn mọi người sẽ không thể nhận ra được sự “đầu voi đuôi chuột” tồn tại trong mảnh đất này. Giải pháp mà KTS đề ra đó là sử dụng những đường cong, thống nhất từ mặt đứng đến cả mặt bằng nội thất cho căn nhà. Những hình bán nguyệt nhấn mạnh vào mặt đứng căn nhà, tạo hiệu ứng thị giác mạnh mẽ đối với người xem phá vỡ hoàn toàn cảm giác bóp hậu vốn có của địa thế. Bên cạnh đó, vật liệu cũng được chọn lọc 1 cách tinh giản, nhưng vẫn tạo được điểm nhấn cho tổng thể ngôi nhà, sao cho khi nhìn vào, chủ nhân có thể cảm nhận rõ nhất sự chơi đùa của ánh sáng, của bóng đổ, của không gian và cả của gió trong chính căn nhà của mình.Khu vực làm việc của vợ chồng có lẽ là không gian tâm đắc nhất của mọi người. Một mảng kính lớn ôm trọn giếng trời, tận dụng tối đa ánh sáng và thông gió của căn nhà sẽ là điều luôn mang lại cảm giác làm việc hiệu quả, tràn đầy năng lượng. Bài trí nội thất vẫn tone trắng và màu gỗ chủ đạo, chủ yếu vẫn là ánh sáng, gió tự nhiên và cây xanh – tất cả đều với chủ ý nhằm tạo ra một không gian hiện đại và tiện nghi, tươi mới và chân thực – ở ngôi nhà này thẩm mỹ trong sáng và công năng rõ ràng là đại diện cho cuộc sống của chủ nhân căn nhà.Thoáng mát, nhiều nắng, đầy gió và không giới hạn trong tầm nhìn, nhưng vẫn trở nên riêng tư, kín đáo và an toàn khi cần thiết. Đó là tất cả những gì mà KTS hướng đến cho PHONG HOUSE.Xem đầy đủ hình ảnh công trình tại đây:Biên tập: KAXEM THÊM:
客服
消息
收藏
下载
最近









































































