查看完整案例

收藏

下载

翻译
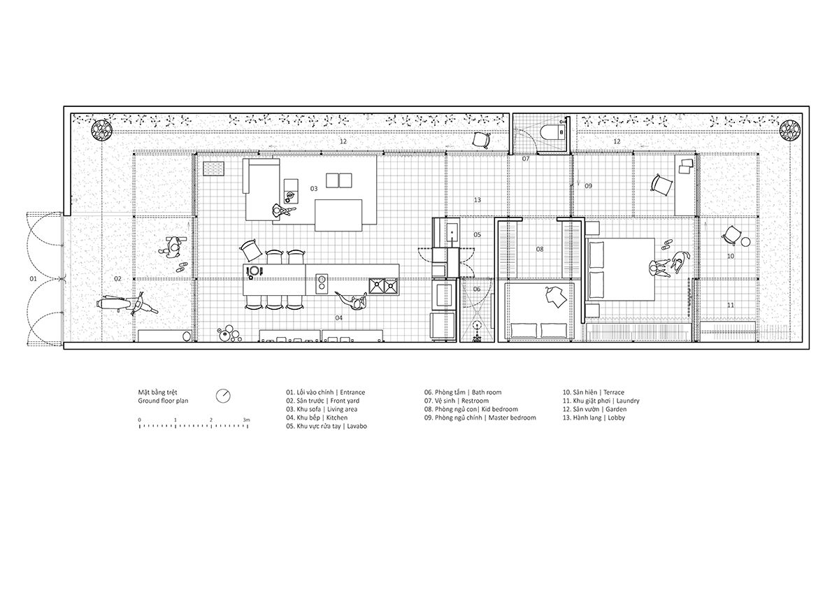
Nhìn từ bên ngoài, ngôi nhà giống như một công trình nhà ở mái tole phổ biến với hệ kết cấu bằng khung thép tiền chế. Bên trong là những giải pháp cho không gian sống hiện đại với những khung rỗng được module hóa để gia chủ có thể phát triển ngôi nhà khi cần thiết.Đây là một ngôi nhà phố nằm ở thành phố Phan Thiết thuộc tỉnh Bình Thuận, dành cho gia đình bốn thành viên. Ban đầu, văn phòng thiết kế tiếp cận công trình với nguồn ngân sách hạn chế đi cùng những nhu cầu căn bản cho cuộc sống của một gia đình trẻ. Chính những yếu tố đầu vào này đã đặt ra định hướng về việc tiếp cận kiến trúc một cách thực tế, không rườm rà và mang tính chủ động cao. Một điều thú vị nữa là công trình được thiết kế và thi công trong thời điểm cách ly mùa dịch Covid nên KTS phải đưa ra hướng thiết kế sao cho có thể truyền đạt và làm việc từ xa với đội ngũ thợ xây dựng địa phương.Văn phòng thiết kế gọi ngôi nhà này là một kiến trúc nhà ở thông thường đúng nghĩa. Và khi làm điều thông thường, ta sẽ làm nó một cách rất căn bản. Sự căn bản ở đây là về tổ chức ánh sáng tự nhiên, thông gió tự nhiên, và cấu trúc những khoảng trống công năng cần thiết cho nhu cầu sử dụng cũng như giao thông lưu chuyển bên trong, từ đó cấu trúc luôn cả hành vi và cuộc sống của người sử dụng. Chính vì sự cơ bản được tập trung ngay từ đầu nên nó được làm một cách tốt nhất có thể, từ đó công trình được hình thành nên hình thức bao che bên ngoài, cũng như hình thức mái, cột chống… một cách hết sức tự nhiên.Nhìn từ bên ngoài, nó trông như một ngôi nhà mái tole phổ biến ở mọi vùng quê với hệ kết cấu bằng khung thép tiền chế. Tuy nhiên ở bên trong nó hàm ý rằng hệ khung chịu lực của ngôi nhà đồng thời cũng phải là khung cửa lùa, khung treo vật dụng nội thất, khung mắc rèm, khung treo quần áo… Các KTS tìm cách giảm giá thành xây dựng bằng cách một yếu tố được tạo ra phải đóng được nhiều vai trò. Hơn nữa tất cả mọi vật liệu xây dựng đều phải được tìm thấy trong bán kính 1km dễ dàng. Bên cạnh đó, hình thức của thiết kế nội thất ngôi nhà ban đầu sẽ là những khung rỗng ba chiều được module hóa sao cho chủ nhân có thể phát triển thêm nhu cầu sử dụng về sau một cách dễ dàng hơn mà không làm phá đi tổng thể chung.Kết quả là văn phòng đã tạo nên bản thiết kế công trình nơi mà kết cấu chịu lực phản ánh trung thực hình thức kiến trúc, rồi đóng luôn vai trò của đồ nội thất. Không gian kiến trúc lúc này đã tạo tiền đề để người sử dụng tham gia vào định hình thẩm mỹ ở giai đoạn tiếp theo. Tùy thuộc vào nhu cầu sử dụng và phong cách sống mà thẩm mỹ chung của công trình sẽ được linh hoạt thay đổi tương ứng với hệ khung module mà không gây nên sự xung đột với thiết kế ban đầu của kiến trúc sư.Quá trình làm việc ở dự án này đã để lại cho các KTS một câu hỏi về việc chúng ta nên xây dựng như thế nào khi mà nguồn lực xung quanh ngày càng trở nên hữu hạn, những giá trị nào là bề ngoài và những giá trị nào là bất biến theo thời gian. Sự cơ bản đôi khi là điều tốt nhất mà chúng ta có thể tạo ra!Xem đầy đủ hình ảnh công trình tại đây:Biên tập: KAXEM THÊM:
客服
消息
收藏
下载
最近



















































