查看完整案例

收藏

下载

翻译
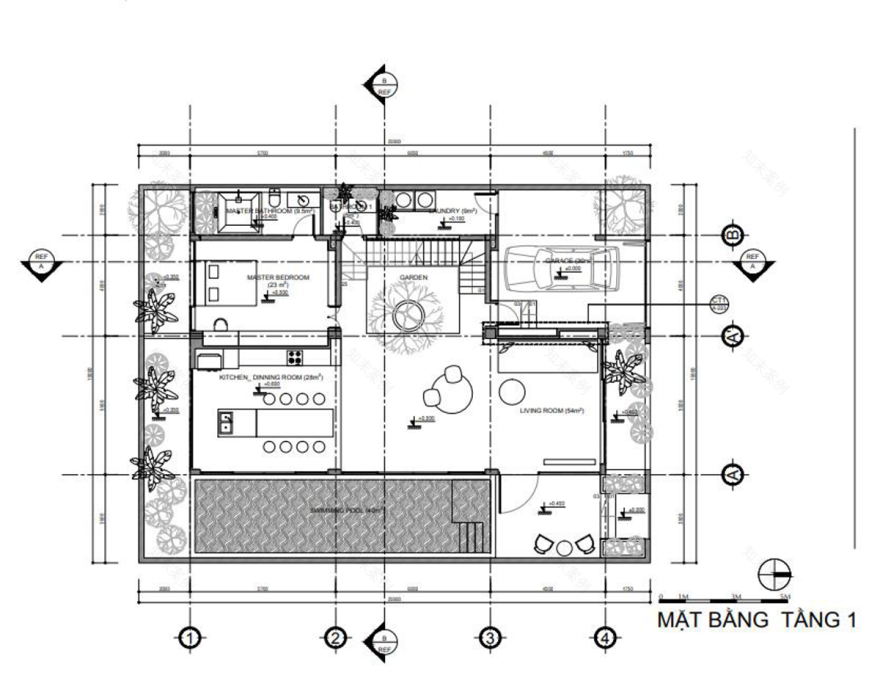
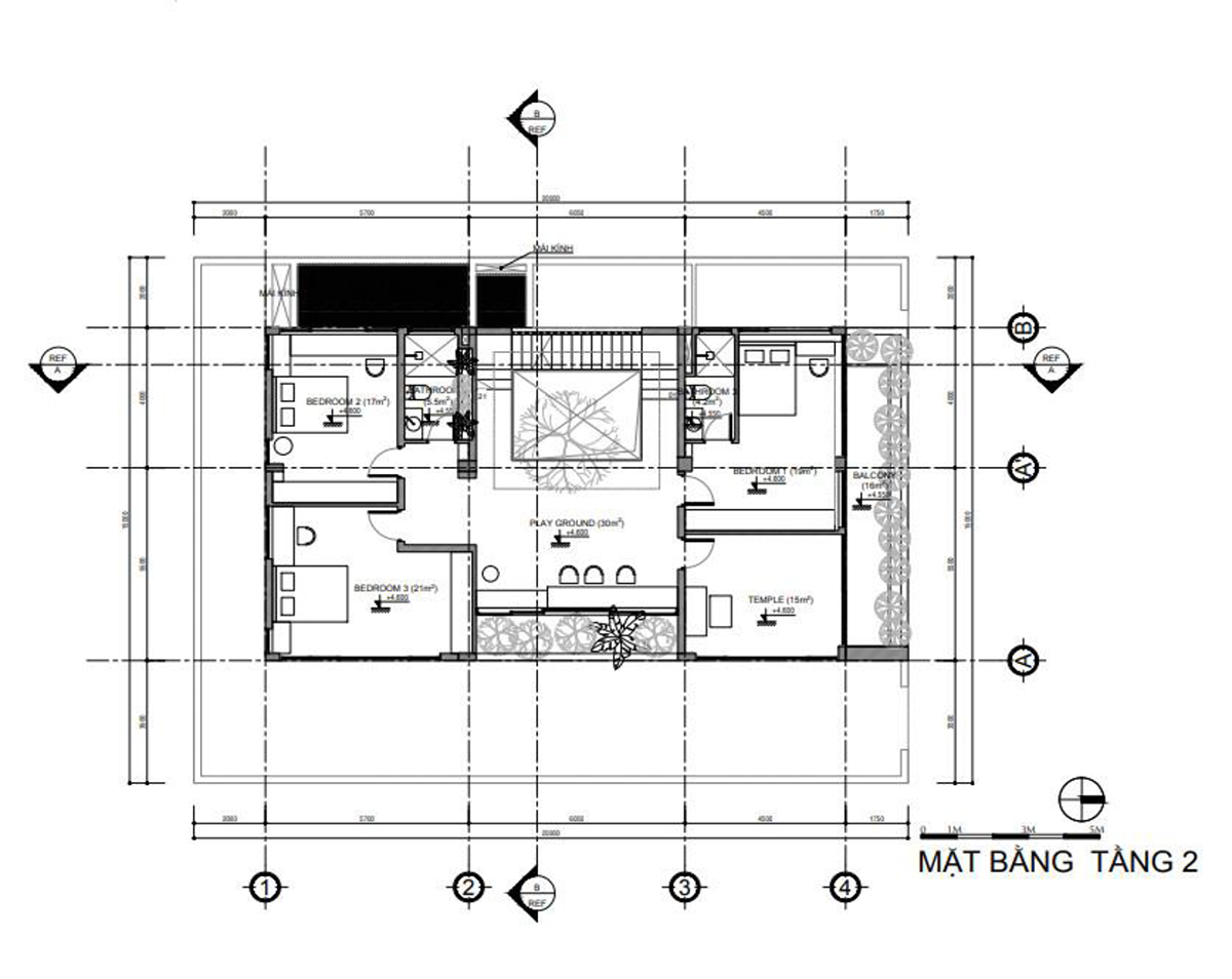
Bi House là ngôi nhà 3 tầng mang nhiều lớp ý nghĩa cả về công năng, thẩm mỹ lẫn không gian sống xanh của các thành viên trong gia đình. Ngôi nhà cũng là dự định ấp ủ từ lâu của gia chủ.Gia chủ của Bi House là chị Liên, đã chia sẻ với KTS rằng: “Mình muốn có một tổ ấm đúng nghĩa, nơi có đủ không gian cho gia đình sinh hoạt, ở nhà cũ mình luôn có cảm giác bị mất kết nối nghiêm trọng với từng thành viên trong gia đình. Hơn nữa không có không gian để trồng cây xanh và hưởng thụ nó khiến cho mình dễ bị stress trong cuộc sống và công việc, nhất là khi làm một công việc về số khô khan không có nhiều sự thoải mái. Mình khao khát muốn cuộc sống mình thật sự chất lượng hơn mỗi ngày”.Hiểu được tâm tư của gia chủ, nhóm KTS đã thiết kế một không gian nhà 3 tầng gây ấn tượng mạnh mẽ ngay từ mặt tiền. Mặt tiền của ngôi nhà được bố trí với rất nhiều hệ cây xanh khác nhau làm tăng tính kết nối với thiên nhiên, đánh tan đi sự ngột ngạt nơi phố thị đông đúc của xe cộ. Lớp cổng cao kết hợp vật liệu tường đá và cửa nhựa giả gỗ đảm bảo sự riêng tư cũng như giảm bụi cho ngôi nhà. Nhìn từ ngoài vào, ngôi nhà 3 tầng toát lên cảm giác mới lạ của thiết kế, không trùng lặp cũng không rập khuôn mang tới nét đặc trưng riêng.Tầng 1 của ngôi nhà gồm gara, phòng khách, phòng bếp, phòng ngủ master và khu vực giặt sấy. Phòng khách của Bi House sử dụng tông màu chính là xám, trắng và nâu của gỗ. Bên cạnh phòng khách có một tiểu cảnh vườn nhỏ tạo cảm giác xanh mát.Không gian ở khu vực sinh hoạt chính của tầng 1 là không gian kết nối 3 chiều. Bên cạnh phòng khách chính là phòng bếp và bàn ăn. Không gian như được mở rộng nhiều hơn khi loại bỏ vách ngăn cách giữa 2 khu vực này. Điểm độc đáo ở tầng 1 đó chính là bố trí giếng trời giữa nhà với cây xanh, tạo thành một “lõi xanh” cho các không gian chức năng.Xung quanh tầng 1 sử dụng hệ cửa kính hoàn toàn kết hợp với rèm che tạo độ thông thoáng cần thiết nhưng vẫn đảm bảo ánh nắng không chiếu trực tiếp vào ngôi nhà. Đứng từ bếp có thể quan sát được toàn bộ khu vực hồ bơi. Chính vì thế, các thành viên trong gia đình rất thích sinh hoạt chính tại khu vực này.Tầng 2 của ngôi nhà 3 tầng bao gồm phòng thờ, 3 phòng ngủ và khu vực sinh hoạt chung. Các phòng ngủ được áp dụng chung phong cách thiết kế hiện đại, tối ưu công năng, nội thất âm tường để tiết kiệm diện tích, đồng thời cũng tạo ra các khoảng mở nhằm kết nối con người và thiên nhiên. Phòng thờ được thiết kế vô cùng đơn giản nhưng vẫn đảm bảo sự trang nghiêm.Tầng thượng là một điểm nhấn đặc trưng nhất Bi House. Thay vì sử dụng các mái tôn, mái thái hay mái ngói như các căn nhà khác, ngôi nhà lại tận dụng cây xanh. Từng khu vực được phân cách có khoa học theo các loại cây khác nhau như: cây ăn quả, cây xanh tạo bóng mát, thảm hoa trang trí, … Đứng từ đây có thể nhìn ra được chiếc “view” đắt giá chính là công viên cạnh bờ sông. Đây là nơi thích hợp để cả gia đình ngồi thư giãn và hóng mát mỗi ngày.Xem đầy đủ hình ảnh trong bài tại đây:Biên tập: An NhiênXEM THÊM:
客服
消息
收藏
下载
最近






























































