查看完整案例

收藏

下载

翻译
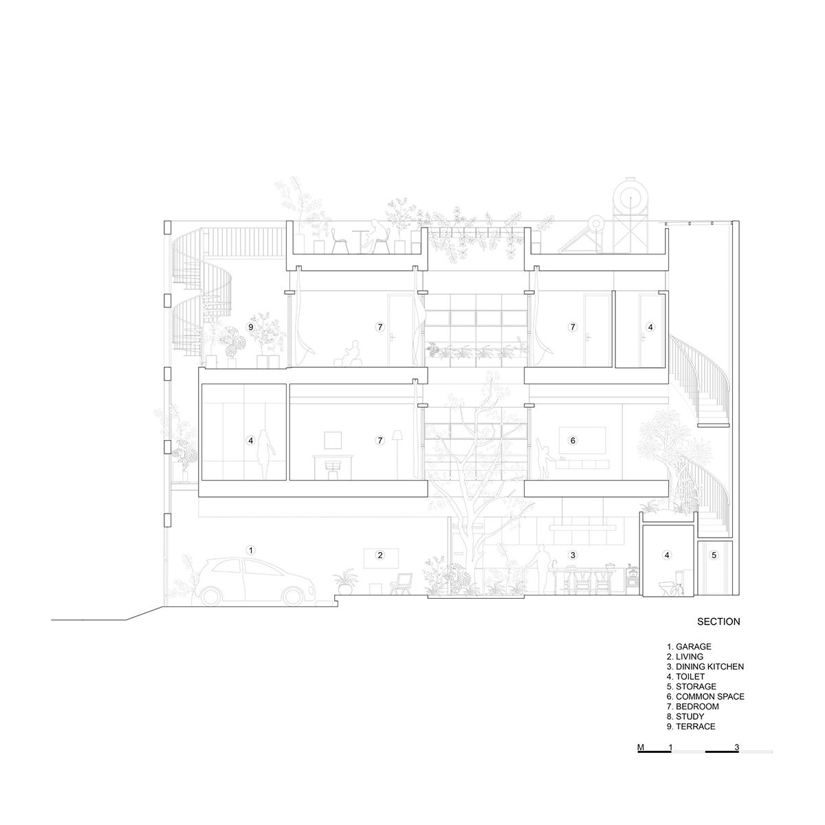
Nhìn từ mặt tiền hiện đại bên ngoài, ít ai có thể thấy không gian sống bên trong K House lại ấn tượng và lôi cuốn đến vậy. Thiết kế của K House giống như một hang động nguyên bản với cấu trúc vòm và chất liệu bê tông, được che mát bởi cây xanh, nắng, mưa và ánh sáng tự nhiên. Tại đây, gia chủ có thể tìm thấy sự bình yên và thoải mái giữa thành phố đông đúc.Ngoài việc lấy thông tin bước đầu từ chủ đầu tư để lên sườn khung ý tưởng sơ bộ thì trong quá trình đi sâu vào thiết kế, văn phòng vẫn giữ sự tương tác nhất định với chủ đầu tư để hiểu hơn về mong muốn cũng như sở thích, tính cách của các thành viên trong gia đình.Dự án nằm ở một khu dân cư thuộc trung tâm thành phố Thủ Đức, thách thức đặt ra cho thiết kế ở khu dân cư trong trung tâm thành phố đó chính là làm thế nào để đảm bảo được sự riêng tư mà vẫn có thể tạo được cảm giác kết nối với bên ngoài.Qua quá trình chia sẻ, nhóm thiết kế nắm bắt được nhu cầu của chủ đầu tư với không gian sống, mối quan tâm chính của họ là có một không gian riêng tư hoàn toàn với bên ngoài nhưng vẫn có thể tương tác được với các yếu tố tự nhiên, từ đó mong muốn hình thành các không gian thụ hưởng biệt lập bên trong, điều mà họ cho rằng là vấn đề chung của các nhà ống hiện nay đang bị hạn chế.Đối với dự án này, KTS đề xuất các không gian đặc rỗng xen kẽ nhau. Lõi giếng trời được cấy vào giữa công trình để lấy được ánh sáng, gió tự nhiên và cả mưa. Trong quá trình làm việc, văn phòng thường nghiên cứu về các đặc tính của không gian thông qua mô hình để tạo ra những không gian mang tính nguyên thủy nhất có thể. Với dự án này là cấu trúc vòm, điều này nhằm truyền tải bầu không khí tĩnh lặng và cô đọng. May mắn thay, chủ nhà có thể đồng cảm được điều kiến trúc sư muốn gửi gắm vào công trình.Bên cạnh các giải pháp về không gian đã đề cập, nhóm thiết kế cũng đã đề xuất vật liệu chính xuyên suốt là bê tông dựa trên tính cách và sở thích của chủ nhà. Việc sử dụng vật liệu kính bao quanh giếng trời góp phần làm tăng tính kết nối của người sử dụng bên trong đối với các yếu tố tự nhiên và ngược lại, đồng thời các thành viên trong gia đình có thể dễ dàng tương tác với nhau ở các không gian khác nhau.KTS đã mang đến những đề xuất mới mẻ, khác biệt và sáng tạo về một ngôi nhà an yên và kín đáo giữa thành phố nhộn nhịpXem đầy đủ hình ảnh công trình tại đây:Biên tập: Phương ThảoXEM THÊM:
客服
消息
收藏
下载
最近




















































