查看完整案例

收藏

下载

翻译
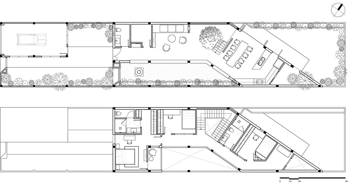
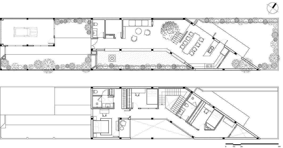
Từ ngôn ngữ thiết kế, ngôn ngữ không gian thể hiện qua hình ảnh thực tế, đến ngôn ngữ “chuyện bây giờ mới kể” của người cảm nhận công trình, ngôi nhà này gợi mở những giải pháp lạ mà quen từ các góc nhìn khác biệt, đáng suy ngẫm…Cách nay mấy tháng, mình có viết bài cho một cậu em kiến trúc sư về một ngôi nhà mà cậu thiết kế. Nhưng không may vào thời điểm đó, giặc Covid tấn công Sài Gòn tới tấp, công việc bị đình trệ, cả thành phố chìm sâu vào cuộc khủng hoảng chưa từng có tiền lệ… Thế rồi như bao nhiêu người khác, một thằng chẳng biết ất giáp gì về “súng đạn” như mình đã bị biến thành một chiến sĩ bất đắc dĩ để chiến đấu với giặc Covid trong một pháo đài kiên cố là 4 bức tường im ỉm, khô khốc, lâu lâu lại nghe văng vẳng tiếng còi hụ ở đâu đó thì chỉ biết cầu nguyện vì hiểu rằng một đồng đội của mình đã ngã xuống dưới tay quân giặc vô hình…Thế rồi “chiến tranh” đã tạm qua đi, hòa bình được lặp lại, mình lại “vác cuốc ra đồng” và bất chợt nhớ đến bài viết về căn nhà của cậu em kiến trúc sư hôm nọ… Mình liên lạc ngay với cậu và nhận được một đề nghị khá sốc rằng cậu muốn bài viết phải theo phong cách trào phúng! Mình tính nói khó quá bỏ qua nhưng nghĩ lại “life is too short” nên thích thì nhích thôi…Thế là mình phải viết một bài viết mới… So với bài viết cũ mà cậu ta chê là quá nghiêm túc thì mình chỉ giữ lại có mỗi cái tên bài, đó làNhà không đu “trend”vì thực tế là có 4 cái “trend” mà chủ nhà lẫn người thiết kế hổng biết vì lý do gì mà không chịu “đu”! Thứ nhất là cái “trend” xây cao tầng, làm nhiều phòng mặc dù không có nhu cầu sử dụng hết nhưng vẫn phải làm để chứng tỏ cho thiên hạ thấy nhà của đại gia là đây chứ đâu(!?) Thực tế là ngôi nhà này chỉ xây vỏn vẹn có 1 trệt 1 lầu… Ngạc nhiên chưa! Thứ hai là cái “trend” vi phạm mật độ xây dựng cho phép, lấn đất xây nhà để chứng tỏ mình là người có “quan hệ”… Thực tế là ngôi nhà được xây với mật độ xây dựng thấp dưới 50% và để dành hơn 50% đất còn lại cho cảnh quan sân vườn… Quá chịu chơi luôn chứ còn gì nữa! Thứ ba là cái “trend” mang rừng về nhà, bằng mọi giá phải nhồi nhét cây xanh vào trong nhà bất chấp việc bảo quản, chăm sóc cây có ảnh hưởng đến hệ sinh thái của căn nhà như thế nào… Thực tế là ngôi nhà có quy hoạch khu đất đàng hoàng để trồng cây xanh một cách chỉn chu chứ không bố trí cây xanh trong nhà như một đám rừng… Dzụ này lạ nha! Cuối cùng là cái “trend” trang trí theo phong cách tân cổ điển đồ hoặc nặng đô hơn nữa với rồng bay phượng múa đồ, hoa hòe hoa sói đồ, ngựa phi nước đại các loại để chứng tỏ một điều rằng “tiền nhiều để làm dzề?”… Thực tế là ngôi nhà được thiết kế với phong cách bình dị, khiêm tốn, nhẹ nhàng … Trời ơi! … Không tin nổi luôn á… Thế thì “tiền nhiều để làm dzề?”Viết đến đây mình chợt tâm tư… Nên chăng các bài viết về công trình tập trung kể những chuyện bên lề, những điều thú vị khi thực hiện công trình đó thì sẽ hấp dẫn độc giả hơn là đi làm thơ tả cảnh công trình đẹp “lồng lộn” thế này, long lanh cành đào, rực rỡ thế kia, điều mà độc giả đều đã nhìn thấy qua phần hình ảnh đi kèm… Vậy nên mình xin dừng bài viết ở đây và dành sự cảm nhận cho quý độc giả qua từng hình ảnh, ngóc ngách của công trình vì người phương Tây hay có câu “Let’s the picture talk” – hình ảnh sẽ nói lên tất cả. Còn người Việt Nam trước sau như một chỉ kiên định có mỗi câu: “Việt Nam dzô địch, không nói nhiều!”.Xem đầy đủ hình ảnh công trình tại đây:Bài: TPTPXEM THÊM:
客服
消息
收藏
下载
最近
































































