查看完整案例

收藏

下载

翻译
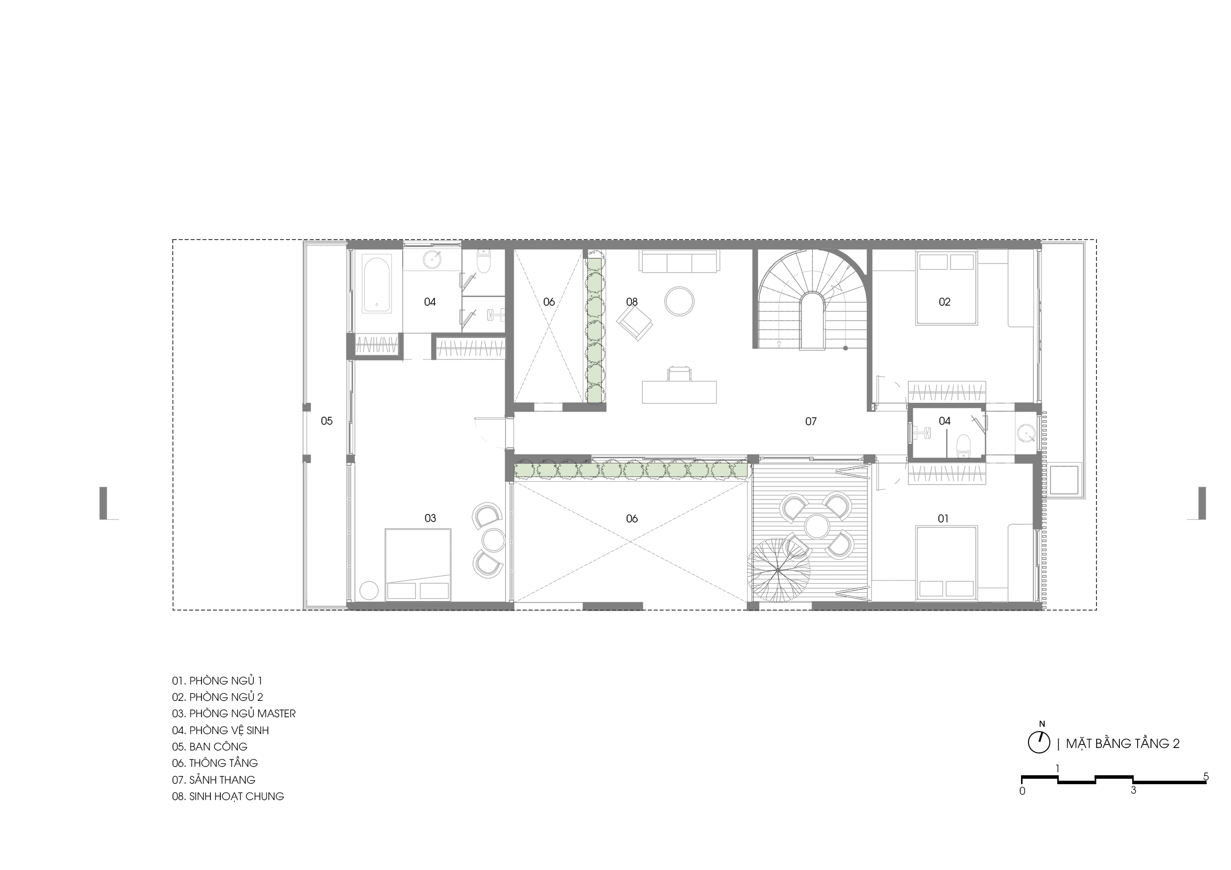
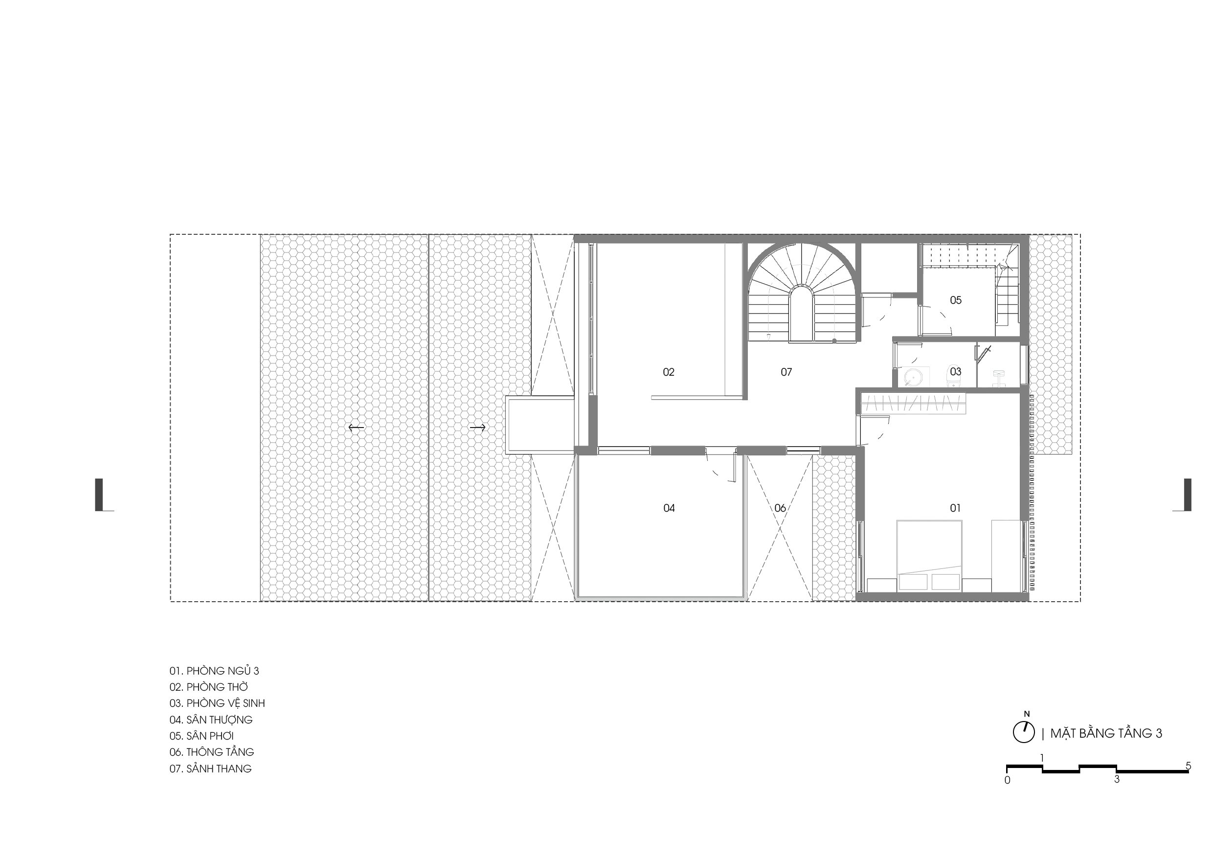
Không gian “Q Villa” là sự kết hợp hài hòa giữa các yếu tố: “ánh sáng – không gian – tâm trí – con người” mang đến những trải nghiệm bình yên và thư giãn cho gia chủ mỗi khi trở về nhà.Bằng một cái duyên, KTS gặp gia chủ – như một người đồng điệu tâm hồn với những tác phẩm của An Nam, ở chị ẩn chứa một vẻ đẹp tâm hồn của người phụ nữ Á Đông, nhẹ nhàng, kín đáo và trong tâm tưởng luôn muốn đem lại những điều tốt đẹp nhất cho những người thân yêu.Chị đã đặt chân đến rất nhiều nơi chốn trên hành trình cuộc đời, trải nghiệm nhiều lối kiến trúc khác nhau và sâu sắc cảm nhận mình hòa hợp với những thứ nhẹ nhàng, giản dị không hào nhoáng và bóng bẩy. Chị yêu thiên nhiên, yêu những thứ giản đơn mang hơi thở của ký ức xưa cũ và nhà sẽ là điểm dừng chân, một bến đỗ để tâm hồn mình tĩnh lặng và yêu thương. Chị mong muốn KTS của An Nam tạo nên một căn nhà mà ở đó vợ chồng chị có thể ngắm nhìn những đứa trẻ của mình lớn lên và hạnh phúc.Ngôi nhà tọa lạc tại khu biệt thự Euro Village 1 Đà Nẵng, Q Villa được xây dựng trên khu đất có diện tích 10x25m với hai mặt tiền trước và sau. Đây là ngôi nhà bình yên, nhẹ nhàng giữa những kiến trúc biệt thự hiện đại xung quanh.Thiết kế của ngôi nhà theo phong cách kiến trúc Á Đông đương đại, một sự kết hợp hoàn hảo giữa việc kế thừa vẻ đẹp truyền thống và phát huy những tinh hoa của văn hóa hiện đại. Bám sát tinh thần kiến trúc mang âm hưởng Á Đông cùng tinh thần Phật giáo và thiền định.KTS ưu tiên sử dụng những vật liệu tự nhiên truyền thống mang năng lượng chữa lành cùng những không gian đóng mở tinh tế đan xen cây xanh, vừa phù hợp với khí hậu nhiệt đới vừa mang lại cảm giác thoải mái và bình yên.Công năng sử dụng bao gồm: 1 phòng master, 3 phòng ngủ phụ, không gian thiền, phòng khách, bếp, phòng thờ, hồ bơi, sân vườn và các không gian sinh hoạt chung. Toàn bộ các không gian đều định hướng mở, các góc nhìn hướng ra sân vườn để kết nối cuộc sống với thiên nhiên.Tổng thể công trình là một bài toán chuyển tiếp về không gian: Bên ngoài, trung gian và bên trong. Lớp áo bao bọc phần không gian trung gian khiến cho các tác động của môi trường được kiểm soát, nó như một mái vòm lớn che chắn an toàn và cây xanh vẫn có thể phát triển tốt bên trong đó. Các khối công trình được sắp xếp chồng chéo để biến ánh sáng vào nhà trở thành ánh sáng gián tiếp, cũng như gió tự nhiên có lối vào và lối ra.Sự chuyển tiếp không gian nhiều chiều từ trong ra ngoài và từ trên xuống dưới, sự liên kết giữa không gian chung và riêng được đội ngũ kiến trúc sư của An Nam nhấn mạnh bằng hệ cửa gỗ lá sách. Điều này không chỉ có tác dụng phân chia riêng tư cho từng khu vực mà còn có tác dụng đối lưu không khí, không để cho không khí ở trạng thái tĩnh.Mặt nước cũng là một yếu tố quan trọng làm giảm nhiệt cho công trình, việc bố trí 2 vị trí mặt nước phía trước và giữa không gian giúp hình thành khối không khí mát và nó được gió đẩy tới các khu vực bên trongGiải pháp thông tầng được áp dụng thông minh để khai thác ánh sáng đến từng không gian sử dụng, đồng thời tăng cường việc đối lưu gió theo trục đứng từ tầng 1 lên tầng 2 và tầng 3. Phần mái được lấy ý tưởng từ các nếp mái truyền thống, việc bố trí mái ngoài tác dụng che nắng từ hướng Tây còn tô điểm thêm cho nét hoài cổ của ngôi nhà.Nội thất của căn nhà được thiết kế theo phong cách indochine đan xen với vật dụng trang trí thô mộc như gỗ tự nhiên, gạch bông,.. mang đến sự thanh lịch, sang trọng nhưng vẫn nhã nhặn, gần gũi và ấm cúng. Q Villa là sự kết hợp giữa: “ánh sáng – không gian – tâm trí – con người” mang đến những trải nghiệm bình yên và thư giãn cho gia chủ mỗi khi trở về nhà.Sau đó, KTS đến thăm nơi mà mình đã chăm chút, nắn nót thành hình, lắng nghe những câu chuyện nhỏ về cách chị chăm từng gốc cây, yêu từng góc nhỏ của ngôi nhà. Căn nhà ấy sẽ trở thành mái ấm an yên, trở thành tri kỷ vì KTS biết nó đã chạm được đến đâu đó một góc tâm hồn của chị.Kiến trúc sư của An Nam cảm thấy trọn vẹn với điều đó.Xem thêm video về công trình tại đây:Xem đầy đủ hình ảnh công trình tại đây:Biên tập: Phương ThảoXEM THÊM:
客服
消息
收藏
下载
最近



























































