查看完整案例

收藏

下载

翻译
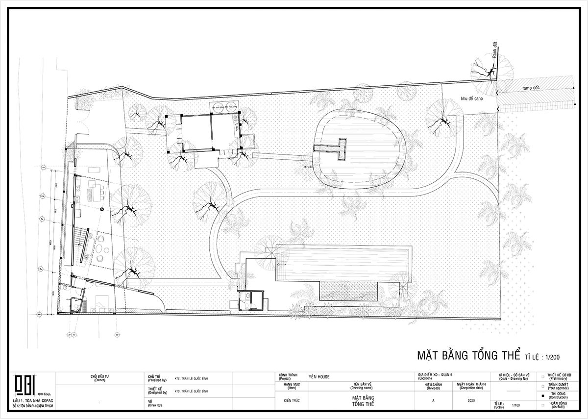
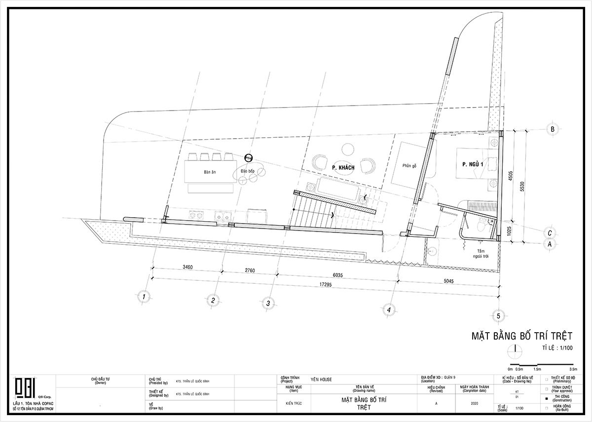
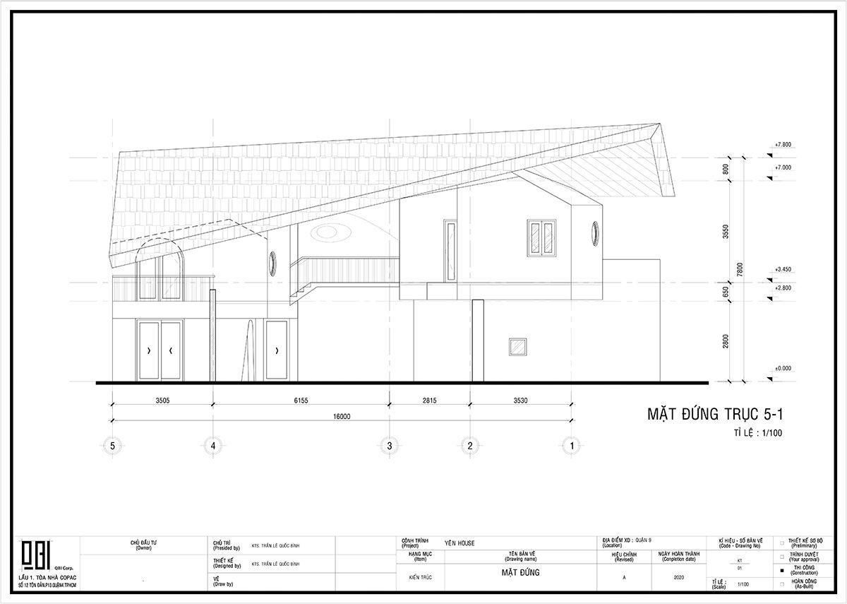
Điểm nhấn có lẽ là những “con mắt” trên mũi thuyền, nó được biến thành cửa, lối vào, thành những khoảng rỗng ngang dọc – to nhỏ hiện diện trong khắp không gian nhà…Anh là người Sài Gòn, Chị đến từ Buôn Ma Thuột, định cư TP.HCM đã lâu. Cuộn vào vòng xoáy mưu sinh hối hả nên những lần về quê mẹ trở nên thưa thớt dần, điều này khiến chị đôi lúc chạnh lòng. Ước mơ về một ngôi nhà nhỏ, lọt thỏm giữa khu vườn với đủ loại cây ăn trái như ở quê mẹ, đeo đuổi theo chị cũng đã lâu. Dịch Covid 19 với vài đợt cách ly dài dằng dặc trong căn hộ bít bùng, càng làm chị nung nấu thực hiện ước mơ.Men theo con đường nhỏ xanh rợp bóng cây vừa đủ một làn xe chạy, với hai bên là rạch dừa nước đan xen những hàng hoa dâm bụt đỏ, ngôi nhà mái lá khiêm tốn bất ngờ hiện ra. Tọa lạc tại phường Long Trường, Q.9 với diện tích khoảng 1.500m2, hướng ra con sông Đồng Nai mênh mông, ngôi nhà được hình thành để thỏa một ước mơ và cũng là nơi để cả gia đình trở về – trú ẩn.Với cấu trúc nhà trong nhà, tầng trệt gồm một phòng ngủ, phòng khách bếp và ăn. Phía trên là hai khối nhà độc lập được treo lơ lửng, lấy cảm hứng từ hình ảnh những ngôi nhà sàn ven sông. Tất cả không gian ấy đều được mở toang, hòa vào mảng xanh – mây trời, xoá nhoà ranh giới trong ngoài – trên dưới. Các thành viên trong gia đình như luôn thấy được bên nhau, tương tác vì khoảng mở của tầm nhìn mọi góc.Những đường cắt xiên mạnh – dứt khoát, nghệ thuật “gấp giấy” được sử dụng như một thủ pháp. Không chỉ vì ranh đất được phép xây hẹp xéo mà còn vì ý đồ biến cả ngôi nhà thành một cánh diều – con thuyền bay lên. Khoảng khoét tròn trên mái dành cho phía cầu thang là một “mặt trời nhỏ”, là đường dẫn đem ánh sáng lên xuống vào sâu không gian nhà, theo từng thời khắc trong ngày.Phần sân vườn rộng với đầy đủ chức năng, khu nuôi cá, chăn nuôi, sinh hoạt ngoài trời phù hợp với nhiều mục đích sử dụng. Hồ bơi được thiết kế vô cực phóng tầm mắt về phía dòng sông. Phần nội thất mang phong cách thô mộc, gần gũi với gỗ trần, cói, mây tre những vật liệu được gợi lên từ những con thuyền trên sông. Điểm nhấn có lẽ là những “con mắt” trên mũi thuyền, nó được biến thành cửa, lối vào, thành những khoảng rỗng ngang dọc – to nhỏ hiện diện trong khắp không gian nhà.Chúng tôi ngồi với nhau trong một buổi chiều, khi nắng vẫn còn trải rộng khắp khoảng hiên, lắng nghe anh chị chia sẻ về những trải nghiệm khi mới chuyển về nơi này. Về những buổi sáng cả nhà bị đánh thức bởi những vệt nắng xuyên vào tận phòng, bởi tiếng chim hót rộn rã cả góc vườn. Về tiếng gió như tiếng hát vọng từ phía sông, rồi tràn vào mọi ngóc ngách ngôi nhà. Về những buổi chiều lũ trẻ nô đùa dưới tán cây, làm dịu đi những lo toan thường nhật.Anh kể về những buổi chiều sương giăng nối bầu trời và dòng sông thành một màn tím thẫm, làm nhòe cả những ánh đèn lập lòe phía bên kia sông. Lúc đó anh hay nhặt nhạnh gỗ vụn, lá khô trong vườn tạo thành một đốm lửa. Bên ánh lửa, anh và vài người bạn đã tâm tình cùng nhau về cách họ đi qua một năm sóng gió, niềm tin về một năm mới tràn ngập sự đổi thay và tươi sáng. Bên ánh lửa, bên mái nhà bình yên của anh…Xem đầy đủ hình ảnh trong bài tại đây:Bài viết: KTS Nguyễn Dương Minh NhậtXEM THÊM:
客服
消息
收藏
下载
最近















































