查看完整案例

收藏

下载

翻译
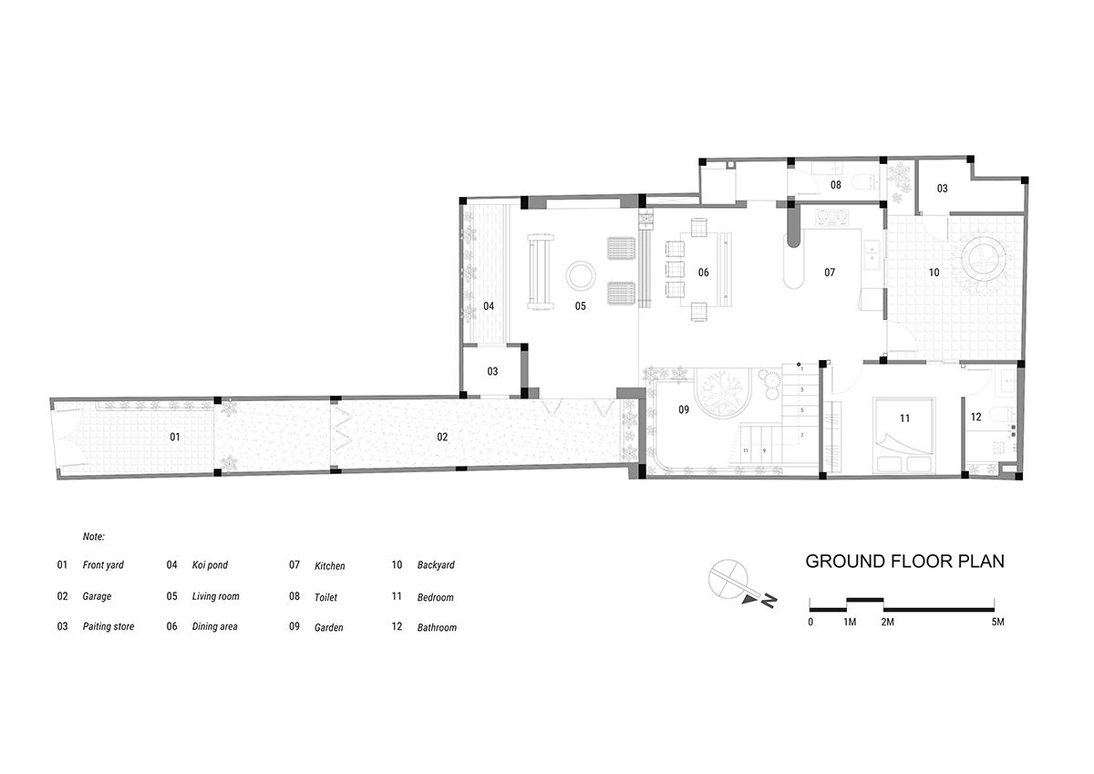
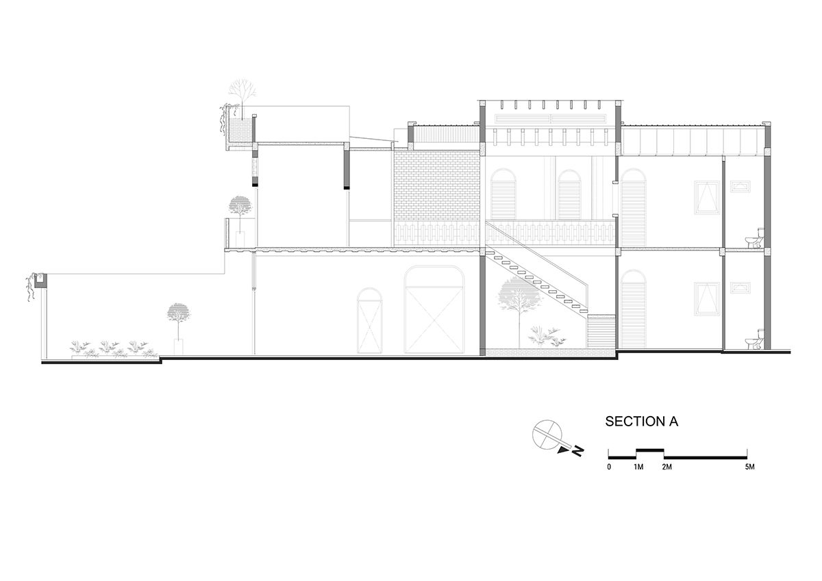
Ngôi nhà có mặt tiền 2m này nằm trên một con phố tấp nập ở thành phố Phan Thiết. Sau hơn 33 năm sử dụng, 7 người con đã quyết định xây dựng ngôi nhà mới. Đó sẽ là nơi ba mẹ an hưởng tuổi già và tụ họp của đại gia đình những dịp Lễ Tết.Với mong muốn giữ được hình ảnh ngôi nhà cũ thân thuộc và không gian thông thoáng, nhiều cây xanh, bảy người con đã chung tay xây dựng lại ngôi nhà sau hơn 33 năm sử dụng. Công trình ưu tiên các không gian cho sở thích của ba mẹ là trồng cây và nuôi cá, cùng không gian chung khi đại gia đình tụ họp những dịp Lễ Tết.Ngôi nhà chỉ có mặt tiền 2m. Vì vậy để giảm bớt cảm giác ngắn và hẹp nhóm thiết kế đã cân nhắc rất kỹ lưỡng. Giải pháp đưa ra là đúc bê tông nguyên khối theo từng sóng tạo nên sự khác biệt và độc đáo cho mặt tiền.Ngôi nhà mang phong cách Tropical pha chút hiện đại với vật liệu chủ đạo là bê tông trần, gạch thô, gỗ tự nhiên kết hợp với các mảng xanh. Phong cách này mang đến cho căn nhà có không gian sống tươi mới, cảm giác gần gũi thiên nhiên, thoải mái và phóng khoáng.Công trình đặc biệt ở chỗ nội thất không hề mua mới, một phần tự đóng, một phần sử dụng lại vật liệu nhà cũ. Với tiêu chí lưu lại một phần ký ức, việc tái sử dụng vật liệu của ngôi nhà được tính toán rất chi tiết, tỷ mỹ. Ví dụ như những viên gạch tốt nhất được lựa chọn từ bức tường gạch cũ được làm phần mái vòm của khu vực bàn thờ. Những thanh đòn tay gỗ tiếp tục được đóng lên trần, có công dụng trang trí hay những khung cửa, cầu thang gỗ được “tái sinh” cho vài không gian khác. Những vật dụng đã gắn bó với gia đình từ lâu được vệ sinh, sơn phết lại cho mới. Còn những vật dụng khác như ghế sofa, băng ghế ăn, cửa phòng,… đều được gia đình tự đóng hoàn toàn.Sân vườn nhiệt đới được thiết kế có điểm nhấn độc đáo ở cảnh quan hồ nước tạo sự kết nối hài hòa, gần gũi giữa con người với thiên nhiên. Nhờ khoảng giếng trời, sân vườn mini và hồ cá bao quanh khu vực phòng khách và bếp, kết hợp với sân vườn nhỏ sau nhà, trồng những loại cây có khả năng thanh lọc không khí hiệu quả giúp trong nhà luôn có khí tươi mát, trong lành giúp xua tan đi căng thẳng, mệt mỏi trong cuộc sống.Sàn bê tông mài, trần thô, bức tường gạch cũ,… được sử dụng ở tầng trệt tạo tính thẩm mỹ cho công trình, cũng khiến không gian trở nên cá tính hơn. Các kết cấu chuyên dụng như sàn không dầm, cột dày 100mm cũng được tính toán khoa học để tăng không gian sử dụng cho ngôi nhà.Hành lang dẫn vào trong nhà được chọn để treo bộ sưu tập tranh do người Bố của gia đình vẽ hơn 40 năm. Để tăng không gian và tính nghệ thuật cho khu vực này, nhà thiết kế đã làm trần bê tông khác hẳn bình thường: Sàn được tăng độ dày để giấu dầm, đồng thời tạo những đường cong lồi lõm dọc theo trần bê tông rất mạnh mẽ.Ánh sáng được đưa vào nhà thông qua hai giếng trời, một ở cầu thang, một ở hồ cá. Hai giếng trời giúp cải thiện lưu thông không khí, tăng ánh sáng tự nhiên. Dưới mỗi giếng trời đều được bố trí cây xanh, kết hợp hồ nước góp phần điều hòa tâm trạng người ở.Căn nhà nhận gió biển từ phía mặt tiền nhà vào buổi sáng, buổi chiều nhận gió sông từ sân sau vào nhờ hệ lam khu bếp. Khí nóng sẽ được thoát qua ba hướng gồm hai giếng trời và hệ lam ở sân sau, thay vì một hướng như những nhà phố thông thường. Các thanh lam còn có tác dụng chỉ cho ánh sáng gián tiếp tiếp cận mọi không gian, dịu dàng lan tỏa đến từng góc phòng.Bức tường gạch đỏ xếp so le nhau vừa tạo điểm nhấn vừa giúp thông gió và ánh sáng cho căn nhà. Bức tường được xây dựng bằng gạch đinh (phủ lớp bảo vệ trong suốt chống rêu mốc) được tính toán đảm bảo chịu lực, đón gió tốt và hạn chế tầm nhìn từ bên ngoài. Thông thường nếu xây bức tường kín sẽ vô tình biến gió mát từ biển thổi vào thành gió lùa, có hại cho sức khỏe người lớn tuổi. Còn khi xây nửa kín, nửa hở giống thiết kế sẽ làm cho ngôi nhà đối lưu tốt, hưởng được toàn bộ gió mát.Ngôi nhà được thiết kế dạng không gian mở. Khoảng sinh hoạt chung giữa các tầng cũng là điểm gia tăng sự kết nối giữa các thế hệ trong gia đình. Kiểu dáng vòm & cong được sử dụng ở nhiều vị trí như không gian thờ phụng, cửa ra vào, bức tường chuyển tiếp giữa các khu vực,…tạo nên vẻ đẹp vừa cổ điển vừa hiện đại.Xem đầy đủ hình ảnh công trình tại đây:Biên tập: KAXEM THÊM:
客服
消息
收藏
下载
最近









































