查看完整案例


收藏

下载
「世界是喧鬧的,我們現在無法逃到深山裏去,唯一的辦法是鬧中取靜」——汪曾祺
該項目位於福建省福清市觀音埔·龍江水文化公園南側,東臨福百路,南靠創業大道,西側為福政路,北接天寶路,緊鄰龍江文化公園,石竹山,玉融山公園等,區域自然環境優越、周邊交通便捷,文化氛圍濃厚。
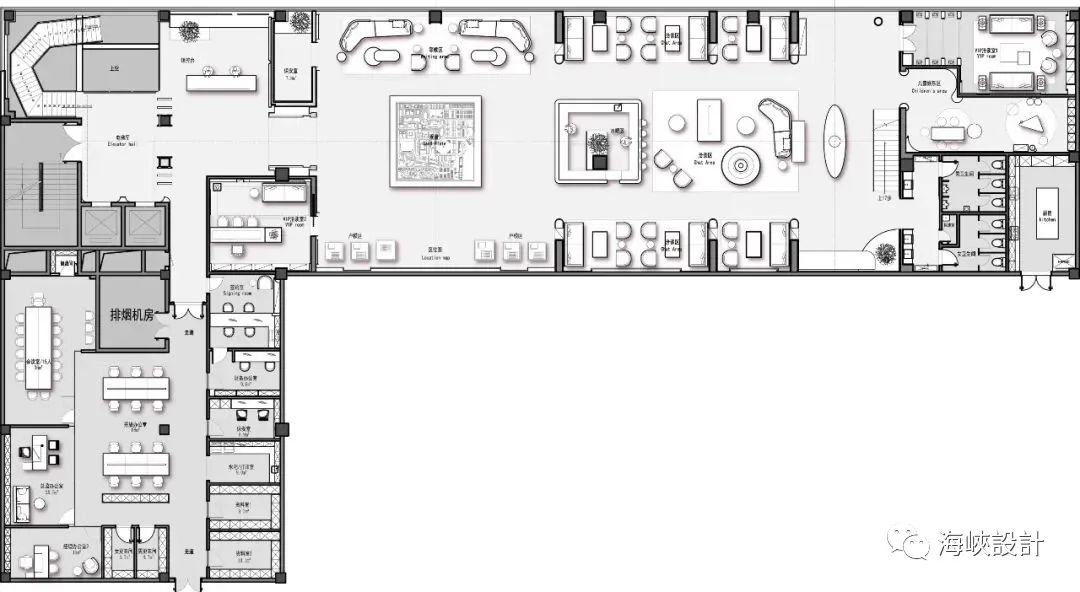
項目概況
▽
臨水而居 · 澤水而憩 · 水濱結廬
「城有水則秀,居有水則靈」,古往今来的名人雅士,对水,都有着偏执的喜爱,「上善若水,水善万物而不争」,人们将水的清澈透明与人的养性联系在一起,成了传统文化中最绝妙的一曲,无色无形,川流不息。
在居住的美学中,水景也被赋予着极高的精神内涵,与自然水滨为邻,结庐云水间,都是人们理想的生活写照。
濱水地區是一個城市非常珍貴的資源,也是城市發展富有挑戰性的一個機會,它是人們逃離擁擠的、壓力鍋式的城市生活的機會,也是人們在城市生活中呼吸清新空氣的疆界的機會。——查爾斯·摩爾
空間結構
▽
不同的層高會給與人不同的視覺感受,行走的同時調整空間的尺度關系,將能夠影響人的感官變化。
▽
1F 迎賓廳
起 / 登梯望極
點線面的幾何變化與材質之間的融合,錯落有致的水晶吊燈,打造空間層次結構,拾級而上,逐漸升高的視覺效果,仿佛置身藝術品中,浪漫奢華,典雅大氣。
蜿蜒向上的樓梯,聯結層層禮序,引導著賓客的行走動線。
休閑等候區
2F
承轉 / 移步異景
通高而高聳的藝術過廳激活乏味的空間分隔,中軸對稱的美學,呈現濃厚書卷氣,精簡的裝飾弱化了傳統元素的厚重感,體現古典與現代藝術的和諧交融,構築平衡、穩定的視覺效果,釋放出穩重而端莊的感覺。
合 / 星河律動
散狀燈光如星光匯聚於沙盤之上。
空間沈澱與輕盈,亦實亦虛。
聚/鏡花水月
開放的洽談區,融入水元素,水滴落下,蕩漾開來,鏡面的方式呈現水中倒影,隨光影變幻,波光粼粼,靈活而不可捉摸的空靈意境。
VIP 室
3F 三樓宴會廳
禮/ 燦若繁星
「天圓地方」的形式美和意境美一直貫穿於中式建築的立意布局中,以圓向中心聚攏構築意境,產生視覺焦點,意歡迎五湖四海來的賓朋,莊重而溫馨。
品茗區
項目名稱:港融·江山壹號營銷中心
項目地址:福建·福清
設計時間:2022.7
完工時間:2023.1
設計公司:GDD 廣度設計
作品審定:劉青
設計主創:陳浩、王孫傑
參與設計:楊旭楓、石瀟溢
軟裝設計:曼·生活美學
設計主創:王婷
空間攝影:施凱
GDD 廣度設計
陳浩
王孫傑
曼·生活美學
軟裝設計
王婷
END
丨海峽飾界丨
設計藝術跨界
海峽設計∣一個有逼格的公眾號
手機:17326621923
任何想法、咨詢、供稿都可與我聯系
長按,識別二維碼,加關註
免責聲明:
1、以上圖片及資料內容來源於網絡,由我方整理,版權歸原作者及其公司所有;
2、本資料僅供學習研究之用,不得用作於商業用途,若侵犯到您的權益,請與我們聯系刪除;
3、本文章版權歸本公眾號所有,未經同意不得隨意轉載 ,若惡意侵權將追究其法律責任。
客服
消息
收藏
下载
最近




















































