查看完整案例

收藏

下载
JIUDING
奶油法式风
案例地址
Address:杭州.采荷
项目类型
Interior type:旧房翻新
设 计
Designer:王楠、黄质萍
面 积
The measure:254 方
风 格
Decoration style:奶油法式风
造 价
Quoted price:点击了解
设计构思
DESIGN CONCEPT
家是一切的开始,也是我们最终的归宿。
Home is the beginning of everything and our ultimate destination.
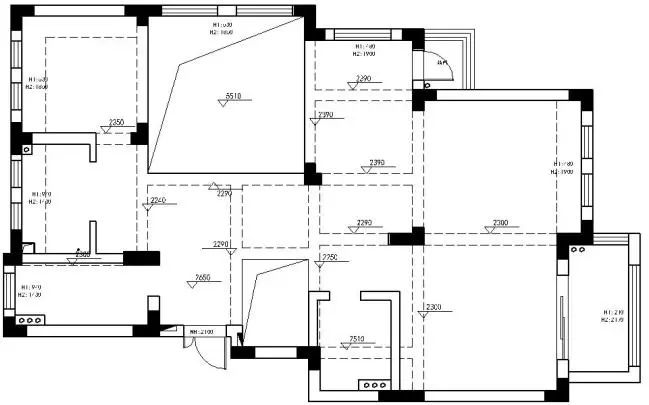
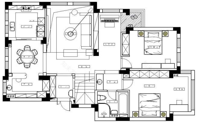
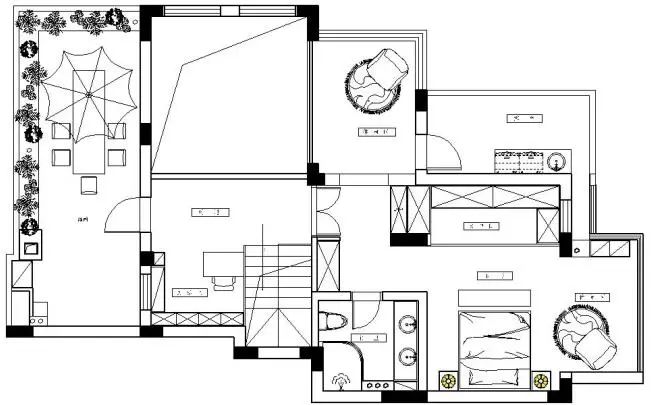
# 平面布置方案 #
▲ 一楼改造
FIRST FLOOR
▲ 二楼改造
SECOND FLOOR
1
玄关
ENTRANCE GATE
▼ 原户型的玄关采光差,收纳少。设计师在靠楼梯这面砌了半面玻璃砖,一半镂空连接到楼梯做的一个透景设计,使采光更好,同时增加了收纳。打造了一个过目不忘的玄关空间。
The entrance of the original unit has poor lighting and limited storage. The designer built half of the glass bricks on the side of the staircase, and half of them were hollowed out and connected to the staircase to create a transparent design, which improved lighting and increased storage. Created a memorable entrance space.
2
客厅
LIVING ROOM
▼ 客厅通刷奶白色的乳胶漆,低饱和度的家具,呈现出被细腻的奶油包裹着的氛围感。搭配上法式特有的优雅线条,使整个空间散发出浪漫的情调。挑空的设计拉高视觉比例,雕花的壁板、精致的吊灯、柔软的窗帘不仅让空间更具法式韵味,也让人感受到浓郁的生活气息。
客厅与钢琴区域设计了一个小吧台连接,弱化了承重柱,空间上更加灵活通透敞亮还增加了收纳。
The living room is painted with milky white latex paint and low saturation furniture, presenting a sense of atmosphere wrapped in delicate cream. Paired with elegant French lines, the entire space exudes a romantic atmosphere. The hollow design elevates the visual proportion, with carved wall panels, exquisite chandeliers, and soft curtains not only adding a French charm to the space, but also giving people a strong sense of life.
A small bar has been designed to connect the living room and piano area, weakening the load-bearing columns, making the space more flexible, transparent, and bright, and increasing storage.
3
餐厅
DINING ROOM
▼ 餐厅依旧延续主体的奶油色调,选用圆形吊顶,流畅的线条更能凸显法式的优雅,同时也增加了餐厅的层次感,营造出视觉上的错落。简约式大理石餐桌搭配上麦穗状的水晶吊顶,光影斑驳,打造出静谧的浪漫美感。
餐厅后侧的壁龛设计,增加了更多的储物空间,可以摆放生活用品以及装饰品等,满足日常收纳的同时也提升了整个空间的优雅气质。
The restaurant features a brown dining table, paired with a creamy white cabinet and background wall, achieving a unified overall color scheme. In order to add vitality, we added a fresh green touch to the space. At the same time, the restaurant also has spacious french window, which not only ensures sufficient light inside, but also enables you to enjoy the beautiful scenery outside the window when dining, creating a comfortable and pleasant dining environment.
▼ 餐厅还打造了一个吧台空间,弧形岩板和立体钢琴线结合,凸显法式的优雅贵气。吧台采用了双面使用的设计,提供了充足的存储空间,酒杯、酒瓶、餐具等都能找到属于它们的家。
The restaurant also created a bar space that combines curved rock slabs and three-dimensional piano lines, highlighting the elegance and luxury of French style.
The bar counter adopts a double-sided design, providing ample storage space, and can find their own home for wine glasses, bottles, tableware, etc.
4 厨房
KITCHEN
▼原户型厨房空间较小,导致就餐区域显得拥挤。为了解决这个问题,设计师拆除进门处狭长的卫生间,将其融入厨房空间,从而扩大厨房的面积。同时,设计师将原本厨房和餐厅的位置互换,做了一个回游动线中西厨设计,使得原先拥挤的空间得到了优化,为用户提供了更舒适、实用的厨房环境,也拥有了更多的收纳空间。
The original kitchen space was relatively small, resulting in a crowded dining area. To solve this problem, the designer dismantled the narrow bathroom at the entrance and incorporated it into the kitchen space, thereby expanding the kitchen area. At the same time, the designer also swapped the original positions of the kitchen and restaurant, creating a mobile Chinese and Western kitchen design, optimizing the previously crowded space and providing users with a more comfortable and practical kitchen environment. It also has more storage space.
5
楼梯
BEDROOM
▼ 楼梯采用原木色地板,隐蔽的线性灯光仿佛将每一步踩在浪漫之上。透过玻璃扶手,光线更加透亮,不仅增加了楼梯的现代感,还为整个空间增添了更多的视觉层次。营造出温馨浪漫的氛围。
The staircase adopts a natural wood colored floor, and the hidden linear lighting seems to step every step onto romance. Through the glass armrest, the light becomes more transparent, not only adding a modern feel to the stairs, but also adding more visual layers to the entire space. Create a warm and romantic atmosphere.
6.书房
READINGROOM
▼ 在二楼楼梯口,打造了一个舒适的家庭读书角。不同于传统书房的正式,这里更注重轻松和愉悦的生活感受。让您可以在轻松的环境中享受阅读的乐趣。无论是放松身心,还是寻找灵感,这个家庭读书角都能满足您的需求。
On the second floor staircase, a comfortable home reading corner has been created. Unlike the formal style of traditional study rooms, this place places more emphasis on a relaxed and enjoyable lifestyle experience. Let you enjoy the pleasure of reading in a relaxed environment. Whether it’s relaxing or seeking inspiration, this family reading corner can meet your needs.
7. 主卧 BEDROOM
▼ 二楼作为主卧室做了大套房的一个设计,推开门走进房间做背靠背的展示柜和 U 型的衣帽间,满足女主人日常的衣帽收纳需求,把原本狭长带拐角的露台划分一半给到主卧,更加宽敞整洁,采光充足也易于打理。
The second floor, as the main bedroom, has been designed as a large suite. Pushing open the door and entering the room, we create a back-to-back display cabinet and a U-shaped cloakroom to meet the daily wardrobe storage needs of the hostess. The originally narrow and long terrace with corners has been divided into half for the main bedroom, making it more spacious and tidy, with sufficient lighting and easy to manage.
▼ 主卫洗手台这面墙敲了半高墙做成雾化定玻,既保证了一定的隐私性,又有效地节约了空间。同时,这一设计还最大化地将卧室内的采光引入卫生间,为卫生间增添了通透感和充足的自然光线。是通透加采光的双重加倍效果。
The wall of the main bathroom sink has been knocked half high to create atomized glass, which not only ensures a certain degree of privacy but also effectively saves space. At the same time, this design also maximizes the introduction of daylight from the bedroom into the bathroom, adding a sense of transparency and sufficient natural light to the bathroom. It is a double effect of transparency and lighting.
8 儿童房 CHILDREN’S ROOM
▼ 为了解决原有次卧空间较小的情况,设计师借用休闲区中一个衣柜空间,成功保证了卧室的功能性和大小,使得整个房间更加合理和舒适。
In order to solve the problem of small secondary bedroom space, the designer borrowed a wardrobe space from the leisure area, successfully ensuring the functionality and size of the bedroom, making the entire room more reasonable and comfortable.
9
次卧
THIRD ROOM
▼ 一楼次卧做了一字型的收纳衣柜。同时把原本的阳台打通,扩大房间的面积,给房间增加一个书桌的空间,放置一把贵妃椅,享受悠闲时光。
The first floor secondary bedroom has a straight shaped storage wardrobe. At the same time, the original balcony will be opened up and wrapped in the room, expanding the area of the room, adding a desk space to the room, and placing a noblewoman chair to enjoy leisurely time.
当温柔奶油遇上浪漫法式
艺术与生活和谐相融
呈现出优雅的极致温柔
细腻、浪漫的氛围
带给人一种高雅的居住体验
口碑相传,永续经营,
为万家实现美好生活的承诺!
喜欢本案例可以直接点击下方链接
免费预约
哦~
猜你喜欢:
“九鼎装饰”,海量案例,最新优惠,一键预约免费方案!
装修热线:400-968-8125
客服
消息
收藏
下载
最近

















































