查看完整案例

收藏

下载

翻译
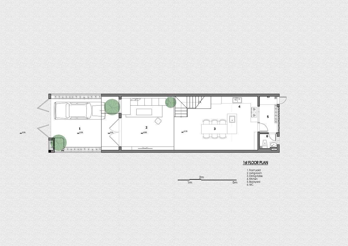
Khác với nhiều nhà phố liên kế được xây dựng trọn khu đất để tận dụng tối đa diện tích, Rosehouse được thiết kế lùi sâu, chừa lại khoảng sân trước rộng rãi để đón nắng, đón gió được nhiều nhất và tạo được không gian thoả đam mê của gia chủ.Lấy tên của loài hoa mà chủ nhà yêu thích, Rosehouse nằm trong khu đô thị đông dân cư ở thành phố Đà Nẵng. Ngôi nhà hướng Tây nên mặt tiền hứng trọn cái nắng gay gắt của mặt trời. Vì thế, vấn đề mà các kiến trúc sư ưu tiên giải quyết là làm sao để giảm thiểu được ảnh hưởng của nắng nóng. Bên cạnh đó, chủ nhà vốn yêu hoa hồng, mong muốn có đủ không gian để trồng và chăm sóc hoa hồng, một loài cây cần nhiều ánh nắng trực tiếp.Việc bố trí không gian dựa trên sự phân tích kỹ lưỡng các điều kiện vi khí hậu, đảm bảo thông gió và ánh sáng thích hợp cho các hoạt động diễn ra bên trong. Trong một diện tích nhỏ, việc tạo ra một công trình đáp ứng mọi công năng nhưng vẫn mang nét cá tính và khác biệt nhất định là một yêu cầu khó của dự án.Kiến trúc sư đã lựa chọn giải pháp lùi khu nhà ở về phía sau, tận dụng các nhà phố kế bên làm vách che nắng hướng Tây, chừa lại một khoảng sân vườn lớn phía trước để thỏa mãn mong muốn của gia chủ. Khoảng sân vườn lúc này cũng chính là vùng không gian đệm có chức năng phân cách không gian sống bên trong với môi trường bên ngoài.Sàn ban công tầng 3 được thiết kế nhằm giảm góc chiếu nắng vào phòng ngủ, nắng chiều sẽ không đi sâu vào phòng.Đồng thời trên đầu ban công có bố trí khung sắt che nắng vừa để treo được những chậu cây chịu nắng tốt giúp giảm lượng nắng trực tiếp vào công trình vừa giúp căn nhà trở nên xinh xắn hơn.Không gian ở được sử dụng giải pháp thiết kế là tạo một không gian mở liền mạch thông thoáng cho tất cả các không gian trong nhà. Khu vực bếp và phòng khách nối kết với nhau nhưng vẫn được phân tách không gian bởi khoảng vòm cong.Ánh sáng được bố trí từ từ theo các khu vực ảnh hưởng trực tiếp và phân tách không gian thành các thành phần ánh sáng, vật chất, yên tĩnh và nhiệt độ, tạo cho khung cảnh một cảm giác bình yên.Sự uốn cong mềm mại như những cánh hoa hồng được thể hiện cụ thể trong việc sử dụng đường nét thiết kế và lựa chọn vật liệu – những đường cong lớn tạo điểm nhấn mạnh mẽ và là đường ranh giới cho các không gian tách nhau; vật liệu được gói gọn trong 3 loại chính: sơn bê tông, gỗ màu tối, màu tường trắng làm nền chủ đạo, từ đó không gian được tinh gọn lại.Mặt tiền ngôi nhà theo hướng Tây, vì vậy các khoảng không gian đệm được tạo ra để giảm thiểu tiếng ồn, khói bụi và nắng nóng.Giải pháp kiến trúc đơn giản nhưng được tính toán và nghiên cứu cẩn thận. Khu ở với diện tích vừa đủ kết hợp các khoảng đóng mở thiết kế khéo léo đã tạo nên công trình thoáng mát và gần gũi với thiên nhiên, công trình phần nào góp phần tạo thêm môi trường sống tốt hơn cho ngôi nhà phố trong đô thị ngày nay.Xem thêm hình ảnh:XEM THÊM
客服
消息
收藏
下载
最近





























































