查看完整案例

收藏

下载

翻译
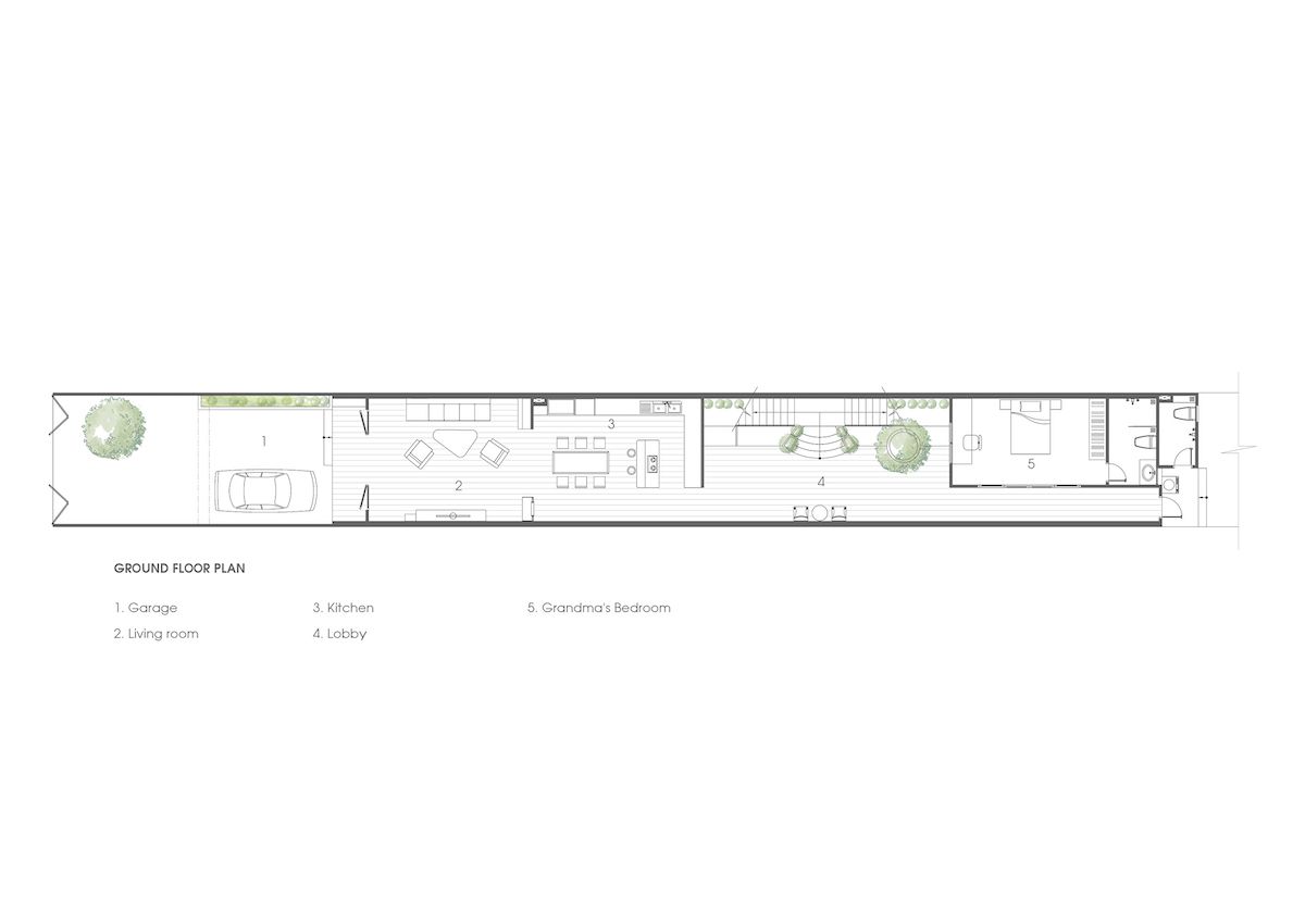
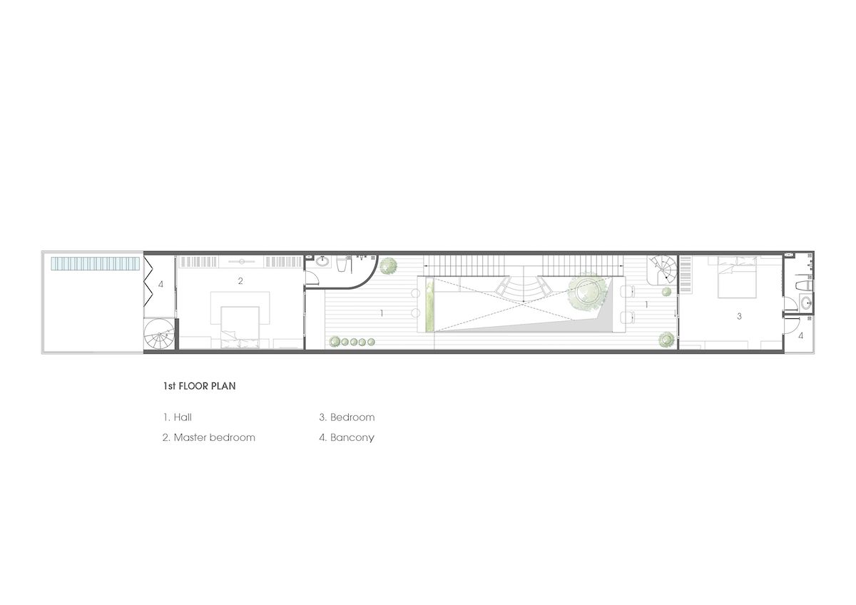
Dự án Ngôi nhà có cây cầu xanh là tổ ấm của một gia đình nhiều thế hệ, do đó bài toán đặt ra là tạo một không gian tiện nghi, ấm cúng trên một khu đất hẹp và dài.Dự án Ngôi nhà có cầu xanh được xây dựng ở thị xã Trảng Bom, tỉnh Đồng Nai. Khu vực các lô đất được phân chia nhỏ và dài. Dự án ngôi nhà có cầu xanh cũng vậy, chiều ngang chỉ 4,8m ngang và dài 50m2, lô đất hẹp và dài là một bài toán khó để phân chia không gian cho đội ngũ KTS. Ngôi nhà sẽ phục vụ cho đôi vợ chồng trẻ, ba con nhỏ và bà nội đã lớn tuổi.Để đáp ứng đủ số lượng phòng ngủ nhưng vẫn đảm bảo ánh sáng, sự thông thoáng cho các phòng, đội ngũ KTS đã đưa ra giải pháp tách ngôi nhà thành hai khối, tạo ra một sân trong giữa nhà.Nhưng để các thành viên trong gia đình gắn kết và không có cảm giác xa cách khi phải ở 2 khối nhà khác nhau thì phần sân trong các KTS đã làm một cây cầu màu xanh nối liền hai khối nhà và mái được làm một hệ lam bê tông giảm nắng và kính, cho cảm giác như một khối nhà và khối không gian liền mạch.Sự xuất hiện cây cầu màu xanh tạo một điểm nhấn giữa nhà, làm cho ngôi nhà trở nên đặc biệt, tính thư giãn và sự sinh động từ hình ảnh chiếc cầu xanh cũng giúp giải tỏa nhiều áp lực khi mọi người ở nhà và nhiều khoảng không gian điệm hai bên cây cầu trở thành nơi vui chơi học tập của các bạn nhỏ. Nó cũng trở thành một phần kỷ niệm tuổi thơ của các bạn nhỏ sau này.Cầu thang từ tầng trệt lên được chia thành hai vế cho hai hướng di chuyển khác nhau ở hai khối nhà cũng tạo ra sự riêng tư và sinh động, phục vụ sự di chuyển theo nhu cầu khác nhau, nhu cầu thuận tiện cho bố mẹ, nhu cầu sinh động với các con.Không gian làm bếp của mẹ, khu ngồi chơi của bà cũng mở hòa cùng không gian sân trong thông tầng giữa nhà kết nối với các phòng ngủ của các con ở tầng trên. Khoảng không cây xanh từ tầng trệt kết nối với các tầng trên cũng là một cây cầu xanh vô hình kết nối các không gian sinh hoạt của các thành viên ở các tầng khác nhau và khối nhà khác nhau.Xem thêm hình ảnh:XEM THÊM:
客服
消息
收藏
下载
最近























































