查看完整案例

收藏

下载

翻译
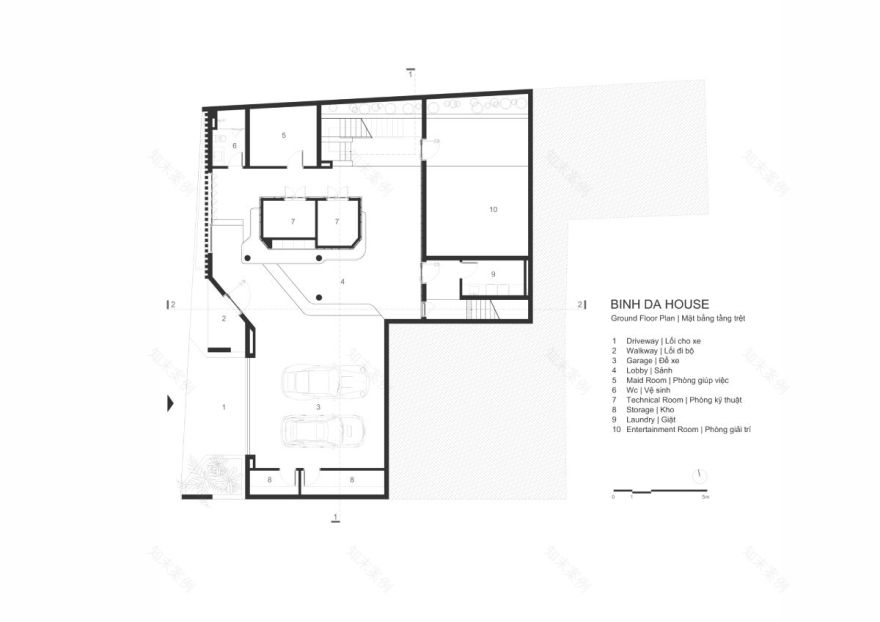
Nhà ở Bình Đà là nơi sum họp đại gia đình và gìn giữ nếp sinh hoạt thờ cúng tổ tiên. Một trong những điểm nổi bật của công trình là việc sử dụng hàng hiên như một yếu tố chính giải quyết cùng lúc nhiều khía cạnh.Trong dự án này, khách hàng của ZMA Architects là cặp vợ chồng tuổi trung niên. Sau nhiều năm làm ăn xa, họ mong muốn xây dựng một căn nhà ở quê để sống cùng bố mẹ già, nơi con cháu về sum họp mỗi cuối tuần và cũng là nơi gìn giữ nếp sinh hoạt thờ cúng tổ tiên.Khu đất nằm ở rìa làng Bình Đà, ngoại thành Hà Nội. Công trình có mặt chính hướng Đông Nam nhìn về phía cánh đồng lúa. Những khu đất lân cận đều là nhà của anh em, họ hàng thân thiết với gia chủ.Giải pháp thiết kế là sử dụng “hàng hiên” như một yếu tố chính nhằm giải quyết cùng lúc nhiều khía cạnh.Về công năng:Theo nhu cầu của khách hàng, căn nhà gồm một khu nhà thờ gia tiên theo lối ba gian truyền thống và một khối nhà ở có đầy đủ tiện nghi. Cùng với đó là những yêu cầu về phong thủy, nhóm thiết kế đã đề xuất sử dụng tầng trệt như một khối đế bao gồm các chức năng phụ trợ như: gara cho 02 ô tô, kho, phòng kĩ thuật, phòng giải trí… Toàn bộ khối nhà thờ, các chức năng sinh hoạt chính và sân vườn, cảnh quan được đưa lên trên khối đế để tận dụng tối đa không gian thoáng và tầm nhìn.Về hình thức:Khối nhà thờ bố trí lùi về phía sau để hạn chế sự lấn át về khối tích so với các công trình lân cận.Các không gian chính đều hướng về khoảng sân trong, được bao quanh bởi hệ thống hàng hiên đóng vai trò như một không gian chuyển tiếp giữa trong và ngoài. Không chỉ vậy, với nếp sống của người dân vùng quê Bắc Bộ xưa, hàng hiên còn là nơi diễn ra nhiều hoạt động như: ăn uống, thư giãn, giỗ chạp…Thiết kế thụ động:Hệ mái đua ra rộng giúp hạn chế tác động của bức xạ nhiệt lên công trình và tối đa thông gió ngang. Hàng hiên giữa hai khối nhà hoạt động như hành lang gió, giúp thông gió cho các không gian phía sau.Hệ mái lớn được tận dụng để thu nước mưa về bể chứa 22m3 ở phía sau nhà phục vụ sinh hoạt, trong bối cảnh ở khu vực xây dựng công trình khi đó chưa có hạ tầng cấp nước từ nhà máy.Xem thêm hình ảnh:XEM THÊM
客服
消息
收藏
下载
最近
































