查看完整案例

收藏

下载

翻译
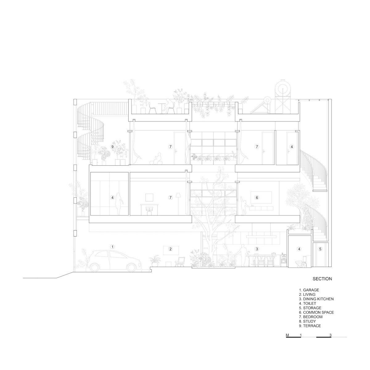
Dự án nằm ở một khu dân cư thuộc trung tâm thành phố Thủ Đức, bài toán đặt ra cho đội ngũ KTS là làm thế nào để hình thành một không gian thụ hưởng biệt lập bên trong, đảm bảo được sự riêng tư mà vẫn có thể tạo được cảm giác kết nối với bên ngoài.Qua quá trình chia sẻ, nhóm thiết kế nắm bắt được nhu cầu của chủ đầu tư với không gian sống, mối quan tâm chính của họ là có một không gian riêng tư hoàn toàn với bên ngoài nhưng vẫn có thể tương tác được với các yếu tố tự nhiên, từ đó mong muốn hình thành các không gian thụ hưởng biệt lập bên trong, điều mà họ cho rằng là vấn đề chung của các nhà ống hiện nay đang bị hạn chế.Đối với dự án này, đội ngũ KTS đề xuất các không gian đặc rỗng xen kẽ nhau. Lõi giếng trời được cấy vào giữa công trình để lấy được ánh sáng, gió tự nhiên và cả mưa. Trong quá trình làm việc, văn phòng thường nghiên cứu về các đặc tính của không gian thông qua mô hình để tạo ra những không gian mang tính nguyên thủy nhất có thể. Với dự án này là cấu trúc vòm, điều này nhằm truyền tải bầu không khí tĩnh lặng và cô đọng. May mắn thay, chủ nhà có thể đồng cảm được điều nhóm thiết kế muốn gửi gắm vào công trình. Bên cạnh các giải pháp về không gian đã đề cập, nhóm thiết kế cũng đã đề xuất vật liệu chính xuyên suốt là bê tông dựa trên tính cách và sở thích của chủ nhà. Việc sử dụng vật liệu kính bao quanh giếng trời góp phần làm tăng tính kết nối của người sử dụng bên trong đối với các yếu tố tự nhiên và ngược lại, đồng thời các thành viên trong gia đình có thể dễ dàng tương tác với nhau ở các không gian khác nhau.Xem thêm hình ảnh:XEM THÊM:
客服
消息
收藏
下载
最近

















































