查看完整案例

收藏

下载

翻译
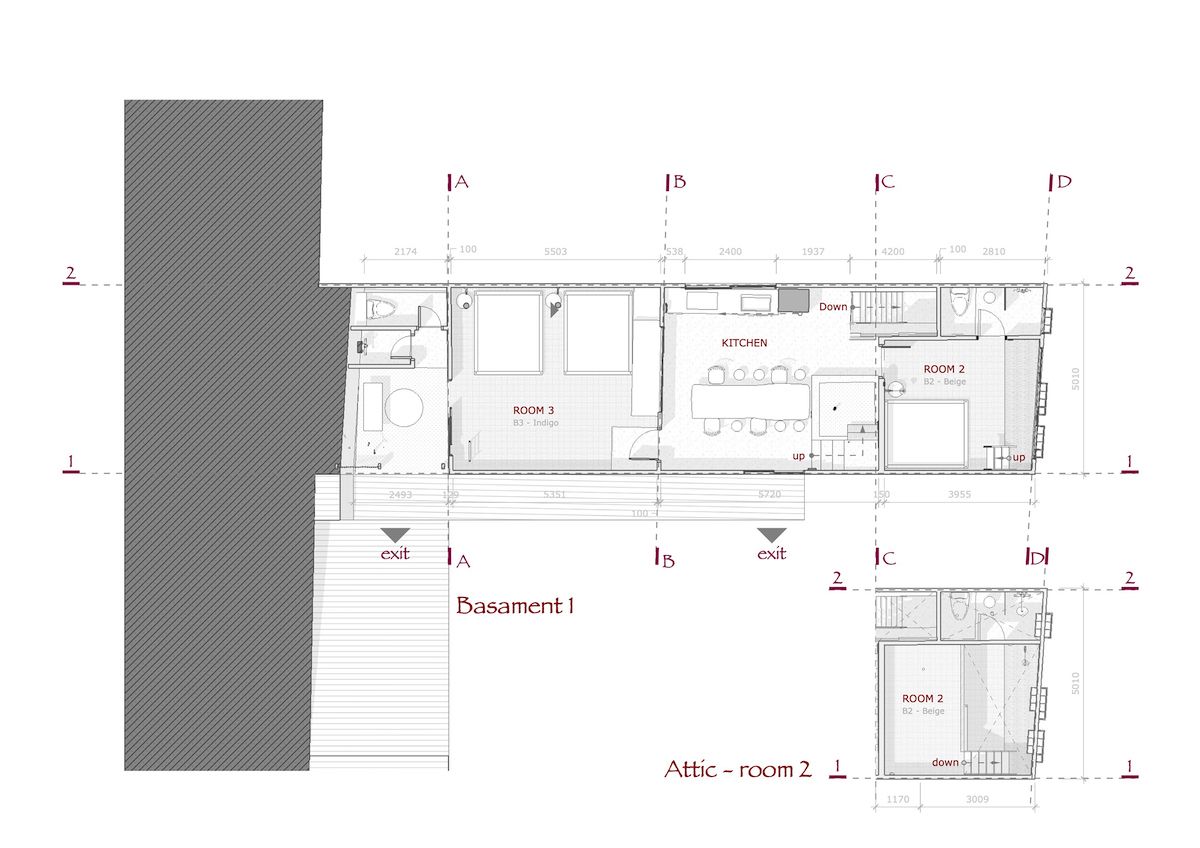
Dự án cải tạo Olia là một không gian lưu trú cho khách du lịch. Công trình nổi bật với những không gian linh hoạt, có thể thay đổi công năng dễ dàng tùy theo nhu cầu của người sử dụng, nhờ đó tạo nên bầu không khí ấm cúng và êm dịu cho du khách ghé thăm.Olia nằm trên một con dốc và ẩn sâu bên trong một con hẻm nhỏ hẹp của Đà Lạt. Hòa mình vào ánh sáng ban ngày, tòa nhà mang một sắc thái hoàn toàn tương phản với diện mạo khi màn đêm buông xuống, hơn nữa toàn bộ tòa nhà sẽ bừng sáng như một chiếc đèn lồng với ánh sáng có chủ đích nhằm tạo ra những hiệu ứng tối ưu.Không gian bên trong được chia thành 3 tầng và 1 tầng áp mái, cách bố trí các tầng liên thông là cầu thang kéo dài từ sảnh chính lên khu sinh hoạt chung. Có một nhà bếp khiêm tốn đáng yêu kết hợp với khu vực ăn uống và làm việc cực kỳ thoải mái. Tổng cộng có 6 phòng, bao gồm cả khu vệ sinh tập thể và khu vệ sinh riêng được xây dựng phù hợp với mọi nhu cầu của du khách.Dự án Olia cải tạo không gian lưu trú cho khách du lịch. Các phòng được thiết kế với diện tích không gian phù hợp, nội thất tối giản, không khí phù hợp cho việc lưu trú tạm thời. Các chức năng tổng thể của căn nhà đảm bảo khía cạnh thiết thực, đáp ứng các hoạt động hàng ngày của du khách. Hầu hết các đồ nội thất, khung chính và tường của ngôi nhà đều được làm bằng gỗ thông. Du khách có thể có một giấc ngủ ngon trong bầu không khí ấm cúng và êm dịu này. Tất cả các phòng đều được kết nối với sân vườn bằng một cửa sổ lớn giúp tạo ra một không gian linh hoạt, có thể thay đổi công năng dễ dàng tùy theo nhu cầu của người sử dụng.Xem thêm hình ảnh:XEM THÊM:
客服
消息
收藏
下载
最近





























































































