查看完整案例

收藏

下载

翻译
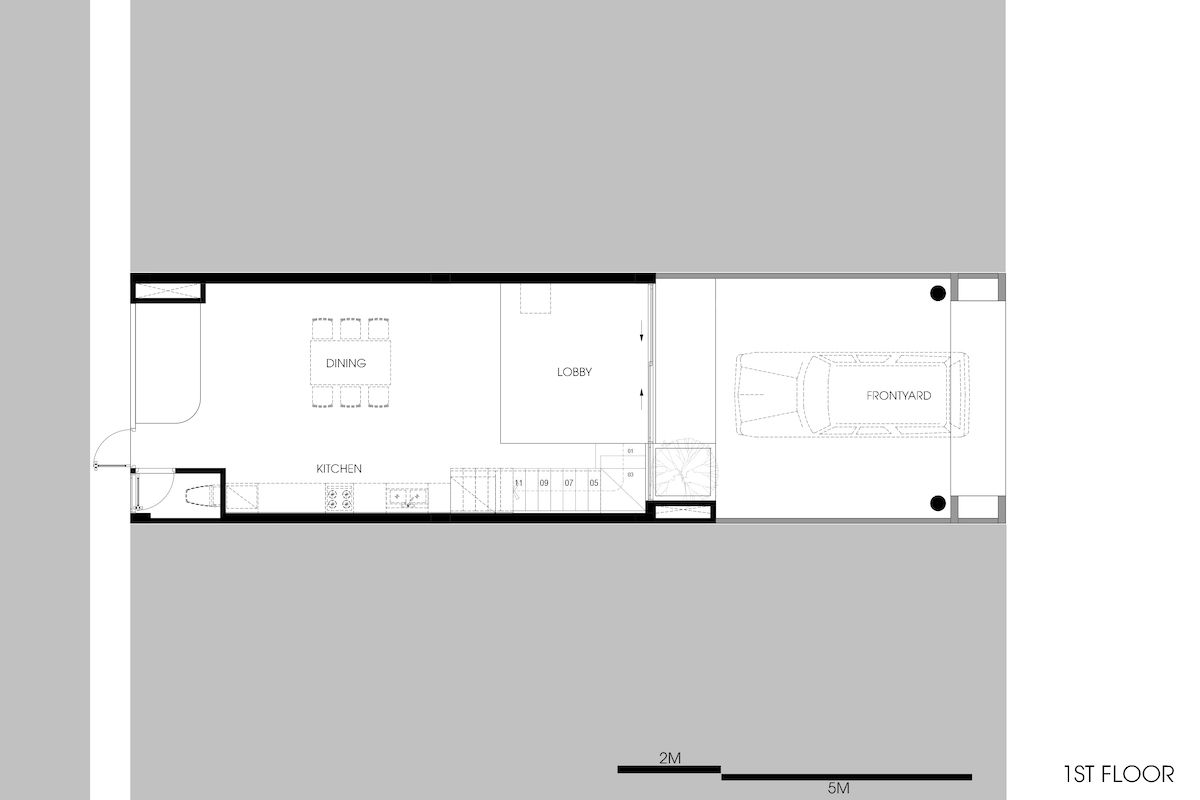
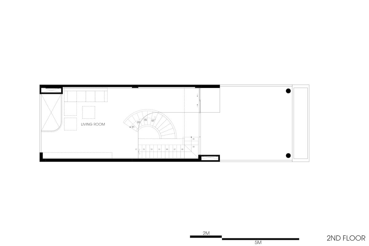
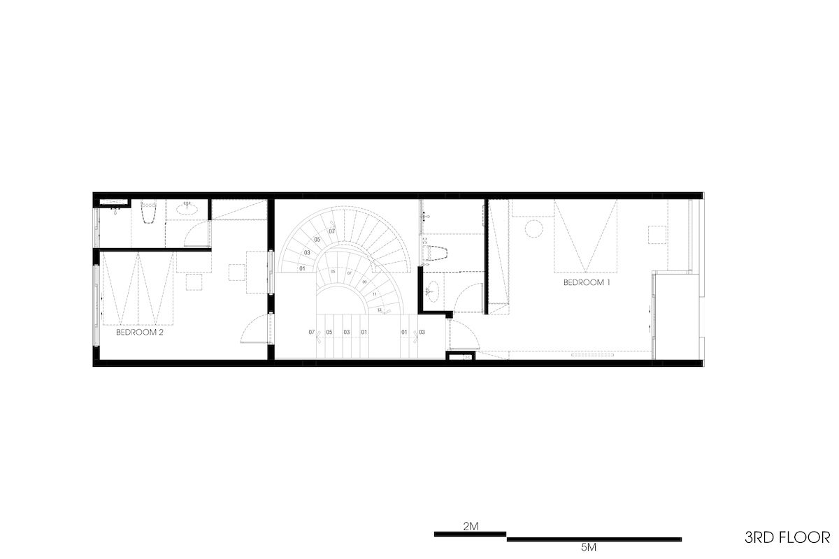
Minaka là một ngôi nhà đô thị điển hình tại Việt Nam với khu đất hẹp, nhỏ. Đội ngũ KTS đã lựa chọn tạo ra các khoảng lệch trục từ trong ra ngoài để giải quyết vấn đề lấy sáng, thông thoáng bên trong căn nhà.Minaka là một ngôi nhà đô thị điển hình tại Việt Nam với khu đất hẹp, nhỏ và một mặt thoáng. Với nhu cầu sử dụng lớn dành cho gia đình 6 thành viên, việc mở rộng không gian sử dụng theo phương đứng là không thể tránh khỏi. Một khối nhà hẹp và cao sẽ dẫn đến hai bất lợi, một là khó lấy sáng và thoáng khí cho không gian bên trong, hai là sẽ làm tăng sự ngộp thở cho không gian đô thị, vì ngôi nhà toạ lạc trong một khu phố với rất nhiều các ngôi nhà cao tầng khác.Giải pháp tạo ra các khoảng lệch trục từ trong ra ngoài đã được lựa chọn. Giữa nhà, đội ngũ KTS tạo một “cái phễu” lấy sáng; dời trục thang liên tục từ dưới lên trên, vừa lấy sáng vừa tạo cảm giác dễ chịu khi di chuyển lên tầng cao. Các sàn được bố trí lệch cao độ để thoáng khí. Mặt trước khối nhà cũng được lùi dần theo tầng cao, mở dần khoảng trống cho khu phố. Điều này vừa giúp cho không gian đô thị bên ngoài được dễ thở, vừa hạn chế bớt cảm giác chiều cao khi đứng trên tầng cao nhìn xuống. Gạch trần đỏ được sử dụng đồng bộ toàn mặt tiền nhằm hướng tới sự gần gũi, thân thiện và làm nổi bật màu xanh mát của cây cối.Xem thêm hình ảnh:XEM THÊM:
客服
消息
收藏
下载
最近





































