查看完整案例

收藏

下载

翻译
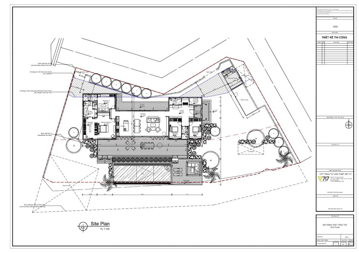
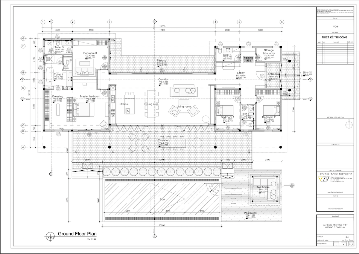
Tọa lạc tại khu dân cư ven sông, phường Long Phước, quận 9, biệt thự ven sông mang phong cách giản dị, chan hòa với thiên nhiên đồng thời đảm bảo chất lượng sống từ không gian bên trong đến bên ngoài. Hướng đến triết lý kiến trúc hiệu quả, bền vững và thẩm mỹ, đội ngũ KTS đã áp dụng xu hướng kiến trúc mới hiện nay để tạo ra điểm nhấn cho công trình thông qua 3 khía cạnh cơ bản: mặt bằng tổng thể, thiết kế thân thiện môi trường và không gian mở.Do dự án nằm trong khu đất với diện tích gần 3.000m2, một mặt giáp sông trực tiếp nên đội ngũ KTS đã bố trí dự án thành nhiều khối nhà khác nhau với từng chức năng cụ thể, xoay quanh một hồ bơi tràn là “trái tim” của dự án bao gồm khối phụ trợ (nhà bảo vệ, gara, kỹ thuật), khối nhà tàu (đậu ca-nô nhỏ) và khối nhà chính (không gian ở).Lấy hồ bơi là trung tâm sinh hoạt, khối nhà chính cao 1 tầng được đặt ở phía Bắc quay mặt về hướng Nam nơi có dòng sông, khối phụ trợ đặt ở phía Đông cao 1.5 tầng và nhà tàu 1 tầng đặt ở phía Tây. Do Chủ đầu tư là người nước ngoài nên họ yêu thích nắng hướng Tây buổi chiều để tắm nắng.Phòng khách, bếp, ăn được bố trí mở liên kết với sân trước và sân sau sử dụng thông gió tự nhiên; các phòng ngủ có mặt kính lớn quay về hồ bơi và bờ sông tạo cảm giác sống gần gũi thiên nhiên.Vật liệu được sử dụng trong công trình chủ yếu có xuất xứ từ địa phương với độ bền cao và màu sắc nhã nhặn, điển hình như ngói, gỗ và đá ốp lát tự nhiên… Việc lựa chọn vật liệu dựa trên nguyên tắc thiết kế bền vững, khuyến khích kinh tế địa phương và hài hòa với cảnh quan xung quanh, đồng thời đáp ứng được ngân sách đầu tư thực tế và chất lượng công trình.Các công trình sử dụng hình thức kiến trúc địa phương như thấp tầng, màu nhẹ, vật liệu tự nhiên bản địa, mái ngói dốc xen lẫn bởi rất nhiều cây trồng bao gồm cả cây bụi và cây bóng mát. Khi bước vào cổng công trình sẽ cảm nhận đây là một khu resort cao cấp với hơi ấm gia đình chứ không đơn thuần là một nơi trú ngụ.Xem thêm hình ảnh công trình:XEM THÊM:
客服
消息
收藏
下载
最近




























































