查看完整案例

收藏

下载

翻译
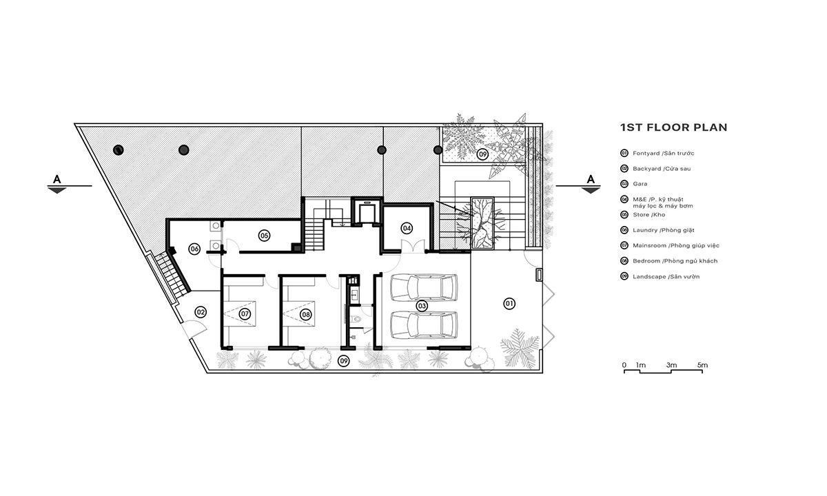
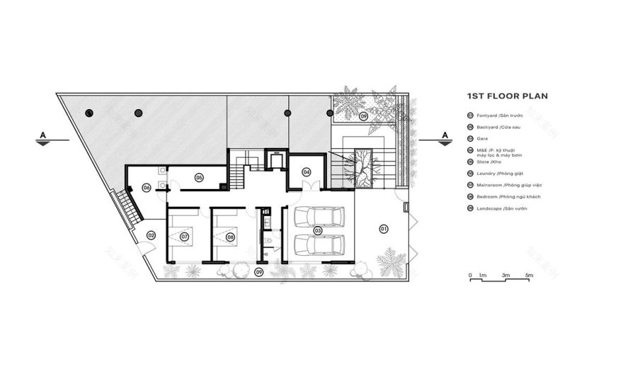
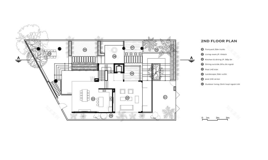
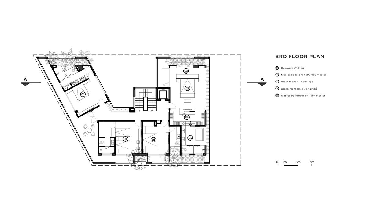
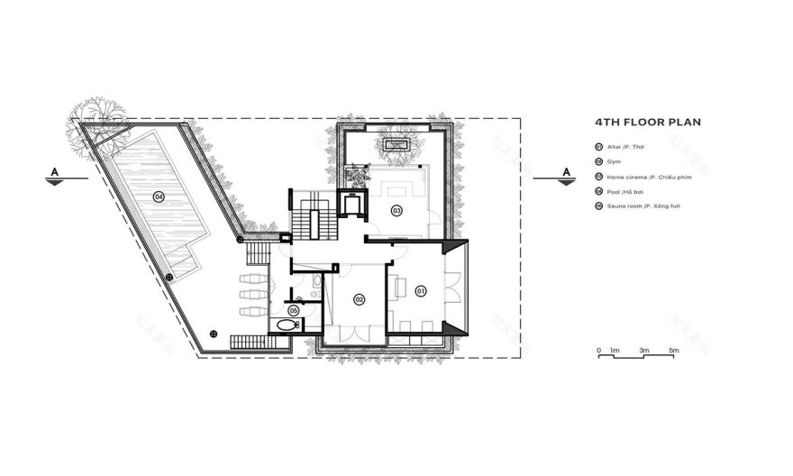
Riverside House là một căn nhà thuộc dự án Euro Village 1, thành phố Đà Nẵng. Tận dụng các lợi thế từ vị trí xây dựng, AVA Architects đã đưa ra ý tưởng cho một căn nhà có sự kết nối hài hòa giữa nội ngoại thất.Thông tin công trình được cung cấp bởi công ty kiến trúc.Riverside House tọa lạc trên một khu đất tách biệt với diện tích 411,9 m2 thuộc dự án Euro Village 1, thành phố Đà Nẵng. Quy mô dự án trải dài từ cầu Rồng đến cầu Trần Thị Lý, cách sông Hàn khoảng 1 km. Khu đất xây dựng có một mặt hướng sông và một mặt hướng công viên, tạo tầm nhìn ra cảnh quan sông từ hầu hết các hướng. Với lợi thế này, AVA Architects đã thiết kế một công trình có sự kết nối hài hòa giữa nội ngoại thất.XEM THÊM:Ocean Breeze – Nhà Gió Biển | Chong Chóng ArchitectureÝ tưởng này hoàn toàn trùng khớp với ý định ban đầu của chủ đầu tư khi chọn khu đất này cho ngôi nhà của mình. Là một doanh nhân, ông hy vọng ngôi nhà vừa hiện đại, vừa gần gũi với thiên nhiên – một không gian thư giãn, thoải mái để trở về sau những giờ làm việc căng thẳng và vất vả.Riverside House có bốn tầng với tổng diện tích sàn hơn 1.000 m2. Phần chính của ngôi nhà và sân vườn được nâng lên khỏi mặt đất để người sử dụng có thể tận hưởng hoàn toàn cảnh quan bên ngoài hàng rào.Một phần không gian hầm đặt các chức năng như ga-ra, phòng gia nhân, kho và phòng giặt ủi. Tại trệt, phòng khách và bếp được dồn về một phía để dành không gian còn lại cho sân vườn, bể cá và hành lang nối phía trước và phía sau của căn nhà.Đây là giải pháp nhằm kết nối giữa con người và thiên nhiên. Ta có thể thu toàn bộ khung cảnh lộng lẫy của sông Hàn vào tầm mắt dù ở bất cứ đâu, trong nhà hay ngoài vườn.XEM THÊM:Biophilia: Thiên nhiên trong kiến trúc và không gian nội thấtÝ đồ thiết kế là kết nối tất cả không gian trong nhà với gió và ánh sáng tự nhiên. Để hiện thực hóa điều này, AVA architects đã đặt bốn phòng ngủ ở tầng 3 xoay quanh một sân trong và hệ thống hành lang đóng vai trò kết nối tất cả các phòng về khoảng sân này. Do vậy, từ các phòng và lô-gia, ta có thể tận hưởng cảnh quan bờ sông từ mọi hướng.Mặt tiền của Riverside House có các thanh gỗ xoay tự động và được liên kết với một hệ thống điện thông minh. Người sử dụng có thể điều chỉnh tầm nhìn, ánh sáng và gió,… bất cứ lúc nào và ở bất cứ đâu. Các thanh gỗ vừa đóng vai trò là giải pháp trang trí, chiếu sáng và thông gió, vừa giúp không gian sống sinh động, ấn tượng và thú vị hơn.Tầng bốn – sân thượng của căn nhà – là không gian thư giãn và giải trí. Tâm điểm của tầng này là hồ bơi và hiển nhiên, khu vực này được mở về hướng sông Hàn. Đây là nơi mà gia đình có thể quây quần thưởng thức những màn biểu diễn cầu Rồng phun lửa và toàn cảnh thành phố về đêm.Xem bộ sưu tập hình ảnh công trình tại đây:
客服
消息
收藏
下载
最近



















