查看完整案例


收藏

下载

翻译
Originally built in 1908, this neighborhood home had been owned by one family for four generations.
The new owners honored that past, exposing much of the framing and recycling what couldn’t be salvaged into the board form for the exterior concrete walls. A southern facing side yard created a new entry sequence and sun filled urban oasis.
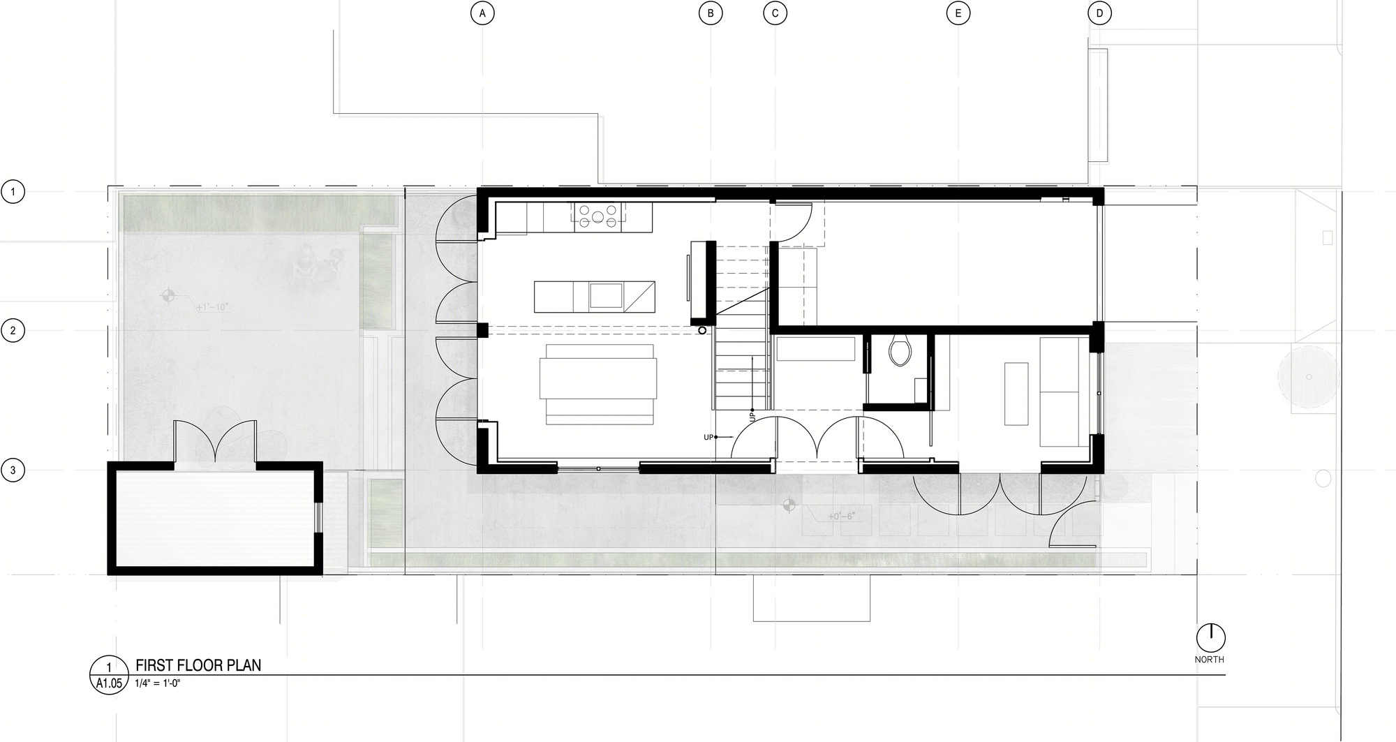
At 17’-1” interior stud to interior stud, we had a saying at this Bernal Heights home: Every inch counts. We transformed a one-bedroom cottage into a three-bedroom home without expanding the building envelope.
By paying attention to outdoor access and the vertical space as well as the floorplan, the home now lives larger than its 1253 sf.
客服
消息
收藏
下载
最近

















