查看完整案例

收藏

下载

翻译
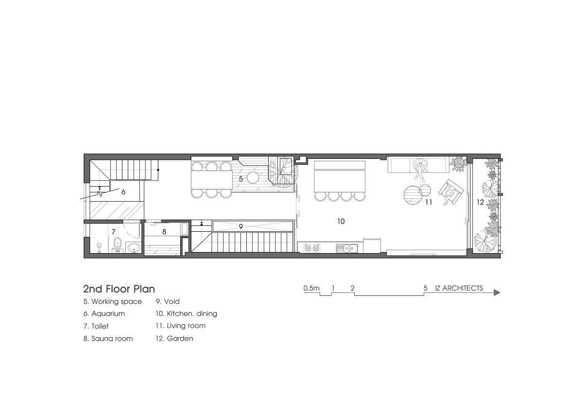
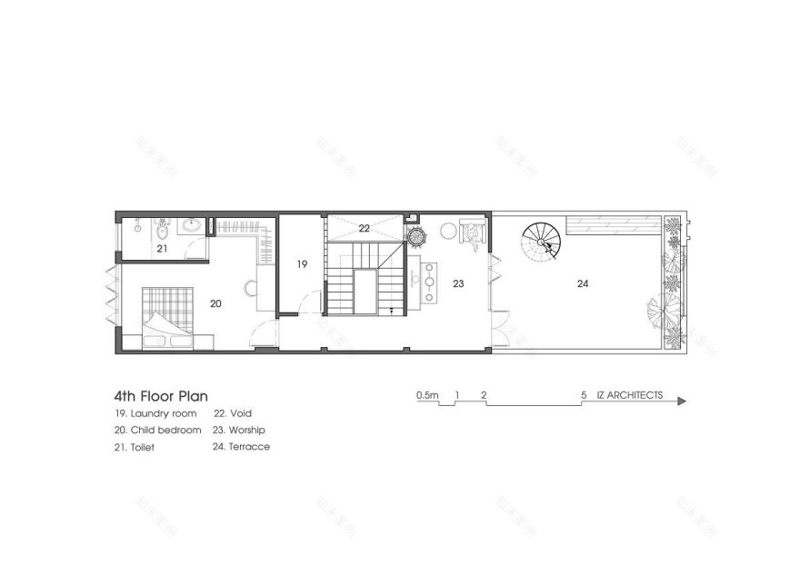
Trên nền một căn nhà 3 tầng cũ kĩ với cầu thang 2 vế tối tăm chật chội, đội ngũ thiết kế IZ Architects đã nâng cấp, cải tạo HIA trở thành một nơi đáng sống với những không gian linh hoạt, tận dụng tối đa ánh sáng tự nhiên…Thuyết minh của KTS:Công trình HIA trước và sau cải tạoHIA là một ngôi nhà được cải tạo nâng tầng và thay đổi không gian trên nền một căn nhà 3 tầng cũ. Với kích thước nhỏ và phổ biến của khu phố, một căn nhà 3 tầng với cầu thang 2 vế tối tăm và chật chội rất quen thuộc trong những năm trước đây của Việt Nam.XEM THÊM:Cải tạo quán bia hơi cũ thành không gian ẩm thực có “1-0-2”giữa lòng Hà Nội | VG Design JSCBài toán đặt ra cho các kiến trúc sư là làm sao để thay đổi toàn bộ không gian bên trong, tạo ra một sư tươi mới trong ngôi nhà và toàn bộ diện tích tầng 1 chủ nhà dùng để kinh doanh.XEM THÊM:Daisy House | IZ ArchitectsCăn nhà tận dụng tối đa nguồn ánh sáng tự nhiênĐể làm được điều đó, phần kết cấu của ngôi nhà sẽ phải thay đổi rất nhiều. Các không gian được thay đổi luân phiên để lấy được toàn bộ ánh sáng cũng như không khí đối lưu cho căn nhà. Điều đặc biệt của ngôi nhà này là có tới 4 cầu thang, mỗi tầng sẽ liên kết với nhau bằng một cầu thang khác nhau, vừa là giải pháp giải quyết kết cấu từ căn nhà cũ và cũng tạo nên những không gian đệm khác nhau cho mỗi tầng, mỗi căn phòng sẽ được mở ra mỗi khoảng đệm khác nhau.XEM THÊM:H2 | HH House – Cải tạo nhà ở để xanh hơnNhững vật liệu thô mộc được dùng chủ đạo trong công trình, làm giảm một phần nhiệt độ nóng bức và cũng là sở thích của chủ nhân ngôi nhà. Một ngôi nhà mới mang lại những niềm vui và cảm xúc mới đến với mọi thành viên trong gia đình.XEM THÊM:DT House – Nhà trong nhà | IZ ArchitectsXem thêm ảnh công trình tại đây:
客服
消息
收藏
下载
最近





















