查看完整案例

收藏

下载

翻译
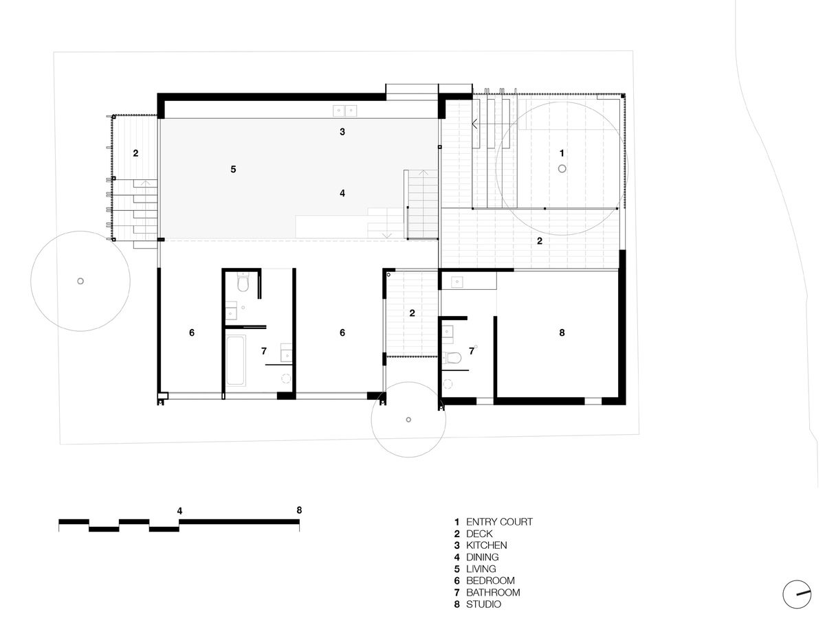
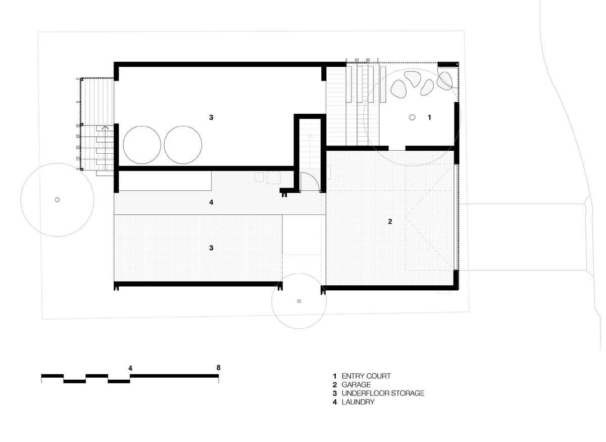
Bằng cách phân chia không gian thành từng ô, kết hợp với những vách gỗ mỏng, đội ngũ thiết kế Curious Practice đã tạo nên Vikki’s Place – không gian sống riêng tư và thoải mái trong ngôi nhà đa thế hệ tại thành phố Newcastle, bang New South Wales, Úc.Đơn vị thiết kế:Curious PracticeKiến trúc sư:Warren HaasnootĐội ngũ dự án:James Ellis, Chris Bourke, Nina Mocke, Angus VindenChủ thầu:Built By EliKỹ sư:Skelton Consulting EngineersCảnh quan:Curious Practice and Built By EliCurious Practice – đội ngũ thiết kế với phong cách mang đậm tính bản địa đã thiết kế nên ngôi nhà dành cho nhiều thế hệ, tạo nên “không gian ấm cúng trong gia đình và không tạo nên sự tách biệt giữa các thành viên trong gia đình”.Nằm ngay trên vùng đất dễ ngập lụt, Vikki’s Place được thiết kế giống với kiến trúc nhà sàn với tầng trệt được gia cố bằng bê tông chắc chắn và tầng một được sử dụng làm không gian sinh hoạt chung cho các thành viên.Các cánh cửa truyền thống cũng được lược bỏ. Thay vào đó những chiếc rèm tre sáng màu được bố trí tại các khu vực ra vào và giữa các không gian. Người dùng có thể thoải mái trong không gian riêng tư khi kéo rèm xuống và tạo không gian mở cho cả ngôi nhà nếu cuộn lên gọn gàng.Màu sắc mà đội ngũ thiết kế địa phương muốn nhấn mạnh chính là những gam màu ấm. Hầu hết các vật liệu trong ngôi nhà đều sử dụng gỗ.XEM THÊM:Trung Villa – Ngôi nhà 3 thế hệ | EVITArchitectureNội thất trong bếp được làm từ gỗ ván birch, những tủ đựng đồ đơn giản với mặt thép không gỉ giúp không gian bếp rộng rãi hơn.Mặt còn lại của không gian trong bếp được trang trí bằng một chiếc bàn nhỏ bằng gỗ đặt kèm theo chiếc ghế sô pha màu tím nhạt và một chiếc bàn gỗ dài với gam màu tối chủ đạo, tăng cảm giác ấm cúng trong mỗi bữa ăn.“Chính thiết kế cơ bản nhất, gần như nguyên thủy cùng với việc xử lý những nguyên liệu thô một cách khéo léo khiến chúng ta cảm thấy như đang ở “nhà” thực sự”,Curious Practice chia sẻ.Không cầu kì trong thiết kế, sử dụng những vật liệu đắt đỏ, Vikki’s Place đã xóa nhòa đi ranh giới giữa các phòng, khiến người sử dụng cảm nhận được sự di chuyển mượt mà từ không gian này tới không gian khác.“Với các cấp độ không gian trong kiến trúc, không phân chia các phòng cụ thể như thông thường giúp ngôi nhà có thể chứa được lượng khách đáng kể, phù hợp cho nhiều dịp khác nhau”,kiến trúc sư Warren Hassnoot chia sẻ trên Dezeen.“Sự điều động không gian và cấp độ từ những bậc thang gợi lên cảm giác mượt mà như đang đi lại giữa các cấp địa hình như ruộng bậc thang thay vì di chuyển từ phòng này tới phòng khác”.“Điều này khiến ngôi nhà thêm phần thoải mái và linh hoạt khi đông người”.“Ở đây, nội thất mộc mạc và trung thực được ưu tiên hơn sự phong cách hay quyến rũ”,studio tại Úc chia sẻ thêm.Sự mộc mạc này đến từ những chi tiết nhỏ nhất như các ốc vít gắn trên tường cũng được để lộ, các con tem được sản xuất được gắn trên các thanh gỗ chạy dọc trần nhà.Ở phía sau phòng bếp, sàn nhà được nâng cao hơn, đồng thời có một vài bậc thang gỗ dẫn đến cặp phòng ngủ được phân chia bằng ván gỗ ép đơn giản.Ngay tầng một có lối nhỏ gồ ghề chạy quanh căn nhà, được kết nối với tầng một bằng một chiếc cầu thang được lát gạch trắng và được chỉnh sửa thêm ở một số bậc bằng những thanh gỗ.Chỉ có một không gian sinh hoạt duy nhất được thiết kế với phong cách khác biệt trên tầng một, được studio xây dựng hướng về phía trước, nhìn ra đường chính.Studio “khép kín” này cũng được trang bị đầy đủ với phòng ngủ rộng rãi, có bếp nhỏ và chỗ giặt giữ”.Vikki’s Place đã tham gia vào sự tăng trưởng của cộng đồng nhà dành cho những gia đình đa thế hệ ở Úc bên cạnh thiết kế McIlwrick Street Residences của B.E Architecture, nơi sinh hoạt của các thành viên trong gia đình được kết nối bởi những sân nhỏ trong nhà hay Ngôi nhà hỗn hợp của Matt Gibson, phòng ngủ của các thành viên trong gia đình đều được bao bọc bởi các hộp mạ kẽm.Biên dịch | Vũ Hương (Nguồn: Dezeen; Nguồn ảnh: Katherine Lu)Xem thêm ảnh:
客服
消息
收藏
下载
最近












