查看完整案例

收藏

下载

翻译
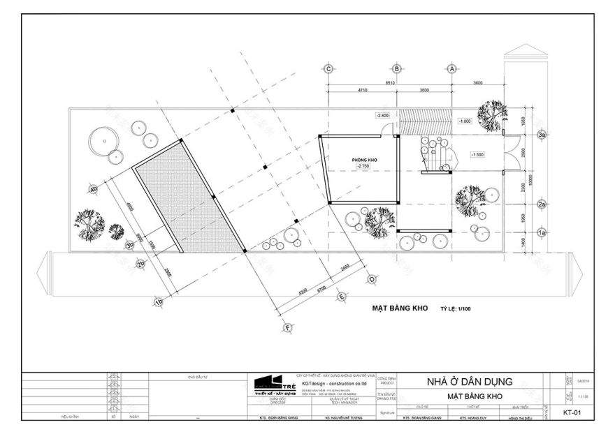
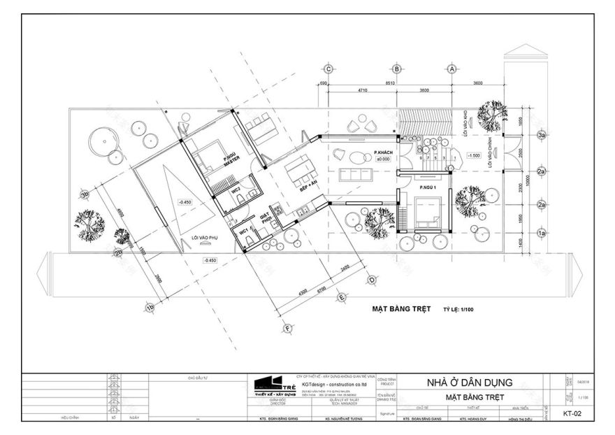
Nhà Gia Nghĩa được các KTS của G+ Architects thiết kế cho một gia đình trẻ từ miền Trung vào Đăk Nông lập nghiệp. Với thế đất nằm trên đồi thuộc cao nguyên M’nông sát bìa rừng, nhìn xuống là thung lũng đã cuốn hút KTS khi nhận thiết kế ngôi nhà.Địa điểm:Gia Nghĩa – Đak Nông.Thiết kế:G+architectsKiến trúc sư:Giang Đoàn, Hoàng Duy, Hồng Diễu, Hải VũThi công:Thợ địa phươngNăm hoàn thành:2019Ảnh:Quang DamCảm hứng của cây lá sầu riêng khô rơi chạm nhẹ lên mặt đất tạo cảm hứng cho KTS khi thiết kế cấu trúc cho công trình. Một ngôi nhà giản dị cấu trúc theo kiểu nhà sàn mở rộng với thiên nhiên, với tấm mái rộng che phủ như nhà dài của người Êđê.Nhà Gia Nghĩa với cấu trúc theo kiểu nhà sàn, gầm dùng làm nhà kho. Những bậc thềm dẫn lên không gian ở có vị trí trải dài trên tầng cao. Nửa đằng cửa chính là không gian sinh hoạt chung, nửa còn lại còn dành cho những khu vực riêng tư hơn. Hệ cửa 2 lớp (Lớp lam gỗ & lớp kính) chủ động đóng mở phù hợp với điều kiện khí hậu Cao nguyên.Không gian tiếp cận trong nhà và thiên nhiên bên ngoài là khoảng hiên nhà được mở rông bất ngờ từ những đoạn vạt xéo gấp nếp làm tăng cảm xúc của con người khi ngồi dưới mái hiên cao rộng thưởng thức bức tranh tuyệt đẹp của thiên nhiên.Nội thất ngôi nhà đơn giản, ấm áp, rộng mở nhưng không thiếu vẻ tôn nghiêm – được gia công tại địa phương phù hợp với nhu cầu của một gia đình trẻ với lối sống giản dị. Những vật liệu địa phương như đá xây, gỗ cây cà phê, gỗ cũ đã qua sử dụng được tái sử dụng tăng thêm hồn nơi chốn cho chính ngôi nhà.Toàn bộ mọi góc nhìn của Nhà Gia Nghĩa đều tâp trung về phía thung lũng – nơi có thể nhìn thấy mây giăng mỗi buổi sớm, hay bầu trời cao nguyên trong vắt , đầy ánh sao vào buổi đêm. Ngắm nhìn cảnh vật thiên nhiên từ ngôi nhà cho ta cảm nhận thời gian như dừng lại trong sự tĩnh lặng của không gian. Ở nơi không có những tòa nhà chọc trời hay những đường dây diện dọc ngang, ngôi nhà là nơi gia chủ tìm thấy sự an nhiên.Xem thêm về công trình tại đây:Nguồn: G+ ArchitectsBT | Lê TrinhVICOSTONE là một trong các nhà sản xuất hàng đầu thế giới về đá nhân tạo gốc thạch anh cao cấp, sở hữu đặc tính vượt trội về độ bền, chắc, chống thấm, chống xước, ngừa vi khuẩn, chống bám bẩn.
客服
消息
收藏
下载
最近




























