查看完整案例

收藏

下载

翻译
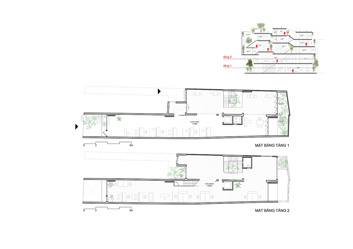
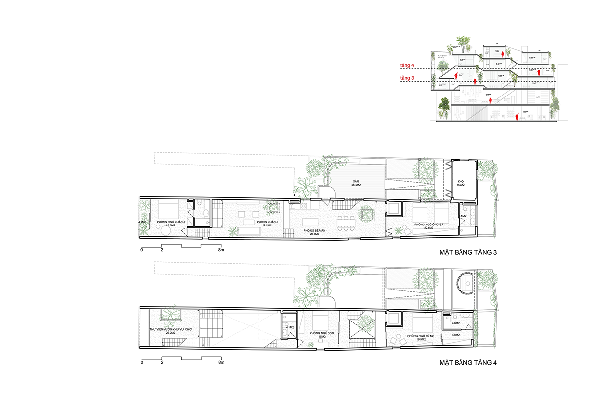
CH house lấy cảm hứng từ những ngôi nhà cổ ở Hà Nội, với những không gian tràn ngập nắng với gió tự nhiên nhờ những khoảng sân trong tách biệt, thiết kế hướng tới việc mang đến hơi thở truyền thống trong đời sống hiện đại, đồng thời tạo ra những không gian sống tràn ngập ánh sáng tự nhiên, đảm bảo được thông thoáng trong nhà.Tên công trình:CH houseThiết kế:ODDO architectsVị trí:Hà Đông, Hà NộiNăm hoàn thành:2019Công trình CH house nằm trên một tuyến đường lớn với mật độ dân cư tập trung dày đặc tại quận Hà Đông, Hà Nội. Do vậy, vấn đề được quan tâm nhất là tạo nên không gian tách biệt với khói bụi và ồn ào bên ngoài, giúp gia chủ có được cảm giác thoải mái và thư giãn khi về với căn nhà.Chức năng của CH house được chia ra thành 2 phần: phần sinh hoạt chung và phần yên tĩnh. Các không gian sinh hoạt chung như phòng khách, thư viện, phòng ăn và bếp được sắp xếp và bố trí với những độ cao sàn khác nhau và kết nối bằng bậc thang. Với cách thiết kế như vậy sẽ tạo ra các không gian trở nên mở và tạo cảm giác rộng rãi hơn khi chiều ngang của căn nhà không lớn. Nhờ vậy, các thành viên gia đình có thể quan sát và giao tiếp dễ dàng hơn.Không chỉ vậy, hai phòng ngủ trẻ em được đặt trên không gian sinh hoạt chính, bên cạnh khoảng thông tầng để có thể kết nối với các thành viên gia đình ở tầng dưới. Nhờ vậy, thiết kế tạo nên sự gắn kết các thành viên trong gia đình, nhất là trong bối cảnh xã hội hiện đại vội vã ngày nay.Phần yên tĩnh được đặt ở phía trong cùng của ngôi nhà CH house, gồm phòng ngủ của ông bà và phòng ngủ chính của bố mẹ.Thiên nhiên là một yếu tố quan trọng, đem lại hiệu quả tích cực đối với tâm lý của con người. Tuy nhiên, sự phát triển quá nhanh của các thành phố lớn lại gây ra sự thiếu không gian xanh để con người thư giãn. Vì vậy, trồng cây trong nhà là vô cùng cần thiết, giúp tạo ra lên một không gian sống yên bình và kết nối con người với thiên nhiên ở ngay tại một thành phố có nhiều vấn đề về môi trường, cũng như rất thiếu những không gian xanh như Hà Nội.Mặt tiền của CH house được thiết kế 2 lớp (double façade) với lớp vỏ ngoài cùng bằng gạch xếp tạo lỗ và lớp trong bằng kính khung sắt. Với hệ mặt tiền 2 lớp, kết hợp vườn cây ở giữa như vậy sẽ giúp ngôi nhà có khả năng chắn bụi bẩn, che nắng và đồng thời vẫn cho phép thông gió tự nhiên dọc theo cả chiều dài tòa nhà. Đồng thời, mặt tiền của ngôi nhà cũng được thiết kế với một ô cửa sổ lớn, cho phép nhiều ánh sáng vào nhà hơn những khi cần thiết và khiến mặt tiền trở nên ấn tượng, độc đáo và nổi bật hơn.Xem thêm về công trình tại đây:Nguồn: ODDO ARCHITECTSBT | Lê TrinhTham khảo thêm về các mẫu sản phẩm đá nhân tạo gốc thạch anh VICOSTONE: ứng dụng rộng rãi trong nội thất các công trình nhà riêng và thương mại: mặt bàn bếp, bàn trà, bàn trang điểm, bồn rửa, ốp tường, décor không gian sống.
客服
消息
收藏
下载
最近



































