查看完整案例

收藏

下载

翻译
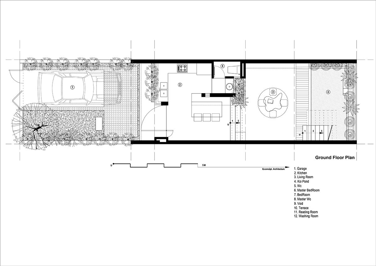
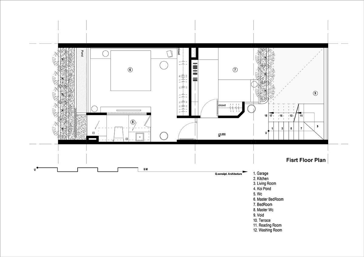
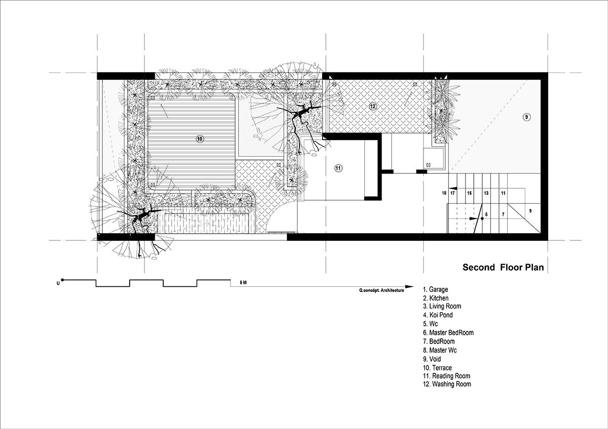
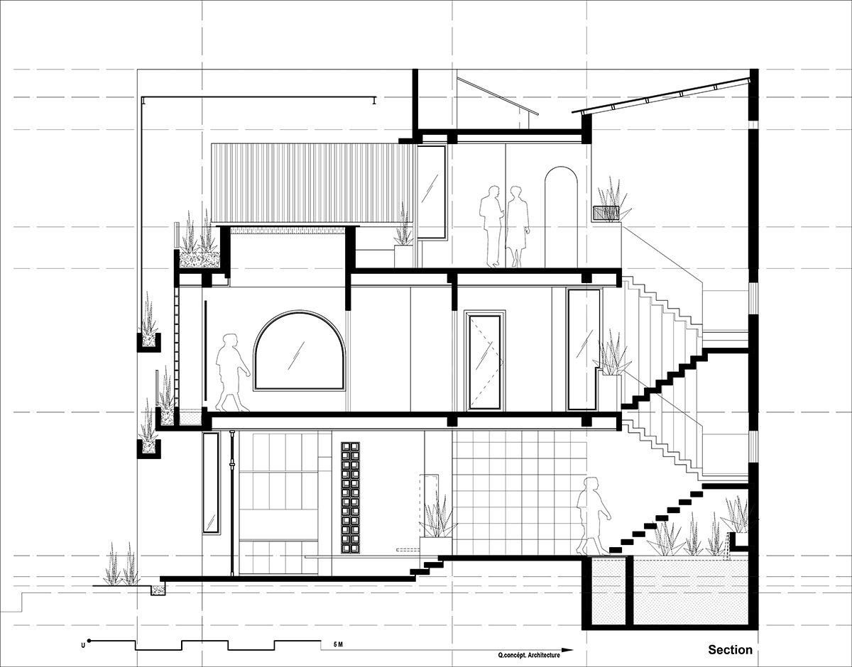
Q house là nhà của một cặp vợ chồng mới cưới, yêu thích thiên nhiên cây cối và cá ở ngoại ô Tp. Đà Nẵng. Họ đã dành nhiều thời gian để nói chuyện với kiến trúc sư thiết kế về dự án và các mong muốn của họ cho ngôi nhà này trước khi xây dựng…Tên dự án: Q HouseThiết kế:Q ConceptNăm hoàn thành: 2019Tổng diện tích xây dựng: 100m2Vị trí dự án: Hòa Xuân, Đà Nẵng, Việt NamKiến trúc sư trưởng: Trương Ngọc TânQ house là một ngôi nhà nhỏ nằm ở vùng ngoại ô TP. Đà Nẵng với diện tích đất là 100 m2. Được hình thành với ý tưởng là 1 ngôi nhà nhiệt đới, trong đó không gian và vật liệu được sử dụng một cách tối giản, thân thiên với môi trường, thích hợp với điều kiện khí hậu của miền Trung Việt Nam.Quan niệm của KTS khi thiết kế dự án là tạo ra 1 ngôi nhà với hình khối đơn giản, không gian bố trí liền mạch với nhau để phù hợp với nhu cầu của người sử dụng.Vấn đề của tất cả các nhà phố tại Việt Nam là diện tích hẹp, các ngôi nhà xây dựng liền kề nhau dẫn đến sự thiếu ánh sáng tự nhiên và đối lưu không khí tươi bên trong ngôi nhà… Trong các vấn đề kể trên, thiếu ánh sáng tự nhiên và đối lưu không khí là vấn đề quan trọng nhất và cần được giải quyết trước tiên.Do đó, KTS đã bố trí một sân trước rộng với mảng xanh lớn, kết hợp chỗ để xe như một không gian đệm từ đường phố vào đến bên trong nhà. Việc này giúp cho ngôi nhà tận dụng được nguồn ánh sáng và gió tự nhiên, cải thiện không khí lưu thông bên trong ngồi nhà. Thêm vào đó, nhờ vào khoảng sân lớn ở trước, người sử dụng được trao cho cảm giác cách biệt hơn với thế giới bên ngoài nhờ vào không khí trong lành mà khu vườn này mang tới.Cây đóng vai trò không thể thiếu trong ngôi nhà và được coi là một điểm nhấn, giúp tạo cảm giác thư giãn và giảm bớt tiếng ồn từ bên ngoài, giảm thiểu cảm giác chật chội về mặt diện tích mặt bằng trong một ngôi nhà có diện tích nhỏ.Bạn sẽ luôn cảm thấy thoải mái trong ngôi nhà này nhờ vào các nguồn năng lượng tự nhiên được mang lại do sự kết hợp giữa các vật liệu địa phương, thô và thân thiện có sẵn và những màu sắc trung tính được kiến trúc sư đã lựa chọn. Với những sự kết hợp như vậy, nó có thể giữ cho ngôi nhà có một nhiệt độ lý tưởng và cảm giác dịu dàng, thân thiện.Khi bắt đầu thiết kế Q house, gia chủ có chia sẻ sau nhiều năm sinh sống trong những căn hộ chật chội, họ muốn ngôi nhà của mình có nhiều sức sống, thân thiện và đặc biệt là một ngôi nhà khiến họ có cảm giác như một tổ ấm, một nơi họ cảm thấy được che chở, nơi họ trở về sau những giờ làm việc mệt mỏi, ngột ngạt ở văn phòng. May mắn thay, sau khi tòa nhà hoàn thành, họ đã rất hài lòng với không gian sống mới này. Nó đã đưa họ trở về với ngôi nhà mơ ước thời thơ ấu, nơi linh hồn của họ được nuôi dưỡng.Xem thêm về công trình tại đây:Nguồn: Q ConceptBT | Lê TrinhTham khảo thêm về các mẫu sản phẩm đá nhân tạo gốc thạch anh VICOSTONE: ứng dụng rộng rãi trong nội thất các công trình nhà riêng và thương mại: mặt bàn bếp, bàn trà, bàn trang điểm, bồn rửa, ốp tường, décor không gian sống.
客服
消息
收藏
下载
最近









































