查看完整案例

收藏

下载

翻译
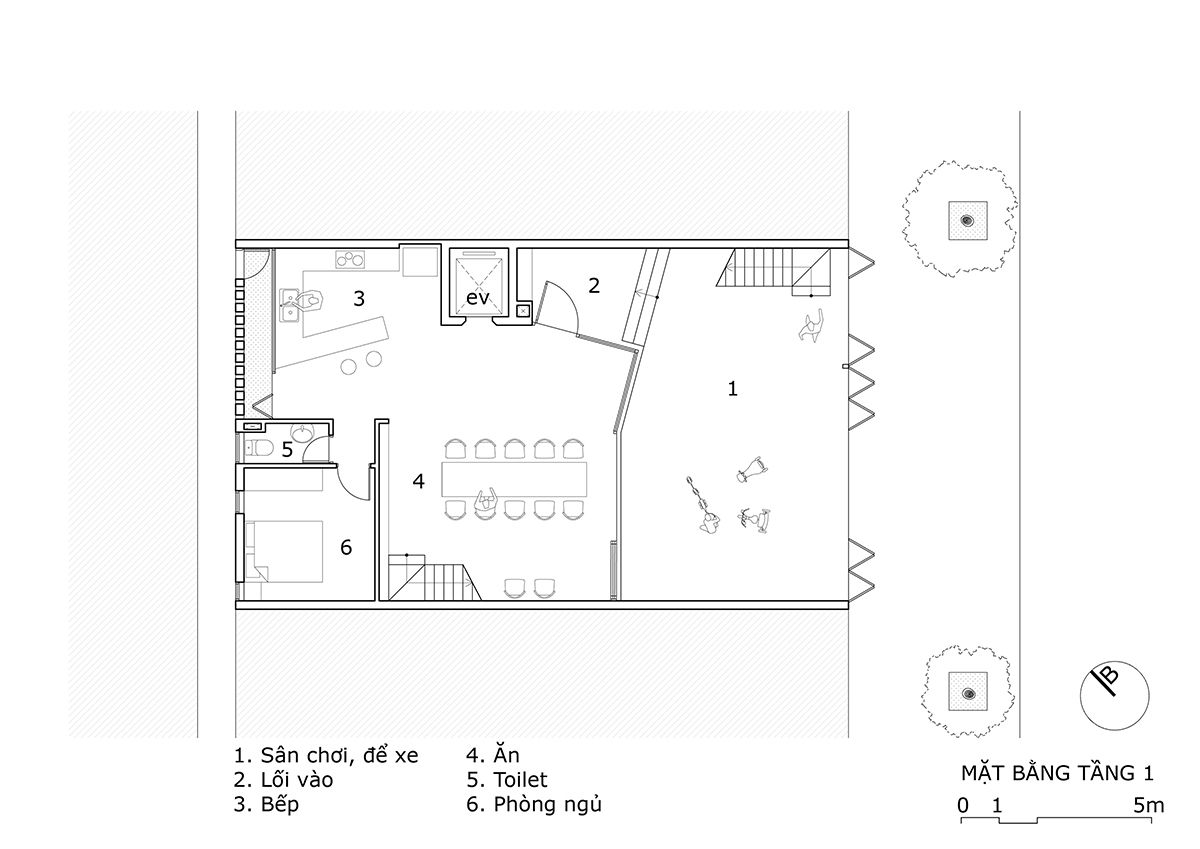
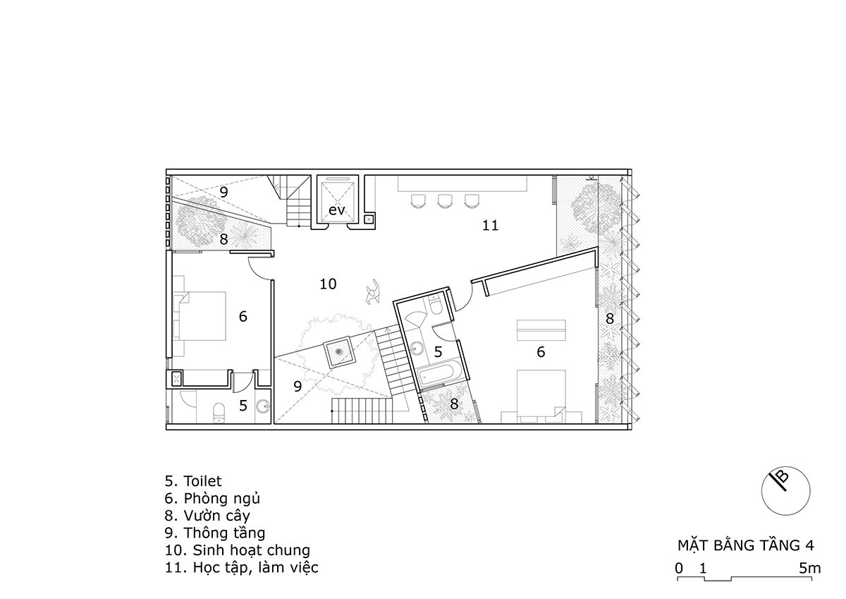
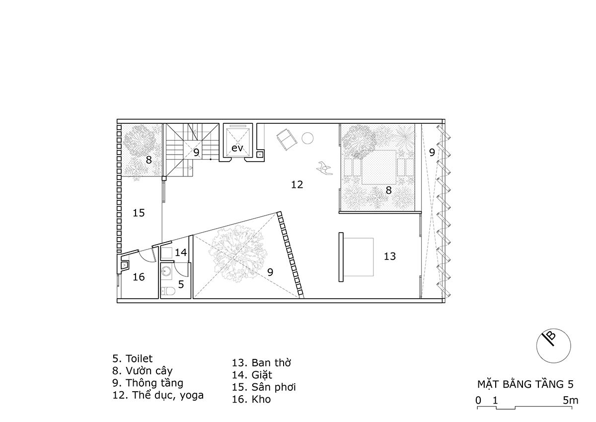
Động Nhiệt đới– ngôi nhà nằm ở trung tâm thành phố Bắc Ninh với thiết kế lấy cảm hứng từ những hiệu ứng về không gian và ánh sáng theo kiểu “hang động” trong vùng khí hậu cận nhiệt đới ẩm – khoảng trống là chất xúc tác kiến tạo cấu trúc của ngôi nhà với nhiều lớp tường để che chắn và những không gian liên thông để hút gió…Thiết kế:H&P ArchitectsVị trí công trình:Đường Hai Bà Trưng, Thành phố Bắc Ninh, tỉnh Bắc Ninh, Việt NamNhóm thiết kế:Đoàn Thanh Hà, Trần Ngọc Phương, Nguyễn Hải Huệ, Trịnh Thị Thanh Huyền, Nguyễn Đức Anh, Hồ Mạnh Cường, Nguyễn Văn Thịnh, Nguyễn Thị Ngọc Mai.Diện tích khu đất:160 m2 (9,7m X 16,5m)Tổng diện tích sàn:700 m2Vật liệu chủ đạo:Gạch nung, bê tông, kínhHoàn thành:tháng 1/2019Nhiếp ảnh:Nguyễn Tiến ThànhNgôi nhà nằm ở trung tâm thành phố Bắc Ninh, dành cho đại gia đình có 4 thế hệ cùng chung sống.Thiết kế lấy cảm hứng từ những hiệu ứng về không gian và ánh sáng theo kiểu “hang động” trong vùng khí hậu cận nhiệt đới ẩm,để đưa lại những trải nghiệm tích cực & sống động cho các giác quan của người sử dụng: thấp (ở lối vào), rộng & cao (ở bên trong), hẹp (các ngóc ngách), mở ra ngoài (hệ cửa); sáng đều (ở bên ngoài), tối dần (vào bên trong), những luồng sáng (từ trên cao), thảm thực vật xen kẽ, ..Công trình có tên gọi là Động Nhiệt đới (Tropical Cave), khoảng trống là chất xúc tác kiến tạo cấu trúc của ngôi nhà với nhiều lớp tường để che chắn và những không gian liên thông để hút gió. Các tầng chức năng được kết nối ngẫu nhiên ở từng vị trí cầu thang khác nhau – tạo ra “hành trình trải nghiệm” luôn tươi mới với các góc nhìn thú vị và hình ảnh không lặp lại. Không gian chuyển tiếp đa chiều từ chung – bán riêng tư – riêng tư với thảm thực vật (cây, rau) đan xen.Mặt đứng phía trước có hai hệ cửa lớn (mỗi hệ gồm 10 cánh cửa cao 6,6m) có thể đóng-mở (thở) dễ dàng bằng tay qua vô-lăng và bộ phận trợ lực. Giếng trời, hệ cửa và thảm thực vật giúp điều tiết vi khí hậu (nắng, mưa, gió, khói bụi, tiếng ồn), thiết lập trường nhìn tùy biến cho người sử dụng và làm mờ ranh giới giữa bên trong – bên ngoài; giữa kiến trúc – cảnh quan.Trong thời kỳ đô thị hóa ồ ạt hiện nay, những ngôi nhà trong đô thị đang dần tự bóp nghẹt, tự cô lập, cắt đứt sự liên hệ thân thiện với bối cảnh môi trường xung quanh khiến cho con người trở nên bất an trong chính nơi họ ở.Động Nhiệt đớira đời như một giải pháp giúp cảnh tỉnh tình trạng ngột ngạt đó, tạo nên một nơi chốn để gia chủ lại có thể an trú, lại có thể thở cùng hơi thở của ngôi nhà đương đại – trên quan điểm sống hài hòa với môi sinh.Xem thêm ảnh công trình tại đây:Nguồn: H&P ArchitectsBT | Lê TrinhTham khảo thêm về các mẫu sản phẩm đá nhân tạo gốc thạch anh VICOSTONE: ứng dụng rộng rãi trong nội thất các công trình nhà riêng và thương mại: mặt bàn bếp, bàn trà, bàn trang điểm, bồn rửa, ốp tường, décor không gian sống.
客服
消息
收藏
下载
最近











































