查看完整案例

收藏

下载

翻译
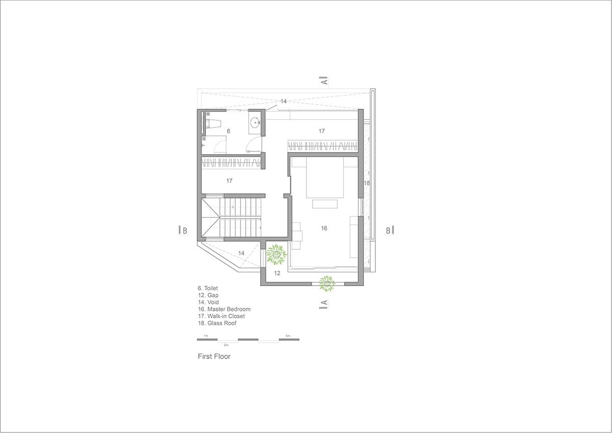
NDC house được xây dựng mới trên chính mảnh đất cũ của gia đình để lại, nằm trong một con hẻm nhỏ tại trung tâm quận 1 – một khu phố tồn tại từ lâu bao gồm những con hẻm nhỏ dích dắc và những ngôi nhà xây dựng không đồng bộ.Địa điểm:Quận 1, Thành phố Hồ Chí Minh, Việt NamThiết kế:Tropical SpaceKiến trúc sư:Nguyễn Hải Long, Trần Thị Ngụ Ngôn, Nguyễn Anh Đức, Nguyễn Thị Thủy, Trịnh Thanh TúNăm hoàn thành:2016Diện tích:80 m2Diện tích xây dựng:300 m2Vật liệu:bê tông, đá mài, gạch và gỗ tự nhiênPhoto:Quang DamNDC house được xây dựng trên một khu đất có lối vào hẹp nhưng có phần nở hậu vuông vức. Các KTS củaTropical Spacetận dụng hình dạng đặc biệt của khu đất để tạo ra thiết kế thông thoáng cho tất cả các hướng, tất cả các không gian của ngôi nhà đều được thông thoáng tự nhiên, đồng thời tạo cho ngôi nhà có hình khối zic zac hài hoà với không gian khu phố cũ.Tầng trệt của NDC house là nơi tiếp khách, bếp và bàn ăn lớn. Giải pháp thiết kế kết nối giữa khe sáng, tầng lửng và không gian thông tầng lớn kết hợp với việc mở ô cửa lớn kết nối giữa sân trước.Khoảng thông tầng và sân sau nhằm tạo ra các vùng không gian thay đổi về khối tích để đưa gió và ánh sáng tự nhiên vào nhà. Sự thay đổi về không gian này tạo cảm giác rộng rãi và thoáng đãng, ngồi ở vị trí tầng trệt có thể bao quát hết toàn bộ không gian của NDC house.Tầng lửng của NDC house là không gian sinh hoạt gia đình thường xuyên, nơi cả nhà cùng chơi đàn piano. Tấm phản gỗ cũng nơi đọc sách và thư giãn.Lầu 1 dành cho phòng ngủ master đầy đủ tiện nghi như phòng tắm, phòng quần áo lớn và 1 góc làm việc nhỏ. Lầu 2 gồm phòng thờ và 2 phòng ngủ cho 2 em bé.Gần như toàn bộ đồ nội thất trong nhà làm bằng gỗ từ cây trò chỉ xẻ ra và sấy khô, phần gỗ lớn được chọn làm bàn ăn, tấm phản gỗ ngồi đọc sách ở tầng lững và giường ngủ lớn phòng master. Bề mặt gỗ chỉ cần lau dầu lanh nhẹ để bảo vệ gỗ vừa giữ được màu sắc và vân gỗ tự nhiên.Ngôi nhà phối hợp hài hòa giữa vật liệu bê tông trần và gạch nung và gỗ, vật liệu thô mộc tạo cho ngôi nhà tuy được xây dựng mới nhưng không tạo cảm giác xa lạ mà như đã tồn tại ở đây từ rất lâu.Nguồn:Tropical SpaceBT: Lê Trinh
客服
消息
收藏
下载
最近




































