查看完整案例

收藏

下载

翻译
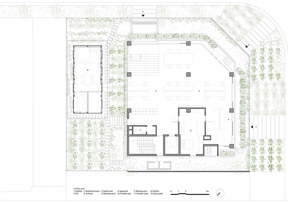
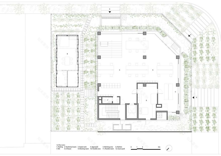
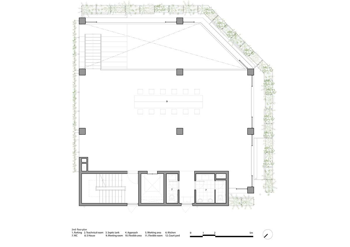
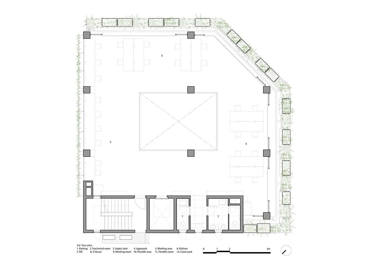
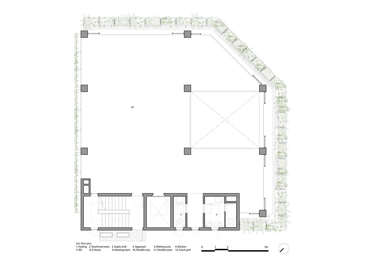
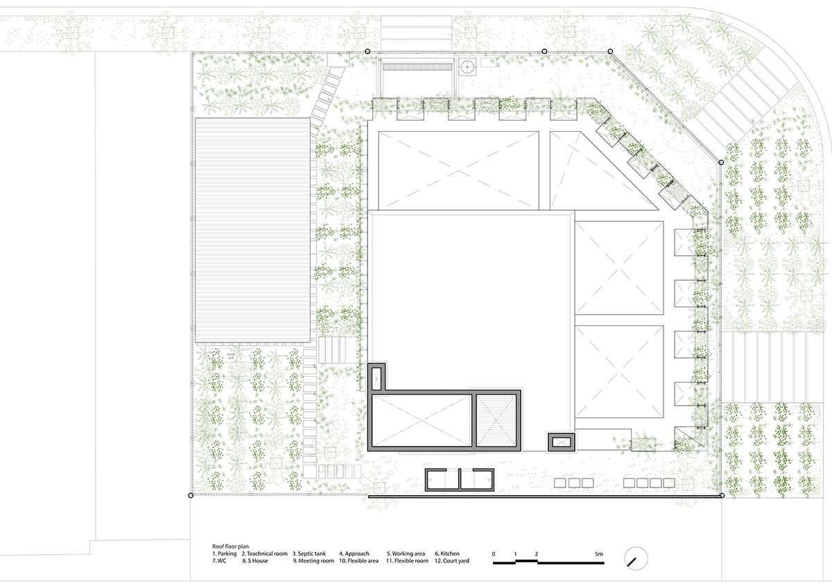
Trong bối cảnh các thế hệ thành thị mới đang mất dần mối liên hệ với mẹ thiên nhiên, “Uban Farming Office” là một nỗ lực để thay đổi tình trạng này. Mục tiêu của dự án là trả lại không gian xanh cho thành phố và thúc đẩy sản xuất thực phẩm an toàn.Tọa lạc tại một khu vực mới phát triển ở Thành phố Hồ Chí Minh, dự án văn phòng cho thấy khả năng phát triển đô thị theo phương thẳng đứng. Mặt tiền của căn nhà bao gồm các hộp trồng cây treo với nhiều thảm thực vật địa phương khác nhau, cho phép chúng có đủ ánh sáng mặt trời. Cách tiếp cận xanh này sẽ cung cấp thực phẩm an toàn và môi trường thoải mái với mức tiêu thụ năng lượng tối thiểu, góp phần vào tương lai bền vững của thành phố.Chiến lược môi trường“Trang trại thẳng đứng” tạo ra vi khí hậu thoải mái trong toàn bộ tòa nhà kết hợp với kính, thảm thực vật lọc ánh nắng trực tiếp và làm sạch không khí. Nước mưa được tích trữ lại và dùng vào việc tưới cây. Ở hướng Bắc, ngược lại so với hướng đón gió, được thiết kế làm tường đặc để đảm bảo hướng phát triển trong tương lai của công trình đồng thời các khoảng mở nhỏ được bố trí để tăng cường việc thông gió chéo. Bức tường này được làm bằng tường gạch hai lớp với lớp không khí bên trong để cách nhiệt tốt hơn. Tất cả những điều này góp phần làm giảm việc sử dụng điều hòa.Hệ thống canh tác“Trang trại thẳng đứng” được thiết kế cho thảm thực vật với phương pháp xây dựng đơn giản – nó bao gồm kết cấu bê tông, giá đỡ bằng thép và các hộp trồng cây mô-đun hóa được treo ở đó. Hộp trồng cây có thể thay thế được nên có thể bố trí linh hoạt phù hợp với chiều cao và điều kiện sinh trưởng của cây, cung cấp đủ ánh sáng mặt trời. Cùng với khu vườn trên mái và mặt đất, hệ thống cung cấp tới 190% tỷ lệ xanh cho diện tích khuôn viên, tương đương với 1,1 tấn thu hoạch. Nhiều loại thực vật địa phương có thể ăn được như rau, thảo mộc và cây ăn quả được lựa chọn góp phần vào sự đa dạng sinh học của khu vực. Chúng được duy trì bằng phương pháp xử lý hữu cơ.Với KTS Võ Trọng Nghĩa, thiết kế xanh luôn là nỗi ám ảnh trong mỗi công trình kiến trúc. Tại dự án “Uban Farming Office”, KTS mang lại một phong cách truyền thống hiện đại, tạo ra một thứ kiến trúc hòa hợp với thiên nhiên, để người ta không cần sống trong máy điều hòa.Xem đầy đủ hình ảnh trong bài tại đây:Biên tập: Phương ThảoXEM THÊM:
客服
消息
收藏
下载
最近









































