查看完整案例

收藏

下载

翻译
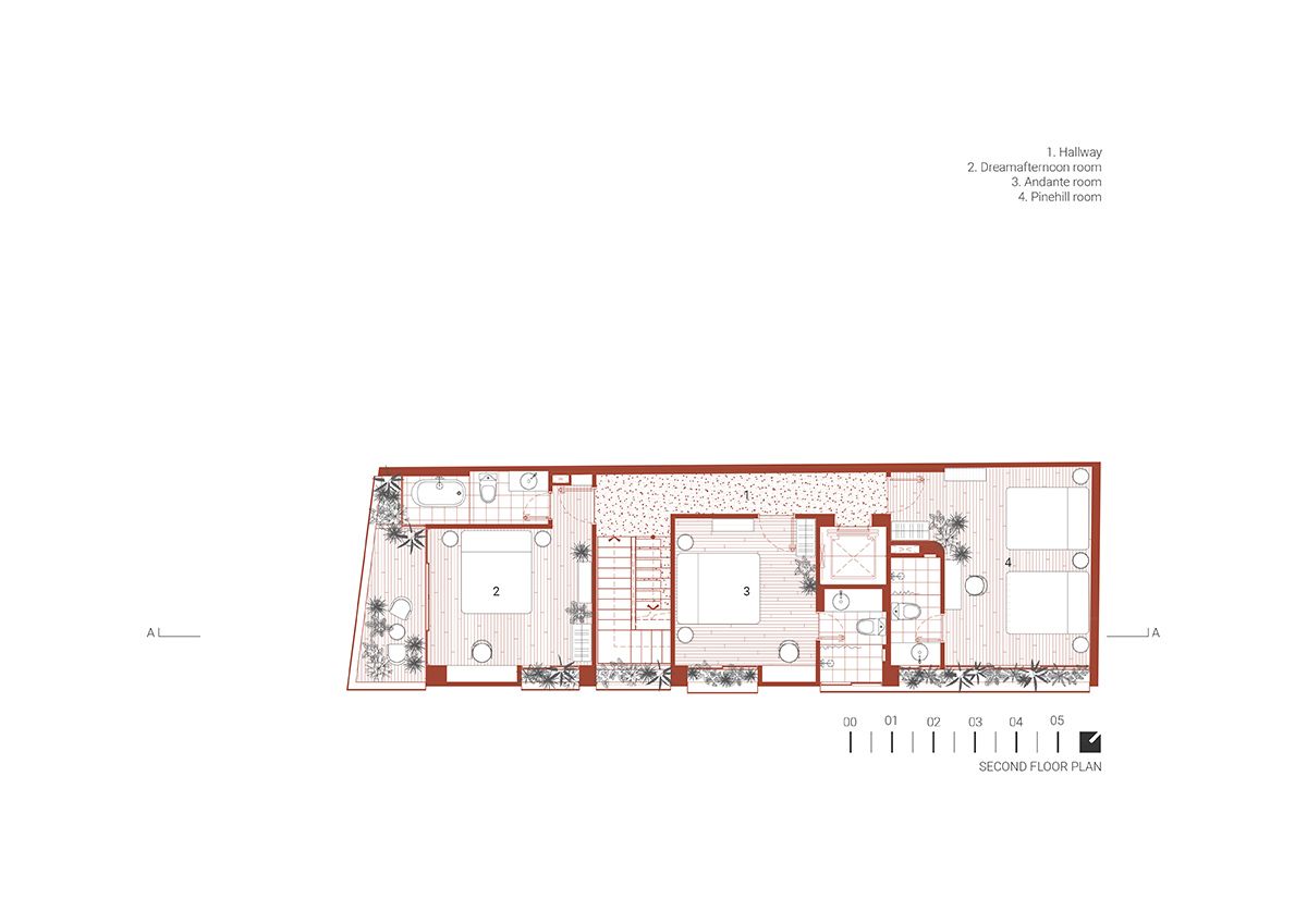
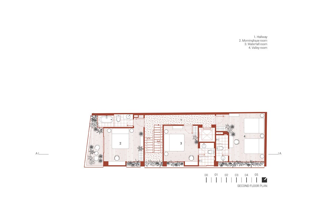
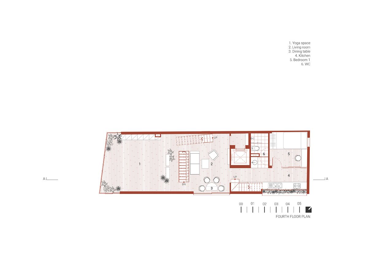
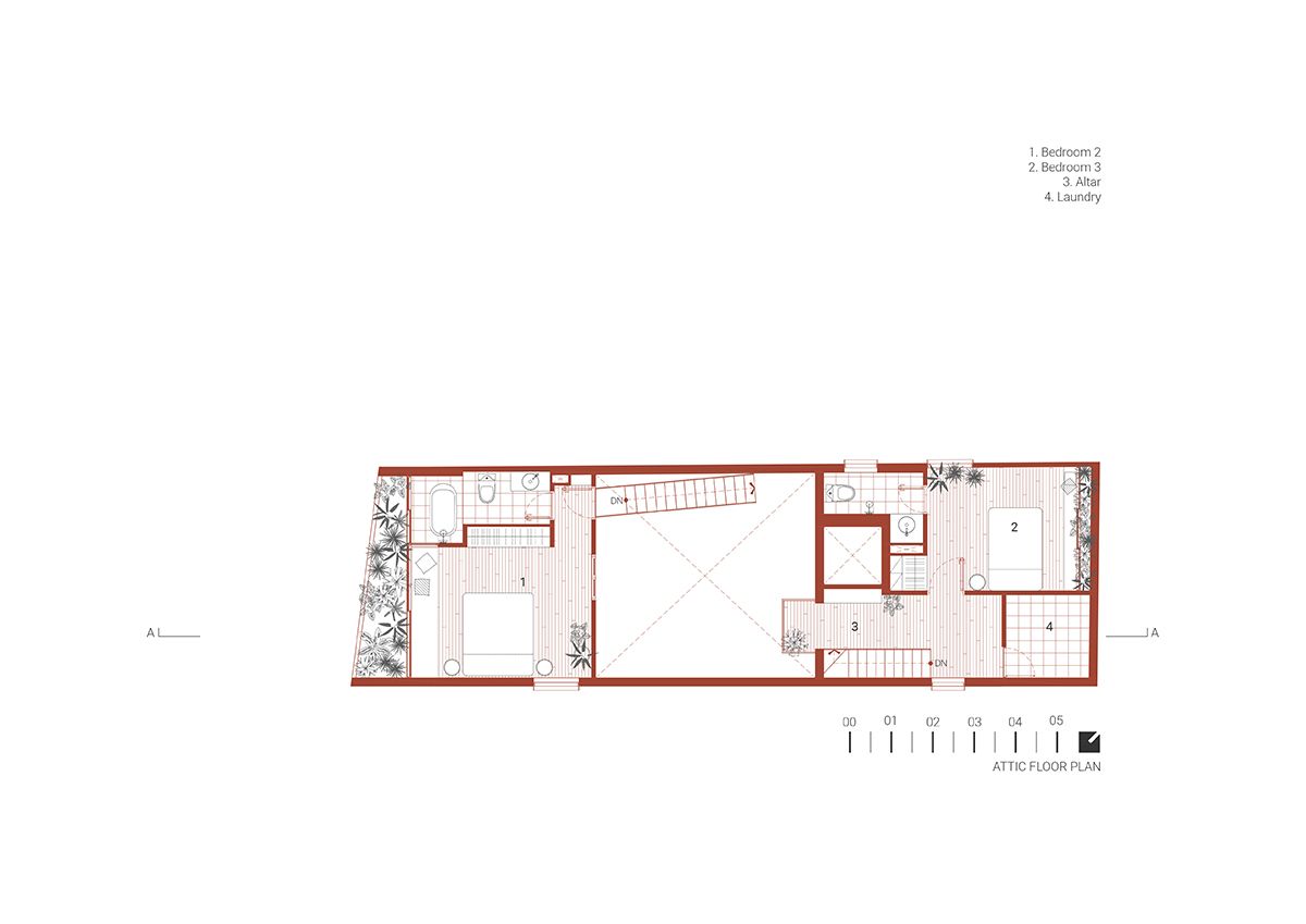
The Note Đà Lạt là một công trình khách sạn kết hợp với nhà ở. Lấy ý tưởng từ những con dốc, thác nước, đồi thông, KTS đã tái hiện một “Đà Lạt thu nhỏ” để dành tặng cho những người yêu thương mảnh đất này.Công trình thể hiện tình yêu của người con đối với quê hương của mình. Với mục đích muốn tái hiện và lưu giữ những kỉ niệm tuổi thơ, để dành tặng cho người mình thương yêu và người yêu thương mảnh đất Đà Lạt.Để tìm cảm hứng cho một bức tranh toàn cảnh về Đà Lạt, nhóm thiết kế đã mượn những gì Đà Lạt nhất, từ con dốc, đồi thông, thác nước,… đến cái nắng, cái gió, cái lạnh,…rồi hình ảnh ngôi nhà gỗ nhỏ, ngọn đồi xa và hoa văn của dân tộc Co-ho chil.Mỗi hình ảnh vay mượn tạo nên những chất liệu, màu sắc, đường nét và chi tiết khác nhau cho từng không gian.Và cứ thế The Note Dalat được hình thành.Xem đầy đủ hình ảnh công trình tại đây:Biên tập: KAXEM THÊM:
客服
消息
收藏
下载
最近































































