查看完整案例

收藏

下载

翻译
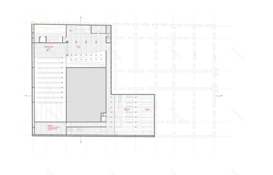
Palacio Pereira như một “nhân chứng” của kiến trúc thời kỳ Phục hưng Pháp, phản ánh chủ nghĩa chiết trung thịnh hành thời gian đó. Trải qua thời gian, công trình đã xuống cấp và nhiều lần đổi chủ. Cuối cùng được Chính phủ Chile mua lại và tiến hành tu sửa để hài hoà với bối cảnh đương đại.Palacio Pereira là lâu đài tân cổ điển lịch sử tọa lạc tại giao lộ đường San Martín và Huerfanos, trung tâm thành phố Santiago, Chile. Toà nhà được xây dựng vào nửa sau thế kỉ 19 và được công nhận Di tích lịch sử năm 1981. Tuy nhiên sau 30 năm, toà nhà đã xuống cấp và bị bỏ hoang trong vài thập kỷ.Năm 2011, chính phủ đã mua lại tòa nhà để trùng tu thành trụ sở điều hành các uỷ ban và dịch vụ của Công ước lập hiến. Nhà nước cũng kêu gọi cuộc thi thiết kế kiến trúc quốc gia để phục hồi lại kiến trúc, kết cấu và nội thất cho tòa nhà, vẫn đảm bảo các yếu tố di sản.Nhóm KTS Cecilia Puga, Paula Velasco và Alberto Moletto đã giành chiến thắng trong cuộc thi và kết hợp với Bộ Công trình Công cộng thông qua Cục Kiến trúc để đại tu công trình.Việc cải tạo cung điện Palacio Pereira khởi công tháng 7 năm 2016 với kinh phí hơn 16 tỷ USD. Mục tiêu là khôi phục lại toà nhà hiện có, đồng thời tạo ra không gian mới hài hoà với công trình và môi trường cũ. Công trình có tổng diện tích 6.467,45m2, được chia thành hai phần, một dinh thự cũ diện tích 1.792,38m2 và phần mở rộng tương đương 4.675,07m2.Tòa dinh thự có kết cấu bê tông cốt thép bảy tầng, gồm 2 tầng hầm và 5 tầng trên.Palacio Pereira hiện đang trong giai đoạn hoàn thiện cuối cùng của kế hoạch tu sửa 10 năm dài hạn. Đây cũng là dấu mốc quan trọng nhằm quản lý, phục hồi và bảo vệ di sản quốc gia. Song song với quá trình tu bổ, những phần được hoàn thiện sẽ mở cửa để đón du khách thông qua bảng quảng cáo công cộng quảng bá sâu rộng bao gồm triển lãm, các hoạt động thăm quan, khán phòng, quán cà phê, hiệu sách và trung tâm tư liệu.Tầng trệt cung điện là không gian mở đón công chúng tới tham quan và gồm nhiều không gian chức năng tổ chức các hoạt động triển lãm, Trung tâm Tư liệu của Hội đồng Di tích Quốc gia, một quán cà phê và hiệu sách. Ngoài tầng trệt có một khán phòng là cơ quan làm việc của Bộ Văn hoá, với sứ mệnh quảng bá di sản văn hoá vật thể và phi vật thể, văn hoá dân gian, văn hoá truyền thống và văn hoá bản địa.Quá trình khôi phục lại toà nhà bao gồm gia cố và sửa lại các cấu trúc đã xuống cấp, khôi phục mặt tiền và nội thất tòa nhà. Các vật liệu được sử dụng như thạch cao, gỗ, kim loại đồng điệu với phong cách của tòa nhà. Hơn 200 công nhân đã tham gia vào dự án, gồm thợ nề, thợ mộc, thợ thạch cao, thợ kim loại, thợ phục chế và rất nhiều các chuyên gia kiến trúc. Toà nhà khi hoàn thành sẽ được bàn giao lại cho Ban Giám đốc Kiến trúc Bộ Công trình xây dựng. Các trang thiết bị cho các văn phòng hiện trong giai đoạn uỷ quyền cuối cùng.Sau trùng tu, Palacio Pereira vẫn giữ được nét kiến trúc chiết trung lịch sử như ban đầu xây dựng nhưng cũng đổi mới với nhiều chi tiết đương đại, hài hoà hơn với bối cảnh. Có những yếu tố của kiến trúc bền vững, tương phản hữu cơ với phong cách tân cổ điển của cung điện, khách tham quan cảm nhận được cái mới và cái cũ đan xen, mang đến sự liên quan và giá trị đặc biệt cho tòa nhà ban đầu.Xem đầy đủ hình ảnh công trình tại đây:Biên dịch: Vũ Hương | Nguồn: ArchdailyXEM THÊM:
客服
消息
收藏
下载
最近







































