查看完整案例

收藏

下载

翻译
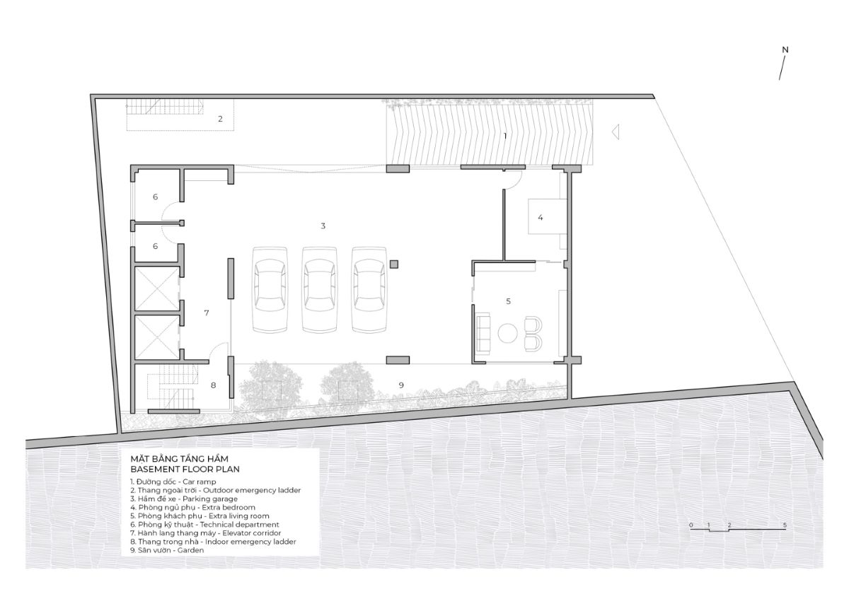
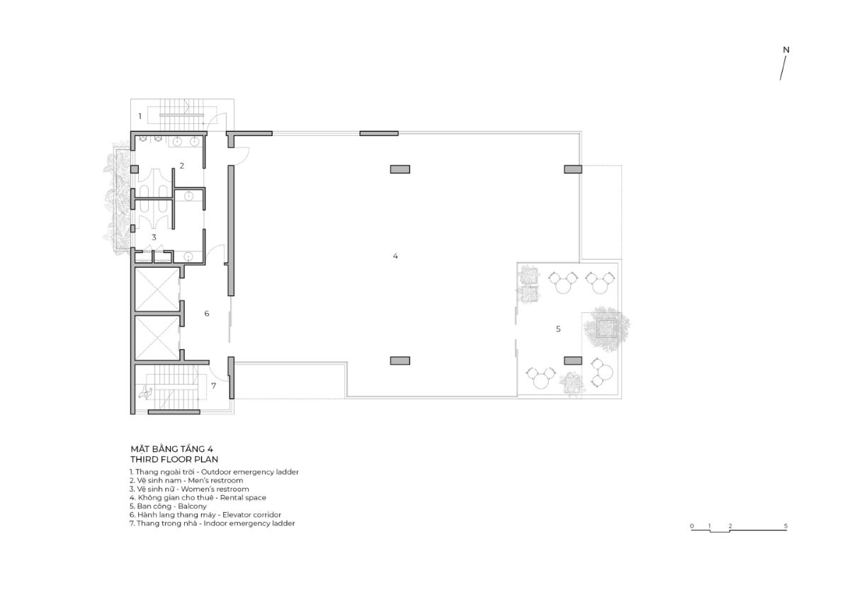
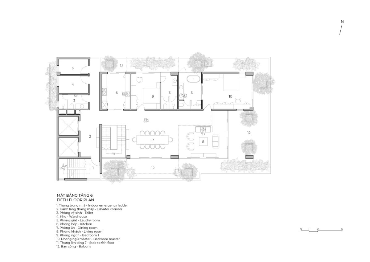
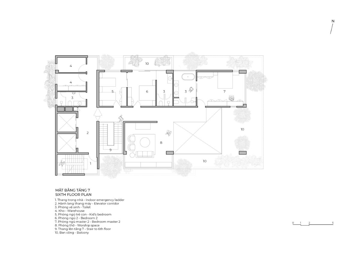
Nằm ở trung tâm thành phố, Việt Trì House Complex gây ấn tượng với thiết kế hiện đại, thô mộc và gần gũi với thiên nhiên. Công trình gồm 9 tầng với chức năng kết hợp nhà ở và các dịch vụ khác như nhà hàng, coffee, văn phòng.Thuyết minh của Kiến trúc sư:Ý tưởng chính của công trình là sự đan xen giữa các yếu tố: công năng và hình thức, kiến trúc và thiên thiên, bên trong và bên ngoài, cây xanh và ánh sáng, giữa vật liệu kính và bê tông …. Hơn thế, đó còn là sự tương tác giữa công trình và bối cảnh xung quanh, giữa con người và xã hội…. Các yếu tố này luôn tồn tại trong một công trình, như âm và dương, cái này làm nền cho cái kia, cái này đan xen vào cái kia, tạo ra một thể thống nhất, cân bằng.Về công năng, đây là một tòa nhà tổ hợp, có rất nhiều chức năng khác nhau. Tầng hầm là khu vực để xe, kho dự trữ. Tầng 1 là khu vực lối vào chính, sảnh chung của tòa nhà dẫn vào khu vực thang máy và thang bộ, ngoài ra còn có khu vực coffee trong nhà và ngoài trời. Tầng 2,3,4,5 là không gian dịch vụ cho thuê văn phòng, co-working…. Tầng 6, 7 là nhà ở. Tầng 8, 9 là tầng coffee trên mái, kết hợp sân vườn.Về hình thức, xuất phát từ vị trí và công năng của công trình, mặt đứng công trình được tạo ra từ sự kết hợp giữa các khối chức năng và ban công trồng cây xanh, các không gian sử dụng trong nhà được bao phủ bởi kính trong suốt, nhằm khai thác tối đa tầm nhìn từ bên trong và ánh sáng tự nhiên. Sự đan xen, thò ra thụt vào của các khối chức năng, tạo nên một không gian sinh động trên mặt đứng, đồng thời tạo ra sự kết nối giữa các tầng với nhau.Công trình sử dụng vật liệu chủ yếu là bê tông trần, kính và cây xanh. Tạo nên một hình thức kiến trúc hiện đại, đơn giản và thô mộc, gần gũi thiên nhiên. Đồng thời vật liệu bê tông trần có thể làm giảm chi phí hoàn thiện và bảo trì hàng năm. Nhằm hướng tới một kiến trúc bền vững và đơn giản trong việc sử dụng, vận hành tòa nhà.Hệ thống cây xanh được trồng trong các chậu bằng bê tông, có sử dụng hệ thống tưới nước tự động, và dễ dàng thay thế, chăm sóc khi cần thiết. Các loại cây được lựa chọn trồng chủ yếu là cây địa phương, cây ăn quả, cây hoa và rau ăn hàng ngày. Tạo nên một không gian thiên nhiên đa dạng và phong phú về chủng loại, bao bọc lấy tất cả các không gian sử dụng của tòa nhà.Trong dự án này, Kiến trúc sư mong muốn xây dựng một công trình tuy phức tạp nhưng lại được tạo nên từ những thứ đơn giản, và gần gũi như cây xanh và ánh sáng, vật liệu chính chỉ có bê tông trần và kính trong suốt. Tòa nhà là một sự kết hợp hài hòa giữa các yếu tố: công năng và hình thức, trong và ngoài, trên và dưới, giữa kiến trúc, con người và thiên nhiên. Công trình này rất đơn giản, theo nghĩa là không thể bỏ đi thứ gì được nữa. Theo thời gian nó sẽ giúp khuyến khích con người hạn chế các nhu cầu tiêu thụ vật chất, tập trung vào các giá trị tinh thần qua việc tái kết nối con người với nhau và với thiên nhiên. Đó là những gì chúng tôi nghĩ là giá trị đích thực và bền vững.Biên tập: KAXEM THÊM:
客服
消息
收藏
下载
最近





























































