查看完整案例

收藏

下载

翻译
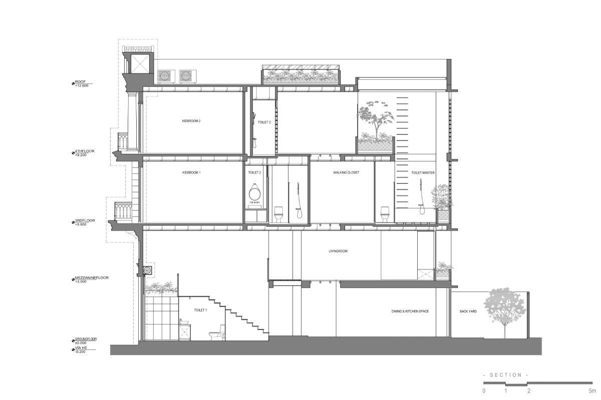
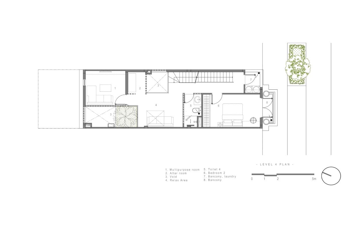
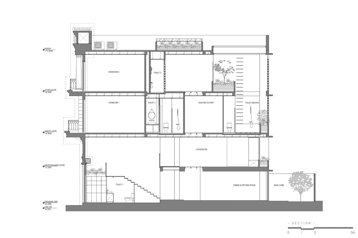
M9-House là dự án cải tạo nhà ở đô thị với những thay đổi khéo léo, bổ sung những khoảng thông tầng, mảng gạch kính, đan xen vật liệu thô mộc tinh tế, tạo nên không gian sống giàu cảm xúc và mang dấu ấn riêng cho chủ nhân.Thuyết minh của kiến trúc sư:Cải tạo nhà ở trong khu đô thị xây sẵn luôn là bài toán khó nhưng không kém phần thú vị cho mỗi kiến trúc sư. Với tốc độ tăng trưởng mạnh mẽ của các khu đô thị, nhà ở xây sẵn đáp ứng được nhu cầu của đại đa số người dân với tốc độ xây dựng nhanh chóng. Tuy nhiên, các căn nhà xây sẵn thường thể hiện sự bất cập trong không gian sống, thiếu sự đa dạng và cá nhân hóa.Mặt tiền căn nhà giữ nguyên hiện trạng vốn có, tuân thủ quy hoạch và sự đồng bộ của khu dân cư. Nhóm thiết kế thay đổi vị trí thang, thêm vào nhiều khoảng thông tầng, mảng gạch kính, sử dụng nhiều loại vật liệu thô mộc tạo sự sinh động trong mỗi không gian.Khoảng thông tầng nhỏ giữa nhà kết hợp cầu thang dọc theo chiều dài và mảng gạch kính, tăng sự giao thoa giữa không gian và ánh sáng. Nhóm thiết kế tận dụng một cạnh tường không giáp nhà bên cạnh, thay thế bằng tường gạch kính tăng sáng cho không gian bên trong.Ở tầng lửng, không gian sinh hoạt chung là nơi kết nối mọi thành viên trong gia đình. Nơi đây được tô điểm bởi cây xanh, giếng trời và ánh sáng từ nhiều nguồn rọi tới. Nội thất đặc trưng gỗ tự nhiên cũng tạo nên vẻ mộc mạc cho không gian sống.Điểm nhấn của ngôi nhà là một không gian nhỏ nhưng khá đặc biệt – khoảng thông tầng xuyên mái từ khu vệ sinh của phòng ngủ master. Có lẽ có ít căn nhà phố có thể chấp nhận đánh đổi nhiều không gian như vậy cho một khu vệ sinh. Thế nhưng hiệu quả mang lại thật sự đáng giá bởi khu vệ sinh cũng vừa là nơi thư giãn, xoa tan đi những mệt mỏi.Mỗi căn nhà ở là một bài toán khác nhau, tính cá nhân trong từng không gian luôn được nhóm thiết kế lưu tâm. Ngôi nhà không chỉ là nơi để ở, mà còn là nơi tận hưởng cuộc sống trong từng khoảnh khắc.Xem đầy đủ hình ảnh M9-House:XEM THÊM:———————————————————————
客服
消息
收藏
下载
最近




























































