查看完整案例

收藏

下载

翻译
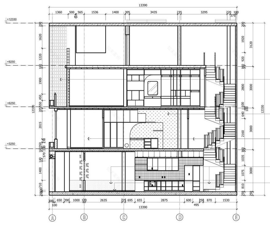
Nghieu’s House là một dự án cải tạo nhà ở đô thị, được thiết kế đơn giản mà tinh tế, mang đến không gian sống tươi sáng, hài hòa giữa ánh sáng tự nhiên cùng những vật liệu nội thất mang tính hoài niệm.Ý tưởng cải tạo mặt tiền dựa trên mong muốn của chủ nhà về một khối nhà gọn gàng và tươi sáng nhưng không loại bỏ các ô cửa hiện trạng.Khối nhà được bo cong mềm mại, kết hợp gạch kính lấy sáng, bông gió để đón gió, tránh ánh nắng trực tiếp. Cùng với đó, cây xanh, các khoảng lùi ban công và tầng thượng được kết hợp để mặt nhà hướng Tây không đón trực tiếp nắng nóng vào không gian bên trong.Sự riêng tư cũng như vật liệu nội thất mang tính hoài niệm, đón sáng nhiều nhưng không quá phô trương cũng là một yêu cầu đặc biệt khác từ chủ nhân ngôi nhà.Hiện trạng nhà với 2 vị trí thang của tầng trệt lên tầng 1 lệch với vị trí thang của các tầng còn lại nên diện tích sử dụng cũ và vị trí nhà vệ sinh chung cho khách không còn phù hợp. Do đó, việc điều chỉnh lại bố cục cũng như cải tạo được tập trung nhiều nhất ở tầng trệt.Với mục đích và công năng dành cho số lượng ít người cũng như thói quen sinh hoạt của gia chủ, không gian được bố trí vật dụng xuyên suốt và cầu thang hiện trạng được tháo dỡ, thay vào đó là vị trí thang mới ở cuối nhà.Di chuyển lên tầng 1, gia chủ dùng hết một mặt sàn cho một không gian phòng ngủ, bao gồm: 1 khu thay đồ – thư giãn, 1 khu ngủ và 1 nhà vệ sinh, công năng này được lặp lại cho tầng 2.Không gian phòng ngủ tầng 1 dành cho người em gái cùng những “người bạn” là những chú mèo, mang lại cảm giác tươi trẻ với thiết kế kệ liền bàn làm việc, trang điểm có màu sắc nhẹ nhàng, chất liệu tương đối đơn giản nhưng được chấm phá bằng chi tiết cũng như kiểu dáng nội thất rời sinh động, linh hoạt và dễ dàng điều chỉnh, thay đổi khi cần thiết.Tầng 2 được sử dụng làm không gian sinh hoạt cho gia chủ là cặp vợ chồng trẻ cùng 1 chú chó tên Tí Hon và 4 chú mèo.Trong không gian này, giếng trời có sẵn theo hiện trạng được giữ lại để tận dụng đưa ánh sáng và thông gió cho tầng 2 vì phần mặt tiền được cải tạo dùng cho trang trí nên việc đưa hơi nóng và tạo luồng thông hơi cho suốt chiều dài căn nhà được ưu tiên.Đây cũng là điểm nhấn đặc biệt của riêng ngôi nhà bởi thông thường giếng trời được bố trí xuyên suốt ống nhà, nhưng riêng tầng này có thêm một ô trống lớn làm tầng 2 lại được ánh sáng tự nhiên tiếp cận nhiều nhất, tăng thêm nét mềm mại cho ngôi nhà.Liền kề giếng trời là khu vệ sinh chia làm 2 phòng tắm – phòng vệ sinh tách biệt, thiết kế bằng gạch kính với góc bo cong dịu dàng và bắt sáng.Xem đầy đủ hình ảnh Nghieu’s House:XEM THÊM:
客服
消息
收藏
下载
最近






















































