查看完整案例

收藏

下载

翻译
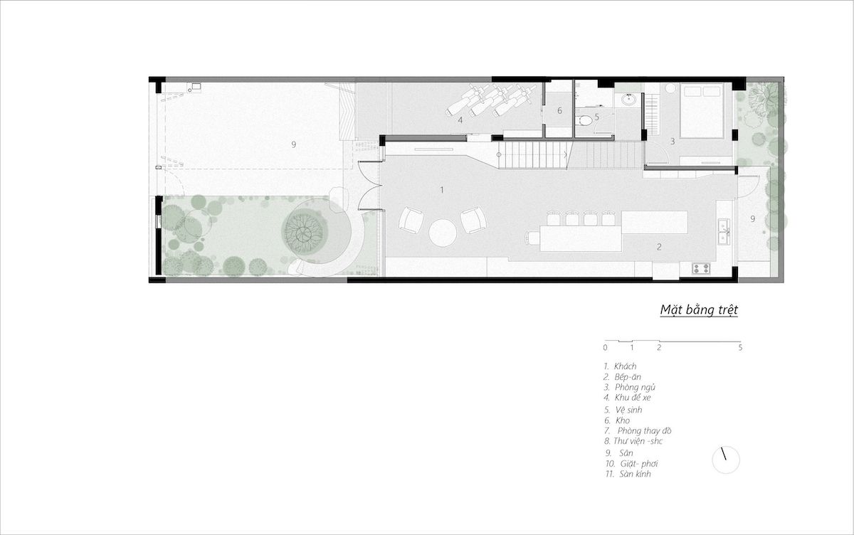
Với diện tích xây dựng 110 m2, Nhà Tam Châu gây ấn tượng với thiết kế nhấn mạnh đến mối quan hệ của người ở với không gian thông qua sự thân thuộc của vật liệu, của hàng hiên và khoảng không gian đệm,từ đó tạo ra sự an trú gắn kết người ở với nơi chốn.Ngôi nhà được đặt tên với tên đường Tam Châu – nơi gia đình và dòng họ sinh sống, gắn bó từ nhiều năm. Nhà Tam Châu nằm cuối con dốc mà dân ở đây hay gọi là “dốc Đà Lạt”, có lẽ vì triền dốc và những ngôi nhà xây bó nền bằng đá hộc.Nhà Tam Châu có diện tích xây dựng 110 m2 trên khuôn viên đất 175 m2 dành cho ba gia đình với ba thế hệ cùng chung sống, vì thế nhóm thiết kế muốn một bầu không khí thân mật gần gũi giữa các thành viên trong không gian mở đan cài nhưng vẫn có được sự tôn trọng riêng tư khi cần thiết.Không gian trệt trải dài được liên kết lên không gian phía trên bằng khoảng thông tầng rộng và dài – trong khoảng thông tầng này, một khoảng đệm thư viện thay đổi về cao độ, chất liệu tạo ra sự khác biệt về độ cao của đường ngắm làm thay đổi độ mở rộng không gian và độ che phủ trong sự đa dạng của các lớp không gian. Từ phòng ngủ phía trước có thể tự do lên vườn trên sân thượng bằng cầu thang riêng, hay phòng ngủ lầu 2 có thể ra thẳng terrance riêng phía trước mà không cần phải đóng mở cửa.Ngôi nhà được định hình 1 trệt và 1 lầu để hài hòa trong bối cảnh mật độ xây dựng khá thấp của khu dân cư, phần lầu 2 được ẩn đi như một phần áp mái dành riêng cho thành viên trong gia đình mong muốn có sự riêng tư nhất định.Mặt đứng nhà hướng Tây nên ngoài cây trồng trước nhà (tạo bóng đổ), lớp vỏ của hệ cửa lam gỗ, các mảng tường trên mặt đứng vừa phân vị không gian vừa che nắng xiên, hay khoảng lùi của hàng hiên ở lầu 2.Thông qua công trình này đội ngũ KTS muốn nhấn mạnh đến mối quan hệ của người ở với không gian thông qua sự thân thuộc của vật liệu, của hàng hiên đón nắng gió, của góc sân – khoảng trời, của vùng ánh sáng dịu nhẹ, nhằm tạo ra sự an trú gắn kết người ở với nơi chốn.Xem thêm hình ảnh:XEM THÊM:
客服
消息
收藏
下载
最近





































